
|
今天小編為大家介紹一棟新中式別墅,現在喜歡中式別墅的人越來越多了,大部分人都覺得中式建筑非常的有韻味,而業主也不另外,業主想在老家建一棟別墅住,立馬就決定了將別墅建成新中式風格。
建筑是一層新中式別墅,造型相對簡單,色彩也是黑白色占主體,只有一個露臺的地面采用了棕色,這樣也增添了別墅的特點。
建筑采用坡頂設計,方便雨季雨水的排出,這樣的坡頂也是新中式一貫的設計,既美觀又實用。
建筑占地面積不大,院子里也沒有什么特別的設計,看起來非常的干凈利落,住在這樣一個地方也非常的舒適。
建筑的特別在于大露臺的設計,這樣的露臺在農村是非常必要的,閑暇時間看看書,下下棋也是不錯的選擇。
建筑的院門采用的也是新中式的風格,和別墅搭配的相當的完美。門采用的是棕色,看上去比較明亮,讓別墅不那么單調。
建筑的露臺設計了這樣的一個樓梯,兩邊都有墻攔著,是非常安全的。露臺面積也挺大的,用來招待客人也是不錯的選擇。
細節效果圖
建筑正立面效果圖
建筑左立面效果圖
建筑右立面效果圖
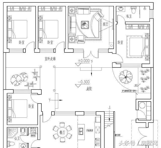
建筑背立面效果圖 接下來和小編看看平面設計圖
別墅露臺下面設計的是餐廳和廚房,也有一間臥室,庭院走進去是一個大客廳,招待客人使用,兩邊是臥室的設計。總得來說,別墅有四間臥室,滿足一家人的居住。 圖紙之家-專注農村別墅/自建房設計18年,集合國內200余位經驗豐富的設計師,被評為口碑最好的農村建筑設計公司! |

130多平方米新農村三層別墅建筑設計圖及效果圖
占地:133平方米左右
160平方米歐式一層半別墅施工設計圖紙13X13米
占地:160平方米
12.5乘12米大氣優雅二層自建房設計圖,精美舒適布局實用
占地:149.27平方米
最新歐式三層別墅設計圖紙,超漂亮,預算30到40萬
占地:160平方米
奢華歐式二層樓房設計圖,入戶設有玄關,一層大窗設計
占地:190平方米
新款鄉村二層半別墅設計圖紙帶效果圖,三層別墅外觀圖片大全
占地:108.795平方米
帶院子的一層農村別墅設計圖,造價不高,養老房首選!
占地:144.819平方米
農村四間兩層樓房設計圖,外觀時尚,戶型實用
占地:180平方米
農村2026新式好看又簡單的二層樓房設計圖,外形美觀,家用足夠
占地:200平方米
四開間一層自建房設計圖,四臥二廳+棋牌室+書房
占地:181.29平方米
農村15萬元二層小樓設計圖,造價低,簡潔、好看
占地:90平方米
農村平屋頂三層現代風別墅戶型圖,簡約實用經濟顏值高
占地:111.9平方米
高端歐式四層別墅房屋施工圖紙及效果圖,圓弧大窗
占地:170平方米
140平方米一層歐式新農村平房設計圖,主體造價僅11萬
占地:141.218平方米
南方新農村三層別墅設計圖紙,含效果圖,帶車庫
占地:120平方米
農村四間一層房屋設計圖,160平方米,用來養老正合適!
占地:160平方米
進深15米新農村三層房屋設計圖紙,農村住宅設計圖集
占地:128平方米
最新高端四層別墅外觀效果圖及全套設計圖,真土豪就這樣建
占地:174.08平方米
極簡大氣二層別墅設計圖,15米面寬,簡約大氣,年輕人的最愛!
占地:150平方米
二層帶地下室樓房設計方案,效果圖+全套施工圖
占地:160平方米
推薦:10套新農村自建房設計圖,2026年最新設計
閱讀次數:4825737次
100套鄉村別墅圖片大全,2026年最新設計
閱讀次數:2492203次
6款農村蓋一層平房的設計圖,10萬元就能建起來
閱讀次數:1852637次
這11個一層農村自建房別墅火爆了朋友圈!我最喜歡戶型十!你呢
閱讀次數:750268次
農村6萬元建一層小別墅圖,你敢相信嗎
閱讀次數:567686次
農村5萬塊就能自建房,6套普通房子設計圖分享,你沒看錯!
閱讀次數:419410次
8套農村漂亮三間平房圖片,非常適合在農村修建!
閱讀次數:411197次
農村自建房化糞池怎么做?附方案及施工過程
閱讀次數:391783次
農村一層三間平房設計圖,告別土氣養老房,讓人忍不住點贊
閱讀次數:350581次
新農村二層樓房圖片造價12萬,挑一套回家建房吧!
閱讀次數:349126次
