
|
在中國的傳統觀念里,房子的地位是非常重要的。對一個家庭來說,買房或者建房都是一件大事情。與買房相比,在農村自建房無疑是更加的經濟實惠。建房者對房子的要求也與時俱進,不僅要求外觀造型時尚現代,內部也要配備各種基礎設施,舒適宜居不比城里差。 今天給大家推薦3套農村三層別墅,110平方米多臥室設計,人口再多也住的下! 第一套
正面效果圖
鳥瞰效果圖
背面效果圖 占地面積:10.80m*10.60m,115平方米左右; 建筑層高:三層; 建筑高度:11.00米(含屋頂); 設計功能: 一層房屋戶型:客廳、廚房、餐廳、臥室、衛生間 二層房屋戶型:客廳(起居室)、主臥、次臥x2(可做書房)、衛生間、陽臺 三層房屋戶型:臥室、衛生間、活動房、大露臺
一層平面圖
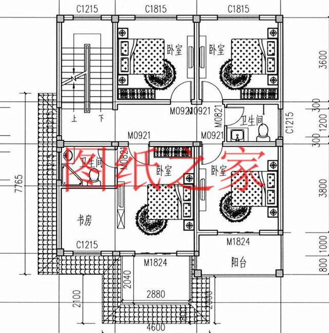
二層平面圖
三層平面圖 第二套
別墅效果圖一
別墅效果圖二 占地面積:9.96m*12.96m,112平方米左右; 建筑層高:三層; 建筑高度:11.69米(含屋頂); 設計功能: 一層房屋戶型:客廳、2臥室、廚房、餐廳、衛生間 二層房屋戶型:客廳、3臥室、書房、衛生間、陽臺 三層房屋戶型:3臥室、書房、衛生間、露臺
一層平面圖
二層平面圖
三層平面圖 第三套
別墅效果圖一
別墅效果圖二 占地面積:9.50m*12.2m,115平方米左右; 建筑層高:三層; 建筑高度:12.14米(含屋頂); 設計功能: 一層房屋戶型:客廳、側廳(施工時可以自行做成臥室)、廚房、餐廳、衛生間、老人房、洗衣間; 二層房屋戶型:主臥(帶衛生間帶書房或衣帽間)、臥室x3、衛生間、陽臺; 三層房屋戶型:主臥(帶衛生間帶露臺)、臥室x2、衛生間、露臺(屋頂花園);
一層平面圖
二層平面圖
三層平面圖 這幾套別墅的設計圖,你最喜歡哪一套? 圖紙之家-專注農村別墅/自建房設計18年,集合國內200余位經驗豐富的設計師,被評為口碑最好的農村建筑設計公司! |

帶地下車庫的三層別墅設計圖,160平復式戶型
占地:159.03平方米
帶車庫,帶露臺的三層復式樓房設計圖,新農村房屋方案推薦
占地:140平方米
村里三層新中式風自建別墅圖,對稱設計,氣派好看
占地:135.3平方米
農村一層四間平房設計圖方案,含外觀圖片,預算10萬
占地:190平方米
110平方米新農村實用現代的二層建筑設計圖紙帶外觀圖11X10米
占地:110平方米
雙戶168平方米小戶型新農村雙拼樓房設計建筑圖紙帶外觀圖
占地:168平方米
140-150平方米新農村別墅設計圖紙,帶外觀效果圖,復式戶型
占地:146平方米
帶框架層的四層別墅設計圖,框架層功能布局很多,很實用
占地:169.09平方米
預算30萬三層樓房設計圖含效果圖,戶型經典
占地:125平方米
12x9米自建一層小別墅設計圖,占地不大造價低,簡單舒適人人夸
占地:108.36平方米
占地170平米2026新款三層別墅設計圖片及設計方案
占地:170平方米
面寬18米二層新中式別墅圖紙設計,復式戶型,帶堂屋
占地:269.83平方米
最好看的農村三層樓房設計圖,占地113平米,小平米大格局
占地:110平方米
豪華大氣農村三層別墅圖紙,帶車庫、露臺,占地200平方米左右
占地:207平方米
鄉村三層簡單自建房子設計圖,全部建好34萬左右,外觀簡潔
占地:127.912平方米
小戶型經濟型三層雙拼小別墅施工設計圖紙,單戶100平內
占地:150平方米
別致漂亮二層別墅設計圖紙,占地160平米左右,精致的外觀,讓人
占地:160平方米
農村三層帶車庫、帶露臺別墅設計圖,經典自建別墅設計方案
占地:160平方米
農村三層復式自建樓房設計圖,外觀圖大氣
占地:130平方米
面寬14.5米三層獨棟別墅設計圖,經典設計,大氣之作
占地:123.85平方米
推薦:10套新農村自建房設計圖,2026年最新設計
閱讀次數:4825737次
100套鄉村別墅圖片大全,2026年最新設計
閱讀次數:2492203次
6款農村蓋一層平房的設計圖,10萬元就能建起來
閱讀次數:1852637次
這11個一層農村自建房別墅火爆了朋友圈!我最喜歡戶型十!你呢
閱讀次數:750268次
農村6萬元建一層小別墅圖,你敢相信嗎
閱讀次數:567686次
農村5萬塊就能自建房,6套普通房子設計圖分享,你沒看錯!
閱讀次數:419410次
8套農村漂亮三間平房圖片,非常適合在農村修建!
閱讀次數:411197次
農村自建房化糞池怎么做?附方案及施工過程
閱讀次數:391783次
農村一層三間平房設計圖,告別土氣養老房,讓人忍不住點贊
閱讀次數:350581次
新農村二層樓房圖片造價12萬,挑一套回家建房吧!
閱讀次數:349126次
