
|
別致又極簡的現代生活——小戶型獨棟別墅
有的朋友在建房時會遇見宅基地面寬窄進深長的情況,在這種情況下設計師應該考慮到客戶的需求,在最大程度上利用空間,綜合功能和客戶喜愛風格來設計別墅。今天小編就給大家分享下國內外的優秀小戶型獨棟別墅案例。 這種窄長戶型常見集約型公寓,加高層高可以設置復式空間。通過加高空間化解窄面寬給建筑空間內部造成的壓抑感。首先給大家介紹的就是一套位于上海的小戶型別墅,它的設計里就用到了復式空間。 這棟別墅位于市區的一個老小區里,原來破舊不堪,經過改造后煥然一新。它一共有三層,每層面積約80㎡,總面積約240㎡。來看看它改造前后的結構有什么變化吧。
左邊是改造前,右邊是改造后。從這張圖里我們能發現,設計師把原來一樓的隔斷全部打通,空間變大,這樣就創造了一個家庭集體活動的場所,拉近了家人之間的距離。 一樓室內圖▼
原來的戶型采光不好,設計師在樓梯處開了個窗,增加了采光,這也是改造里最出眾的地方。
三樓保留了坡頂,整棟別墅的室內布局也在最大程度上利用了空間,設計師將原來的老式建筑變成了簡約精致的loft公寓,體現了現代人的生活觀念:繼承、創新、突破。
三樓坡頂▲
采光充足的陽臺▲
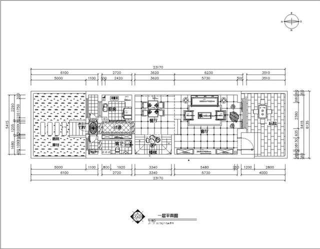
用柜子做收納空間,充分利用空間▲ 接下來再看看這套北京的兩層小棟別墅,首先看看別墅相關信息 建筑面積:260平米 戶型特點:南北通透,采光效果良好 戶型說明:兩層別墅,一層為公共空間,二層主臥、次臥 設計風格:新中式 一層平面布局圖▼
二樓的布局更加考慮居住功能,保證了客戶的私密性和舒適性,從樓梯間往上就是書房,相對于臥室來說書房的私密性沒那么強,在書房兩邊各有一臥一衛一陽臺,在一定程度上保證了住戶擁有足夠的活動空間,兩側的陽臺也保證了臥室的采光效果。 室內裝修效果圖▼
國外的獨棟別墅跟國內相比室外活動空間更開闊,由于國內人口較多,為節省面積,這種戶型通常聯排 ,依靠前后或者左右兩側的獨立花園間隔開來。國外的人口基數較少,因此在修建別墅時,四周大多留有空地用以布置私人草坪、花園等。今天為大家介紹兩個國外的獨棟別墅設計案例,一起來看看國外的獨棟別墅是怎么設計的吧。 悉尼獨棟別墅案例▼ 建筑信息 所在地:New South Wales 2251, Avoca Beach, 7 Walder Crescent 戶型功能:2間臥室,1間浴室,2間車庫 占地面積:約為200平方米 別墅平面圖
在這張平面圖里能看到,左側是住宅所在區域的平面示意圖,右側是別墅平面布局圖。從這張圖紙的設計就能看出,四周的綠化空地非常多,別墅只占了約三分之一的占地面積。這類別墅給人的感覺更像是在綠化中加了個休息的去處,而不是通常的為了美化建筑而加上綠化,這種對比是非常強烈的。 這個別墅只有一層樓,單層面積相對于普通的別墅來說較為寬敞,功能分區包括了客廳、餐廳,廚衛,洗衣間以及兩個臥室。入口處的遮陽平臺設計的很好,開闊庇蔭,室內的客廳十分寬敞,開放式的廚房加上較大的客廳使得整個空間在視覺上被擴大。兩臥一衛保證了住戶的生活功能需求
別墅外觀圖▲
別墅外觀圖▲
別墅室內布局圖▲
別墅室內布局圖▲ 墨爾本獨棟別墅案例▼ 建筑信息 所在地:“VIC 3095, Eltham, 10 Bellevue Road” 戶型功能:3間臥室,1間浴室,2間車庫 占地面積:約為253.00平方米 別墅平面圖▼
和上面講到的案例一樣,這棟別墅四周的綠化也做得很好,前后都有小花園,居住環境十分舒適。室內布局也是滿足了基礎的生活功能,視覺空間較為開闊,值得一提的是它的雙層車庫,在國內并不是十分常見。 別墅外觀圖▼
別墅室內圖▼
今天的小戶型別墅就給大家分享到這里了,怎么樣,大家更喜歡哪一款呢?其實不管什么風格的別墅,小戶型別墅都很舒適實用。小戶型的別墅很適合一家三口或是家庭成員較少的家庭所使用,不會有多余的無用面積,也降低了裝修成本。除了實用舒適外,這也是小戶型別墅深受人們青睞與歡迎的另一個原因。小戶型的別墅不僅實用舒適,更是小巧精致卻又簡約時尚,在現代生活中是人們的理想居所。 圖紙之家-專注農村別墅/自建房設計18年,集合國內200余位經驗豐富的設計師,被評為口碑最好的農村建筑設計公司! |

12x10米帶閣樓的農村一層半別墅設計圖,外觀洋氣
占地:110.54平方米
新農村二層房屋設計圖紙(全套建筑施工圖紙+外觀效果圖)
占地:85平方米
高端大氣三層歐式別墅設計圖,客廳中空,旋轉樓梯
占地:150平方米
45萬新中式二層雙拼自建房別墅設計圖,平屋頂設計
占地:210平方米
簡單實用二層自建房子設計圖,主體造價僅17萬
占地:106.387平方米
120平農村三層房屋設計圖,含外觀圖片
占地:120平方米
私人二層歐式別墅建筑設計圖(效果圖+全套別墅設計方案)
占地:144平方米
100平客廳挑高三層樓房設計圖,復式結構
占地:100平方米
簡單大方四間二層小樓房設計圖,帶車庫,帶大露臺
占地:180平方米
大面積農村一層房子設計圖,戶型實用、合理
占地:190平方米
極簡大氣二層別墅設計圖,15米面寬,簡約大氣,年輕人的最愛!
占地:150平方米
2026二層農村新款別墅新式二層樓房設計圖,非常時尚
占地:多種戶型
帶架空層車庫/地下室自建一層別墅設計圖,隔潮又能儲物
占地:91.32平方米
160平方農村三層別墅CAD設計圖紙,含外觀圖片效果圖
占地:156平方米
二層復式雙拼別墅設計圖(客廳中空),含外觀效果圖
占地:195平方米
村里三層新中式風自建別墅圖,對稱設計,氣派好看
占地:135.3平方米
一層中式四合院別墅設計圖,符合國人審美,簡單大氣穩妥沉穩
占地:388平方米
帶配房的農村三層別墅設計圖,全家享精致生活
占地:167.29平方米
鄉村兩層半150平帶閣樓別墅房屋設計圖,客廳大、臥室多
占地:150平方米
新款漂亮農村三層別墅建筑設計圖紙帶效果圖片,3種戶型
占地:125平方米
推薦:10套新農村自建房設計圖,2026年最新設計
閱讀次數:4825737次
100套鄉村別墅圖片大全,2026年最新設計
閱讀次數:2492203次
6款農村蓋一層平房的設計圖,10萬元就能建起來
閱讀次數:1852637次
這11個一層農村自建房別墅火爆了朋友圈!我最喜歡戶型十!你呢
閱讀次數:750268次
農村6萬元建一層小別墅圖,你敢相信嗎
閱讀次數:567686次
農村5萬塊就能自建房,6套普通房子設計圖分享,你沒看錯!
閱讀次數:419410次
8套農村漂亮三間平房圖片,非常適合在農村修建!
閱讀次數:411197次
農村自建房化糞池怎么做?附方案及施工過程
閱讀次數:391783次
農村一層三間平房設計圖,告別土氣養老房,讓人忍不住點贊
閱讀次數:350581次
新農村二層樓房圖片造價12萬,挑一套回家建房吧!
閱讀次數:349126次
