
|
現在農村的房子是越來越美觀大氣了,在戶型上融入了許多時尚元素,例如挑空客廳、大露臺、落地窗、觀景涼亭、旋轉樓梯等,希望可以創造一個溫馨舒適的居住環境。 今天給大家推薦4套農村三層別墅,占地180平方米卻有8個臥室,還有挑空客廳和大露臺,一起來看看這是怎么放下的吧! 第一套
別墅效果圖 占地面積:12.54m*11.44m,占地140平方米左右; 建筑層高:三層; 建筑高度:12.35米(含屋頂); 設計功能: 一層戶型設計:客廳、餐廳、廚房、臥室、衛生間、車庫【可做臥室】; 二層戶型設計:客廳、臥室x3、書房、棋牌室、衛生間、陽臺x2; 三層戶型設計:臥室x3、書房、衛生間、露臺;
一層平面圖
二層平面圖
三層平面圖 第二套
別墅效果圖 占地面積:13.9m*10.0m,139平方米左右; 建筑層高:三層; 建筑高度:13.33米(含屋頂); 設計功能: 一層戶型展示:客廳、餐廳、廚房、主臥(帶衛生間)、臥室、衛生間、儲藏間; 二層戶型展示:客廳、主臥(帶衛生間和衣帽間)、臥室x2、衛生間、陽臺x2; 三層戶型展示:主臥(帶衛生間)、臥室x2、衛生間、陽臺、露臺;
一層平面圖
二層平面圖
三層平面圖 第三套
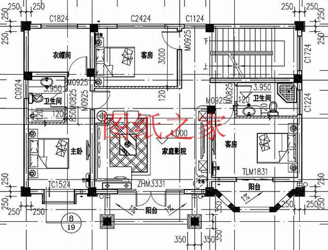
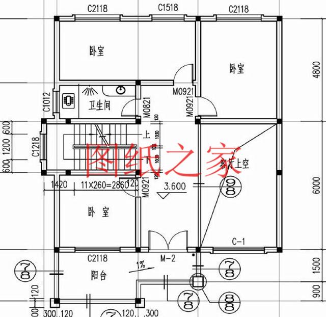
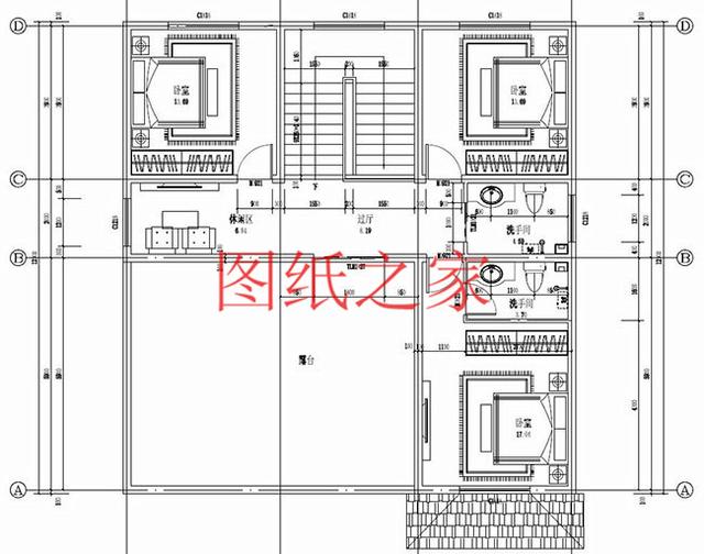
別墅效果圖 占地面積:11.5m*12.0m,138平方米左右; 建筑層高:三層; 建筑高度:12.0米(含屋頂); 設計功能: 一層戶型設計:過廳、客廳、餐廳、廚房、衛生間、主臥(帶衛生間)、娛樂室(次臥); 二層戶型設計:過廳、休閑區、主臥(帶衛生間)、臥室x2、衛生間、小露臺x2; 三層戶型設計:過廳、休閑區、主臥(帶衛生間)、臥室x2、衛生間、大露臺;
一層平面圖
二層平面圖
三層平面圖 第四套
別墅效果圖 占地面積:11.00m*13.2m,145平方米左右; 建筑層高:三層; 建筑高度:12.06米(含屋頂); 設計功能: 一層戶型設計:客廳、廚房、餐廳、臥室、衛生間、儲藏間; 二層戶型設計:休閑廳、臥室x3、衛生間、陽臺; 三層戶型設計:臥室x2、衛生間、涼亭、露臺;
一層平面圖
二層平面圖
三層平面圖 圖紙之家-專注農村別墅/自建房設計18年,集合國內200余位經驗豐富的設計師,被評為口碑最好的農村建筑設計公司! |

農村二層樓房設計圖紙,含全套設計方案(施工圖+效果圖)
占地:98平方米
農村30萬別墅款式三層設計圖紙,帶地下儲藏室,挑空客廳
占地:110平方米
帶地下室的農村三層雙拼別墅設計圖,復式戶型,面寬23米
占地:261.6平方米左右
農村二層半房子設計圖 ,占地110平米和160多平兩個戶型圖
占地:多種戶型
農村三層雙拼別墅戶型圖設計圖,整體外觀氣派
占地:220平方米
鄉村三層別墅設計圖紙,帶屋頂花園(含效果圖)
占地:150平方米
新農村田園風格兩層半別墅設計圖,外觀造型非常漂亮
占地:147.8平方米
農村一層7字型平房別墅設計圖,“L”自行戶型,外觀簡約低調
占地:213.39平方米
170平方米新農村實用的三層雙拼設計圖紙,帶公用堂屋!
占地:173.62平方米
12x13米豪華三層農村別墅設計圖,宅基地上的貴族人生
占地:156平方米
農村養老房還是一層好,帶閣樓的一層房子設計圖
占地:135平方米
小戶型二層農村別墅設計圖,占地140平經典漂亮
占地:139.54平方米
復式三層別墅設計圖片及全套圖紙,客廳中空,外觀為歐式建筑的
占地:175平方米
戳中年輕人喜好!時尚三層自建房,簡約時尚設計,住著舒適自然
占地:169.76平方米
鄉村一層房屋設計圖,養老還是一層好,多臥室的設計
占地:195平方米
中式二層三合院設計圖紙含外觀效果圖片,大氣又實用
占地:216.04平方米
私人二層歐式別墅建筑設計圖(效果圖+全套別墅設計方案)
占地:144平方米
帶地下室三層豪華大氣新農村房屋設計圖,占地150平米左右
占地:150平方米
2026二層農村新款別墅戶型圖,占地不到110平米
占地:110平方米
新中式三層別墅,旋轉樓梯+挑空客廳,高級感拉滿
占地:125平方米
推薦:10套新農村自建房設計圖,2026年最新設計
閱讀次數:4825737次
100套鄉村別墅圖片大全,2026年最新設計
閱讀次數:2492203次
6款農村蓋一層平房的設計圖,10萬元就能建起來
閱讀次數:1852637次
這11個一層農村自建房別墅火爆了朋友圈!我最喜歡戶型十!你呢
閱讀次數:750268次
農村6萬元建一層小別墅圖,你敢相信嗎
閱讀次數:567686次
農村5萬塊就能自建房,6套普通房子設計圖分享,你沒看錯!
閱讀次數:419410次
8套農村漂亮三間平房圖片,非常適合在農村修建!
閱讀次數:411197次
農村自建房化糞池怎么做?附方案及施工過程
閱讀次數:391783次
農村一層三間平房設計圖,告別土氣養老房,讓人忍不住點贊
閱讀次數:350581次
新農村二層樓房圖片造價12萬,挑一套回家建房吧!
閱讀次數:349126次
