
|
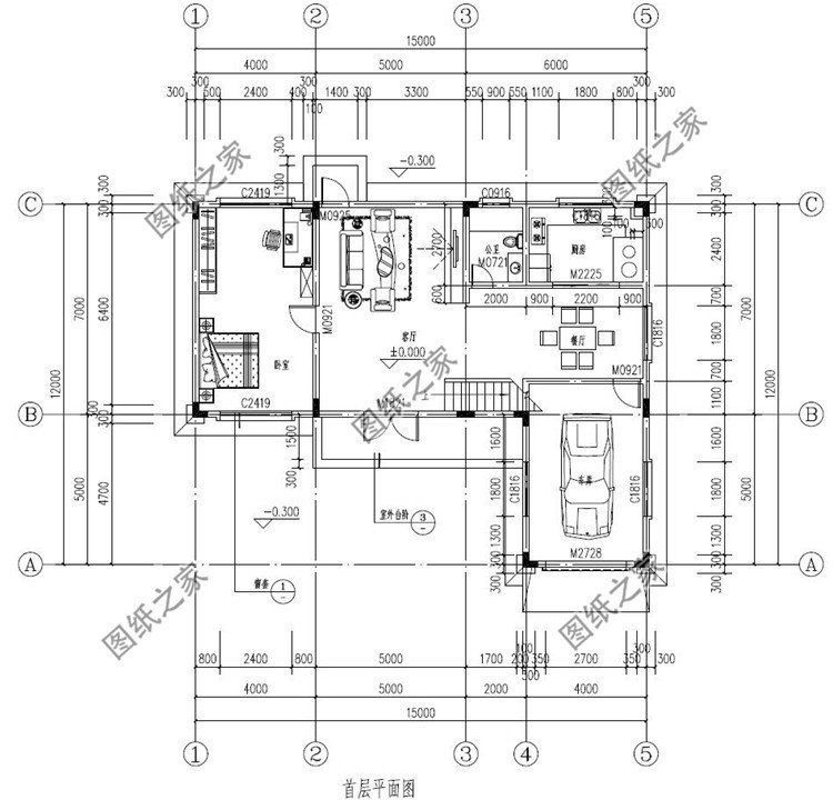
伴隨著新農村建設的開始,自建房也逐漸進入了大眾視野。但房子并不一定都是方正、長方形、L形、U形等異性的宅院,今天小編就為你分享三款農村7字型自建圖,不輸城市的樓房,甚至可以和城市的別墅媲美可供您參考! 別墅圖一介紹:仿古七字形二層住宅設計圖紙及外觀效果圖整幢房屋選用的是仿古式設計風格,徽派建筑大氣磅礴,住宅主體以底部文化磚和乳白色為主導,與深棕色窗子和木質護欄緊密結合,構建了清冷的建筑氣氛,部分裝飾設計的木飾板和向外拓寬的灰黑色屋檐,增加一絲溫暖的氣場。分離式廚房裝修設計能夠有很大的提高空間利用率。能夠使整體室內空間更寬敞光亮,而且能夠更好地提高餐廳廚房的主要要求,簡單化餐廳廚房到飯桌的線路,并能能夠更好地運用每一寸室內空間。 占地面積:16.5m*12.5m,129.88平方米左右;
正面效果圖
鳥瞰效果圖
側面效果圖
一層平面圖
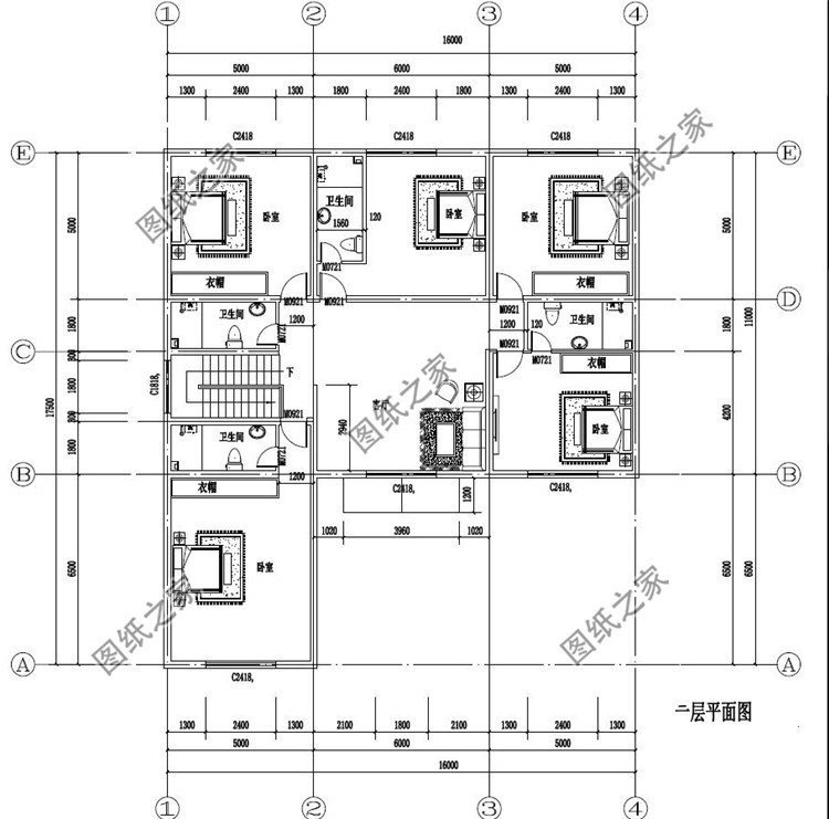
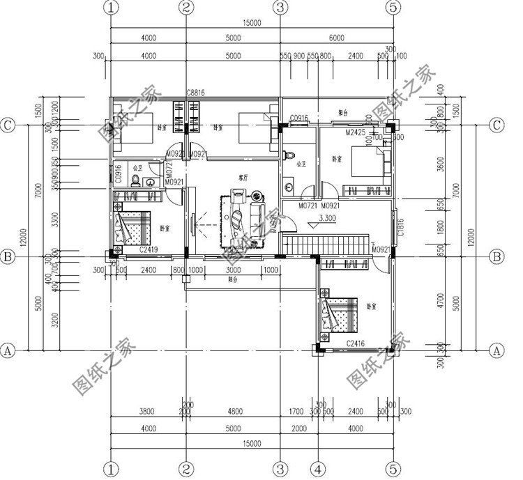
二層平面圖 二層戶型:客廳、臥室(帶衛生間)、臥室x2、衛生間、露臺、陽臺; 別墅圖二介紹;帶車庫的農村二層七字形自建房別墅設計圖紙,15x12米整體建筑采用新中式風格,既有中式的古典美又帶有現代風的造型新穎。外墻主體色彩用黃色的真石漆與灰色真石漆結合,大面積使用木塑板做裝飾豐富了整個建筑群體的立面層次整體呈現的簡潔清新感覺,建筑借助宅基地的特殊,做了車庫設計,保護戶主的愛車不受停在戶外的風吹雨打也賦予了住宅有了一股立體感。 占地面積:15m*12m,130.44平方米左右;
正面效果圖
鳥瞰效果圖
側面效果圖
一層戶型圖
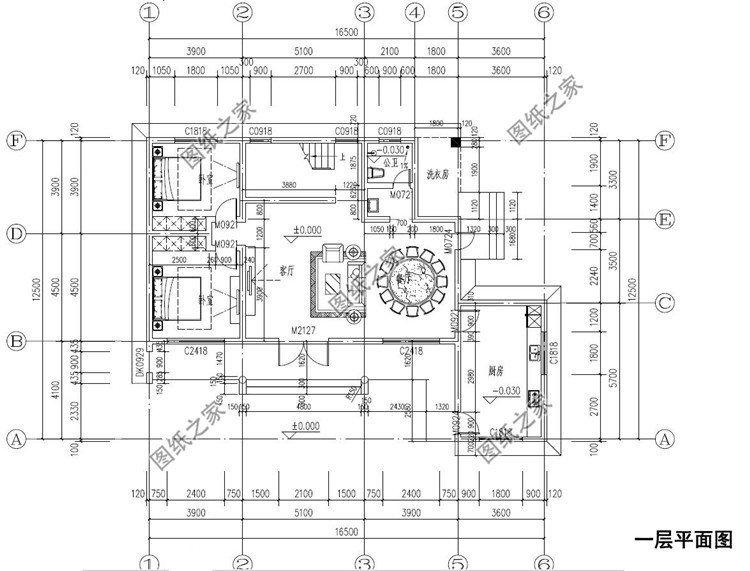
二層戶型圖 二層戶型:客廳、臥室(帶書房)、臥室x5、衛生間x2; 別墅圖三介紹:農村七字形二層小別墅設計圖紙這幢房子是簡歐風格,突顯了當下人們對簡單生活的渴望。主要采用建筑外立面褐色文化磚,米黃真石漆結合室外空間的層次感,既穩重又靈活多變的整體造型。整個住宅采用白色歐式的柵欄環繞,配以入戶門廳,給人一種濃郁的田園氣息。由于考慮到采光的問題,在正面設計了兩個落地窗,滿足了室內照明的需求。獨立廚房與餐廳相連,避免烹飪時油煙飄散到室內,提高居住舒適度。 占地面積:16m*17.5m,312.5平方米左右;
正面效果圖
鳥瞰效果圖
側面效果圖
一層平面圖
二層平面圖 二層戶型:客廳、臥室(帶衛生間)x3、臥室x2、衛生間; 圖紙之家-專注農村別墅/自建房設計18年,集合國內200余位經驗豐富的設計師,被評為口碑最好的農村建筑設計公司! |

90平方米小戶型自建三層房屋設計圖紙及外觀效果圖
占地:91平方米左右
新農村復試兩層半樓房設計圖,帶大露臺,簡單經濟實用大氣
占地:190平方米
帶車庫新農村二層四間別墅設計效果圖帶全套建筑施工圖,217平方
占地:217.21平方米
異形宅基地二層農村別墅設計圖,現代風時尚又大氣
占地:242.03平方米
農村一層獨棟別墅設計圖,帶閣樓,設計感十足
占地:250平方米
兩開間自建別墅設計圖,占地小造型簡約,不愁宅基地面寬小了
占地:118.4平方米
農村二層L戶型農村別墅!設計圖簡約時尚又大氣,住著超舒適
占地:170.55平方米
面寬13米二層新農村別墅自建房設計圖,功能實用,外觀大氣
占地:168.96平方米
共用中堂雙拼兄弟三層別墅設計圖,簡歐式風格
占地:230平方米
帶車位的鄉村二層別墅建筑結構設計圖,全套施工圖140平
占地:139.85平方米
四層(三層半)復式別墅設計圖片大全,歐式風格
占地:174平方米
兩層15萬農村自建房設計圖,農村蓋房設計大全圖
占地:130平方米
農村二層仿古尖屋頂別墅設計圖,外觀古樸耐看
占地:87平方米左右
網紅農村一層小別墅設計圖,建一層的必看
占地:多戶型可選
120平二層別墅房屋設計圖,造型美觀、現代
占地:120平方米
170平方米新農村實用的三層雙拼設計圖紙,帶公用堂屋!
占地:173.62平方米
7字型一層半農村別墅設計圖,美觀舒適,買了別墅的都會羨慕你
占地:229.14平方米
大氣農村一層自建別墅方案,絕對讓人羨慕的“平房”
占地:158.39平方米
農村兩層半樓房設計圖,平面功能分區明確,布置合理
占地:180平方米
農村自建二層半樓房效果圖,美觀大氣布局合理,很適合農村人自
占地:160.11平方米
推薦:10套新農村自建房設計圖,2026年最新設計
閱讀次數:4825737次
100套鄉村別墅圖片大全,2026年最新設計
閱讀次數:2492203次
6款農村蓋一層平房的設計圖,10萬元就能建起來
閱讀次數:1852637次
這11個一層農村自建房別墅火爆了朋友圈!我最喜歡戶型十!你呢
閱讀次數:750268次
農村6萬元建一層小別墅圖,你敢相信嗎
閱讀次數:567686次
農村5萬塊就能自建房,6套普通房子設計圖分享,你沒看錯!
閱讀次數:419410次
8套農村漂亮三間平房圖片,非常適合在農村修建!
閱讀次數:411197次
農村自建房化糞池怎么做?附方案及施工過程
閱讀次數:391783次
農村一層三間平房設計圖,告別土氣養老房,讓人忍不住點贊
閱讀次數:350581次
新農村二層樓房圖片造價12萬,挑一套回家建房吧!
閱讀次數:349126次
