
|
以前農村的土坯院落,清一色的紅磚紅瓦已經在歷史的長河中淡出人們的視野,取而代之的是一棟棟拔地而起的潮流美墅,側面也能反映出農村生活水平的提高。 今天要展示的是黃石王先生的新中式三層別墅。
王先生在外地做生意,平時都在外面,逢年過節都會回到老家。由于家人比較多,考慮多設臥室,同時經濟原則,最好是平頂形式。
平面圖:門廳和餐廳之間沒有任何的設計,臥室比較多。首層臥室里面帶有內院,雜物間和衛生間相對比較隱蔽,不影響整體美觀。
因為家人比較多,臥室也是按照人流量高峰期設置的。天井和陽臺都有利于別墅的采光。
雖然不是旋轉樓梯,三跑樓梯的設計也是非常大氣的。小開間大進深的宅地設天井是很有必要的。
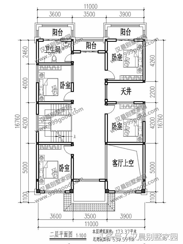
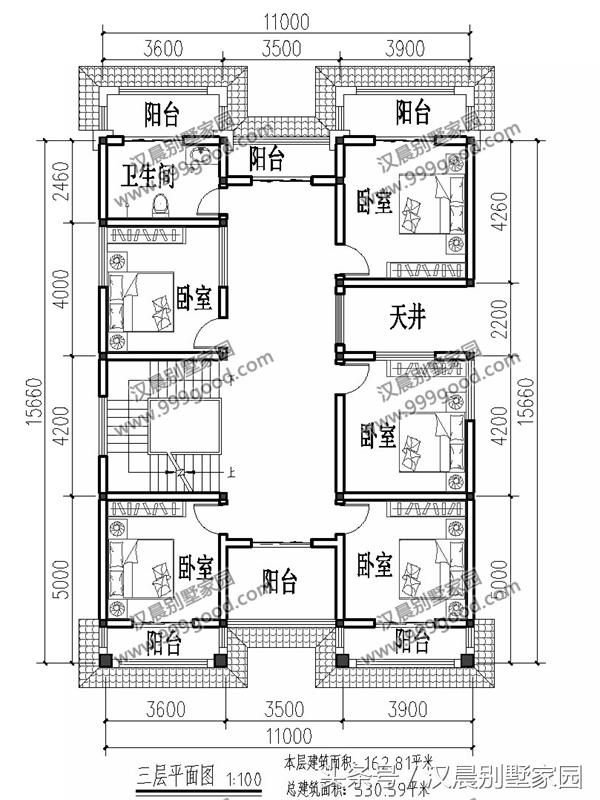
新中式的別墅越來越多的人蓋了,下面也是最近設計的雙拼新中式別墅。
平面功能:入戶有內院,旋轉樓梯超霸氣,廚房相當于獨立在室外。 二層作為主要的休息區,只有臥室和衛生間。兩戶的格局一模一樣,并且共客廳,既能保證促進交流又保證私密性。
![]()
圖紙之家-專注農村別墅/自建房設計18年,集合國內200余位經驗豐富的設計師,被評為口碑最好的農村建筑設計公司! |

一層中式仿古三合院設計圖,實用又大氣,百年不過時
占地:366.67平方米
大面積農村一層房子設計圖,戶型實用、合理
占地:190平方米
帶車庫現代三層樓房設計圖,外觀效果圖時尚、美觀
占地:160平方米
二層農村自建小別墅設計圖,歐式風格,占地160平方米
占地:160平方米
雙拼小別墅設計圖紙(含效果圖),二層別墅設計方案精選
占地:130平方米
帶堂屋設計一層三合院設計圖,白墻黛瓦古韻悠悠,比高層舒服接
占地:179.37平方米
一層半帶閣樓別墅設計圖,悠閑舒適,養老度假皆可
占地:161.94平方米
農村房子設計圖三層獨棟別墅方案,占地130平方米
占地:130平方米
農村三間一層別墅設計圖,經濟實用還好看
占地:139.56平方米
農村2開間三層經濟別墅設計圖,9.6米面寬,實用布局
占地:127.68平方米
農村四間兩層樓房設計圖,外觀時尚,戶型實用
占地:180平方米
二層半新中式別墅設計圖,農村自建24萬,帶庭院規劃設計
占地:140.68平方米
100平方米自建三層半別墅設計圖紙,帶地下車庫
占地:100平方米
帶架空層的一層自建房太香了!防潮、停車、儲物全兼顧
占地:152.06平方米
復式別墅農村四層霸氣豪宅設計圖紙,建好你就是村里第一
占地:136.356平方米
150平方米二層別墅設計及效果圖展示下載,17X10米
占地:150平方米
簡單農村自建二層樓房設計圖,南北通透
占地:140平方米
農村自建一層房子設計圖,大開間小進深,20米x10米
占地:188平方米
帶電梯高端四層別墅房屋設計圖,外觀圖大氣、上檔次
占地:220平方米
新中式三層別墅,旋轉樓梯+挑空客廳,高級感拉滿
占地:125平方米
推薦:10套新農村自建房設計圖,2026年最新設計
閱讀次數:4825737次
100套鄉村別墅圖片大全,2026年最新設計
閱讀次數:2492203次
6款農村蓋一層平房的設計圖,10萬元就能建起來
閱讀次數:1852637次
這11個一層農村自建房別墅火爆了朋友圈!我最喜歡戶型十!你呢
閱讀次數:750268次
農村6萬元建一層小別墅圖,你敢相信嗎
閱讀次數:567686次
農村5萬塊就能自建房,6套普通房子設計圖分享,你沒看錯!
閱讀次數:419410次
8套農村漂亮三間平房圖片,非常適合在農村修建!
閱讀次數:411197次
農村自建房化糞池怎么做?附方案及施工過程
閱讀次數:391783次
農村一層三間平房設計圖,告別土氣養老房,讓人忍不住點贊
閱讀次數:350581次
新農村二層樓房圖片造價12萬,挑一套回家建房吧!
閱讀次數:349126次
