項目名稱:河北任丘新中式民宿
建筑面積:865.3㎡
基地面積:1180㎡
建筑尺寸:59m×20m
占地面積:542㎡
戶型概況:15室5廳16衛2廚1布草間1健身房12衣帽間1洗衣房1棋牌室1書吧1前臺1咖啡區
建筑結構:磚混結構
主創建筑師:錢帥
工程造價:130萬
項目概況
該項目基地北側是大壩,大壩高于業主家宅基地2米左右。東側是鄰居家住宅,高于業主家宅基地1.5米左右。南側和西側均為空地。
總平面示意圖
因為業主家宅基地較低,我們為業主提供了兩種解決方案。一種是墊土,另一種是在建筑四周做排水溝。根據場地實際情況和家人意見綜合考慮,業主最終選擇墊高基地。
圖紙設計
設計前期,業主提出將空間劃分為自住區、民宿區、公共活動區三個部分。考慮到業主的要求,最終方案的建筑以行列式方式排布。
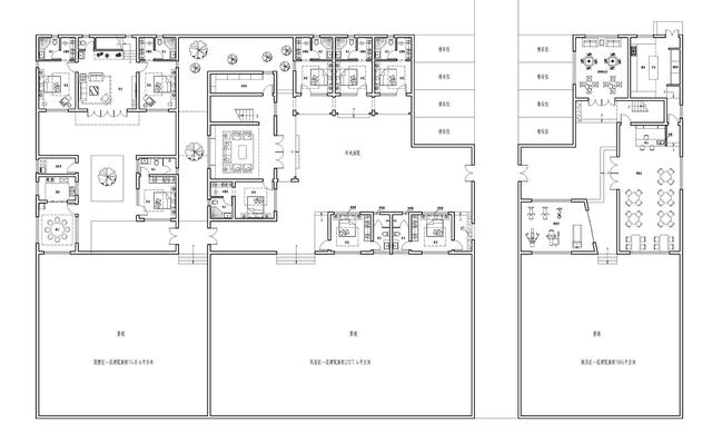
一層平面圖
建筑的每個部分獨立存在,通過院門相連。自住區在整體布局的最西側,最大程度保證了業主一家居住的私密性。民宿區和公共活動區相近,方便入住者使用。
獨立的院落和大面積的庭院讓建筑保有不錯的景觀。行列式的排列方式讓建筑的每間房間都有不錯的朝向。
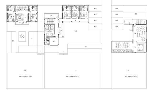
二層平面圖
東側的院落與西側的兩個院落中間保留了4米寬的人行小路。建筑二層大面積露臺和咖啡區的設計,豐富了建筑的使用功能,為入住者提供了更多的娛樂休閑觀景區。
造型設計
建筑整體為新中式風格。白墻灰瓦與中式傳統建筑的坡屋頂搭配,讓歷史厚重感撲面而來。坡屋頂沒有多余裝飾,簡約的線條勾勒出干凈的美。
建筑的入戶方式十分多樣。院落與院落之間開有院門,每個院落保留有獨立的出入口。多樣的入戶空間層次,傳達了中式建筑的韻味精髓。
建筑群體高低起伏,不同的層高設計突出了建筑主體。明確的重點讓整體建筑更有記憶點。
民宿設計中中心庭院必不可少。美景與綠地交融,室內外景色在眼中穿插而過,半私密性的賞景庭院與民宿房間的良好交流,使得入住體驗更佳。
鳥瞰圖
窗戶效果圖
外墻窗戶的設計在選擇上較為大膽。不同于大部分新中式的建筑,該項目采用不規則線條勾勒出窗戶形狀。大面積低矮的窗戶讓室內采光能力得到提升。
庭院效果圖
南側低矮的院墻將庭院的景色引入室內。鏤空的花紋裝飾將空間視覺上延伸增大。視線所及,庭院的優點體現得淋漓盡致。
庭院效果圖
陽臺選擇木質豎向欄桿裝飾,與庭院內的綠植相呼應。在形、神上滿足中國傳統審美習慣。
東側效果圖
中式花格即保留了東方傳統的韻味美感也糅合了現代風格的時尚感。側面看來,讓建筑不單薄,層次更多。
室外躺椅正對庭院中的綠樹,背靠院墻與房屋,夏天感受陰涼和微風,與業主聊一聊當地的人文趣事,民宿的特色優勢不就在此嘛。
庭院效果圖
二層觀景陽臺的視角相比一層更好。登高望遠,入住者能夠欣賞周圍的自然景觀和當地特色建筑,讓自己不虛此行。
停車區域效果圖
停車區域效果圖
停車區域位于民宿區的北側,與村內行車主路相近。8個停車位的設計也能滿足入住者的使用需求。
北立面圖
東立面圖
南立面圖
西立面圖







































