
|
農村的小院是城里人最羨慕的地方。20萬農村小別墅就是好,能養雞、養鴨,還可以有自己的小菜園。下面就為大家分享10套帶小院的別墅,喜歡的可以直接拿去蓋。 第一套:
平面布局圖:
此一層小別墅簡單舒適,庭院內花園、菜園、活動區樣樣不缺。
平面布局圖:
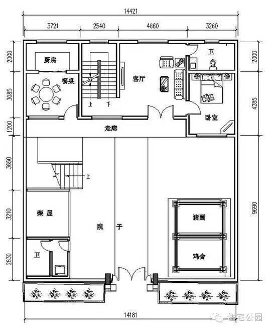
第三套: 此鄉村別墅小院外有一對對稱的花池,環境良好。院內設有豬圈和雞舍,還設有柴火房,非常適合農村的生活習慣。
平面布局圖:
第四套: 這是一套現代中式的農家院,可獨棟可雙拼,車庫上面是露臺,露臺上面也可以作為屋頂花園使用。
平面布局圖:
第五套: 此戶型是傳統與現代的結合,再加上一個小院,使住宅顯得更加和諧。
平面布局圖:
第六套: 此戶型為聯排別墅戶型,要是鄰里之間一起建一排這樣的別墅有沒有很霸氣的感覺?
平面布局圖:
第七套:
平面布局圖:
第八套: 現代三合院戶型簡單、大氣。老人房、棋牌室、衣帽間樣樣齊全。
平面布局圖:
此套為中國傳統的四合院,經典有韻味。外部設計遵循中國四合院的傳統建筑,內部部局按照現代老百姓的生活方式設計。
平面布局圖:
第十套: 此套為中國古建筑中另一個經典的建筑,徽派風格的別墅。徽派的別墅加上一個小院有著不一樣的韻律美。
平面布局圖:
圖紙之家-專注農村別墅/自建房設計18年,集合國內200余位經驗豐富的設計師,被評為口碑最好的農村建筑設計公司! |

160平小開間大進深農村三層別墅設計圖紙
占地:158.73平方米
美觀大氣二層歐式別墅設計圖,外觀效果圖高端上檔次
占地:189.8平方米
建一棟就成了村里的門面擔當!三層歐式別墅,左右對稱太氣派
占地:173.67平方米
新農村簡歐三層樓房圖片自建3層別墅施工設計圖及效果圖
占地:126平方米
30萬農村小別墅設計圖片,30萬別墅設計戶型推薦
占地:130平方米
面寬13米二層鄉村自建別墅戶型圖,帶堂屋和露臺
占地:135.47平方米
簡約實用農村自建房戶型圖,美觀經濟又通透,南北通透住得爽!
占地:160.6平方米
獨棟經濟型二層小別墅房屋設計圖,含全套施工圖效果圖
占地:多種戶型
三間三層樓房設計圖紙,復試的設計,漂亮的一塌糊涂
占地:175平方米
125平方米新農村三層自建別墅施工設計圖,13x10米
占地:125平方米
二層農村房子圖片及全套施工圖紙,占地150平面左右
占地:150平方米
最好看的農村三層樓房設計圖,占地113平米,小平米大格局
占地:110平方米
農村二層小別墅圖片,二層別墅效果圖及設計圖
占地:153平方米
105平一層簡單農村別墅設計圖,造價8萬左右
占地:105平方米
新中式二層農村住宅設計圖,戶型方正,主體造價21萬
占地:135.81平方米
115平旋轉樓梯三層復式別墅房屋設計圖,含外觀效果圖
占地:115平方米
四層豪華別墅設計圖及效果圖,高端房屋設計方案
占地:250平方米
農村小戶型二層房屋別墅設計圖,帶外觀效果圖
占地:95平方米
11x13米兩層半現代風別墅設計圖,??看過的都后悔建早了!
占地:126.02平方米
農村三層雙拼房屋建筑施工設計圖紙,帶車庫
占地:180平方米
推薦:10套新農村自建房設計圖,2026年最新設計
閱讀次數:4825737次
100套鄉村別墅圖片大全,2026年最新設計
閱讀次數:2492203次
6款農村蓋一層平房的設計圖,10萬元就能建起來
閱讀次數:1852637次
這11個一層農村自建房別墅火爆了朋友圈!我最喜歡戶型十!你呢
閱讀次數:750268次
農村6萬元建一層小別墅圖,你敢相信嗎
閱讀次數:567686次
農村5萬塊就能自建房,6套普通房子設計圖分享,你沒看錯!
閱讀次數:419410次
8套農村漂亮三間平房圖片,非常適合在農村修建!
閱讀次數:411197次
農村自建房化糞池怎么做?附方案及施工過程
閱讀次數:391783次
農村一層三間平房設計圖,告別土氣養老房,讓人忍不住點贊
閱讀次數:350581次
新農村二層樓房圖片造價12萬,挑一套回家建房吧!
閱讀次數:349126次
