
|
在大家的印象里,南方是江南水鄉,北方是漫天白雪,南看水北看雪,這也就成了大伙腦海里的自然反應。 以往的設計大多是介紹一些南方的中式建筑,今天小編就打破常規,為大家帶來一套北方的雪景別墅。
建筑風格為歐式坡頂兩層獨棟,主體為框架結構,建筑面積在350平米。
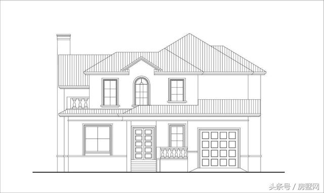
正面看,中間的壁爐把建筑主體分割,形成一套雙拼式的造型,入戶位置設置在右側,設立了七節臺階,寓意著步步高升,七星高照。 外立面采用的是花斑文化磚,暗灰色在北方襯著雪景,就像童話里的城堡一樣,溫馨又不缺莊重。 下面來看下內部布局:
一層平面圖:入戶位置正面是一個過道,可以通到客廳至廚房,客廳設計了兩處,一處面積較大用來接待客人,一處是靠近壁爐,冬日可以一家人圍坐著烤火,書房車庫也設立在一層,沒有設計臥室。
二層平面圖:二層的空間全都是設立的臥室,總共有三個臥室,兩個偏房,一個主臥。 下面再來看下建筑四立面設計圖:
施工隊看效果圖可能看不大明白,但是看這種平面線條圖基本能摸清走向。
車庫位置設立在這一面。
怎么樣?你覺得這樣別墅修在北方,配合著白雪,有沒有如臨童話世界一樣的夢幻感? 圖紙之家-專注農村別墅/自建房設計18年,集合國內200余位經驗豐富的設計師,被評為口碑最好的農村建筑設計公司! |

160平方農村三層別墅CAD設計圖紙,含外觀圖片效果圖
占地:156平方米
農村七字型一層別墅圖,獨立廚房設計,鄉村建房優選戶型
占地:159.76平方米
農村20萬元二層小樓圖片及全套圖紙,外型美造價低
占地:多種戶型
20萬以內二層歐式小別墅設計方案,全套施工圖+效果圖
占地:115平方米
11x9三層別墅房屋設計圖,含效果圖片
占地:97平方米
農村25萬別墅款式二層自建房設計圖,外觀圖時尚
占地:115平方米
經濟實用型二層農村小別墅設計圖,造價25萬內,外觀看起來時尚
占地:120平方米
170平方米農村二層房屋設計施工圖,外觀圖時尚、好看
占地:172平方米
110平方米農村兩層別墅設計效果圖及圖紙,12X12米
占地:110平方米
豪華農村帶露臺三層樓房別墅設計圖紙,占地200平方米左右
占地:200平方米
110平左右農村復式二層小樓設計圖,外觀非常受歡迎
占地:112平方米
漂亮的二層中式現代別墅圖,配色非常的溫馨淡雅
占地:160平方米
二層歐式農村小別墅設計圖,9.5米乘13米,戶型好到鄰居求圖紙
占地:118.32平方米
大戶型三層別墅設計圖,高貴大氣,占地面積將近300平
占地:273.33平方米
120平面三層鄉村樓房設計圖及效果圖,歐式風格
占地:120平方米
140平方米三層豪華新中式別墅設計圖紙帶外觀效果圖
占地:141.35平方米
三層現代平頂別墅設計圖,簡約時尚百看不厭,外觀令人驚艷!
占地:125.142平方米
美式二層別墅設計圖,含外觀效果圖,造型精美
占地:144平方米
90平-100平小戶型一層三間平房農村別墅設計圖方案戶型
占地:多戶型可選
共用中堂雙拼兄弟三層別墅設計圖,簡歐式風格
占地:230平方米
推薦:10套新農村自建房設計圖,2026年最新設計
閱讀次數:4825737次
100套鄉村別墅圖片大全,2026年最新設計
閱讀次數:2492203次
6款農村蓋一層平房的設計圖,10萬元就能建起來
閱讀次數:1852637次
這11個一層農村自建房別墅火爆了朋友圈!我最喜歡戶型十!你呢
閱讀次數:750268次
農村6萬元建一層小別墅圖,你敢相信嗎
閱讀次數:567686次
農村5萬塊就能自建房,6套普通房子設計圖分享,你沒看錯!
閱讀次數:419410次
8套農村漂亮三間平房圖片,非常適合在農村修建!
閱讀次數:411197次
農村自建房化糞池怎么做?附方案及施工過程
閱讀次數:391783次
農村一層三間平房設計圖,告別土氣養老房,讓人忍不住點贊
閱讀次數:350581次
新農村二層樓房圖片造價12萬,挑一套回家建房吧!
閱讀次數:349126次
