
|
帶有觀景涼亭的戶型在農村建房中比較少,大家都覺得沒必要,不過隨著人們思想觀念的改變,也有越來越多的家庭建房的時候選擇帶有觀景涼亭的戶型,一來可以美化外觀的視覺效果,二來還方便晾曬衣物,也可作為休閑空間,還能欣賞遠處的風景,今天小編給大家分享5款帶觀景涼亭三層農村自建房,造價40萬以內全套施工圖隨意挑! 【戶型1】 圖紙詳情 層數: 三層 結構形式: 框架結構 主體造價: 45萬 開間: 18米 進深: 13米 占地面積: 223平方米 總建筑面積: 427平方米
戶型1 戶型1外墻采用清新的白色為主色,搭配藍色 坡屋頂,有車庫、超大落地窗、挑空客廳,三樓有雙陽臺設計,二樓還設有一個寬敞的觀景涼亭。功能齊全,主臥室還是套房設計,私密性更高。 設計功能 一 層: 客廳、餐廳、老人臥室、雜物間、廚房、雙車庫、衛生間 二 層: 客廳上空、大露臺、主臥帶書房及陽臺、2個次臥室、公共衛生間 三 層: 主臥室帶書房、大臥室帶陽臺、衛公共生間、2個次臥
【戶型2】 圖紙詳情 層數:三層 開間:13.7米 進深:12米 首層占地面積:140平方米 總建筑面積:356平方米 結構形式:磚混結構 主體造價:32萬
戶型2 戶型2采用濃烈的紅色為主色,熱情大方,使用少部分淡雅的黃色墻漆點綴,有多陽臺設計,屋頂還有觀景涼亭,休閑時尚。 各層平面圖展示
一層平面圖 一層:門廳、客廳、臥室、廚房、餐廳、娛樂房、衛生間、儲藏間
二層平面圖 二層:小客廳、書房、公用衛生間、主臥室(附衣帽間和衛生間)、次臥(帶衛生間)、次臥(帶陽臺)、次臥
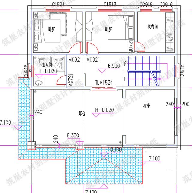
三層平面圖 三層:大露臺、涼亭、臥室(附陽臺)、次臥、書房、大衛生間 【戶型3】 圖紙詳情 層數: 三層 結構形式: 磚混結構 主體造價: 26-30萬 開間: 10.8米 進深: 10.1米 占地面積: 122.06平方米 總建筑面積: 321.97平方米
戶型3 戶型3外墻采用溫馨暖和的黃色為主色,溫馨雅致,屋頂紅色裝飾,顏色碰撞,外立面更加突出。利用弧線和直線設計,設有多個拱形窗和拱形門洞,線條優美。 設計功能
一層平面圖 一層: 門廳、客廳、臥室(帶衛生間)、娛樂室、餐廳、廚房、公衛
二層平面圖 二 層: 起居室(帶陽臺)、臥室(帶衛生間)、臥室×2、活動室、公衛
三層平面圖 三層: 臥室(帶衣帽間)、臥室、公衛、露臺 【戶型4】 圖紙詳情 開間進深15.7×13.95米,總建筑面積496.18平方米,一層層高3.6米,二三層層高分別為3.3米,采用結構形式為磚混結構,主體造價50萬左右。
戶型4 戶型4外墻采用黃色墻磚裝飾,一樓有超大落地窗,二三層均設有陽臺,方便晾曬,二樓前面的陽臺空間比較大,可以做陽光花房,打造創意小花園。屋頂的觀景涼亭提供了開闊的視野,可在涼亭內下棋打牌。 功能設計及平面圖
一層平面圖 一層:車庫、門廳、客廳、娛樂房、走廊、主臥室(帶陽臺、衣帽間)、廚房、餐廳、公衛、
二層平面圖 二層:茶室、主臥室(帶衣帽間、陽臺、衛生間、書房)、次臥(帶衣帽間、陽臺)、次臥(帶衣帽間)、次臥、公衛
三層平面圖 三層:主臥室(帶陽臺、衛生間、衣帽間、書房)、次臥(帶衣帽間)、涼亭、公衛 【戶型5】 層數: 三層 結構形式: 框架結構 開間: 15米 進深: 11.6米 一層實用面積: 160平方米 總建筑面積: 420平方米 主體造價: 40萬
戶型5正面效果圖 這款戶型的涼亭設計與前面幾款大有不同,涼亭處在最高處,視線更加開闊,高處眺望,周邊的美景盡收眼底。
戶型5背面效果圖 設計功能
一層平面圖 一 層:門廳、客廳、臥室、餐廳(帶廚房)、車庫、公共衛生間。
二層平面圖 二 層:起居室、臥室(帶陽臺和內衛)、二間臥室(帶陽臺)、公共衛生間。
三層平面圖 三 層:起居室(帶陽臺)、臥室(帶陽臺和內衛)、二間臥室(帶陽臺)、健身室(帶陽臺)、公共衛生間。 閣樓層:儲物室、景觀陽臺。 圖紙之家-專注農村別墅/自建房設計18年,集合國內200余位經驗豐富的設計師,被評為口碑最好的農村建筑設計公司! |

農村養老房還是一層好,帶閣樓的一層房子設計圖
占地:135平方米
10套農村經典二層樓房設計圖紙,多戶型,多尺寸,總有一款適合
占地:多種
農村四層雙拼別墅房屋設計圖,造型現代、大氣
占地:220平方米
帶電梯高端四層別墅房屋設計圖,外觀圖大氣、上檔次
占地:220平方米
新中式復式三層別墅設計圖紙,最美的新中式別墅
占地:130平方米
新中式三層歐式別墅設計圖,盡顯貴族風范,占地135平
占地:134.37平方米
小型雙拼一層平房設計圖,外觀古樸
占地:100平方米
農村二層住宅樓圖紙及效果圖,帶地下室,戶型好
占地:220平方米
農村四間二層小洋樓設計圖,歐式別墅、現代洋氣
占地:200平方米
新農村田園風格兩層半別墅設計圖,外觀造型非常漂亮
占地:147.8平方米
開間8米的小戶型二層別墅設計圖,2開間占地不到60平
占地:56平方米左右
時尚的農村二層別墅圖紙設計,現代風格,簡約的外觀
占地:152平方米左右
單棟多戶三層別墅設計圖,適合兩三家一起住
占地:125平米
農村二層樓房設計圖帶外觀圖片,造價20多萬,13.3x11
占地:146平方米
帶地下室一層別墅設計方案,功能布局齊全實用
占地:256.5平方米
村里蓋房圖紙大廳挑空的三層別墅設計圖,面寬不到10米
占地:122.4平方米
110平方米農村三層復式房屋施工圖,通透時尚,低調又奢華
占地:107.98平方米
農村一層自建房子設計圖紙及效果圖,戶型方正
占地:多戶型可選
復式樓房二層農村別墅圖,村里建一棟絕對人人都羨慕
占地:130.2平方米
闊氣高端的三層別墅設計圖,亮得恰到好處,永遠也住不膩
占地:160平方米
推薦:10套新農村自建房設計圖,2026年最新設計
閱讀次數:4825737次
100套鄉村別墅圖片大全,2026年最新設計
閱讀次數:2492203次
6款農村蓋一層平房的設計圖,10萬元就能建起來
閱讀次數:1852637次
這11個一層農村自建房別墅火爆了朋友圈!我最喜歡戶型十!你呢
閱讀次數:750268次
農村6萬元建一層小別墅圖,你敢相信嗎
閱讀次數:567686次
農村5萬塊就能自建房,6套普通房子設計圖分享,你沒看錯!
閱讀次數:419410次
8套農村漂亮三間平房圖片,非常適合在農村修建!
閱讀次數:411197次
農村自建房化糞池怎么做?附方案及施工過程
閱讀次數:391783次
農村一層三間平房設計圖,告別土氣養老房,讓人忍不住點贊
閱讀次數:350581次
新農村二層樓房圖片造價12萬,挑一套回家建房吧!
閱讀次數:349126次
