
|
2018年沒剩幾個月就要結束了,你還在考慮是否要建房,別人卻早早開工,過年就能住上新房。新年新氣象,住新房更是喜上加喜,如今現在宅基地政策越來越嚴格,有機會有條件就趕緊開工吧!今天小編給大家分享7套進深10米左右二三層農村別墅設計圖,大家可以來挑選看看有沒有適合自家的戶型! 【戶型1】 圖紙詳情 層數: 二層 結構形式: 磚混結構 主體造價: 15-20萬 開間: 10米 進深: 10米 占地面積: 100平方米 建筑面積: 174.44平方米
戶型1 建成效果圖
建成效果圖 設計功能
一層平面圖 一 層: 客廳(挑空)、廚房、餐廳、臥室×2、公衛
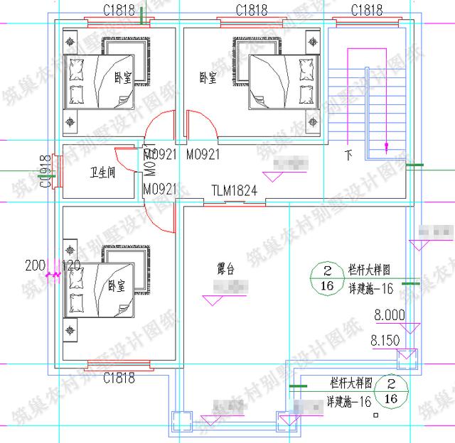
二層平面圖 二 層: 過道(帶陽臺)、臥室×2、小臥室(帶陽臺)、公衛
夾層平面圖 夾 層: 露臺花園衛 【戶型2】 圖紙詳情 層數: 三層 結構形式: 磚混結構 開間: 10.2米 進深: 9.9米(含門柱11.7米) 占地面積: 105.86平方米 總建筑面積:289.48平方米 主體造價: 25萬
戶型2
設計功能
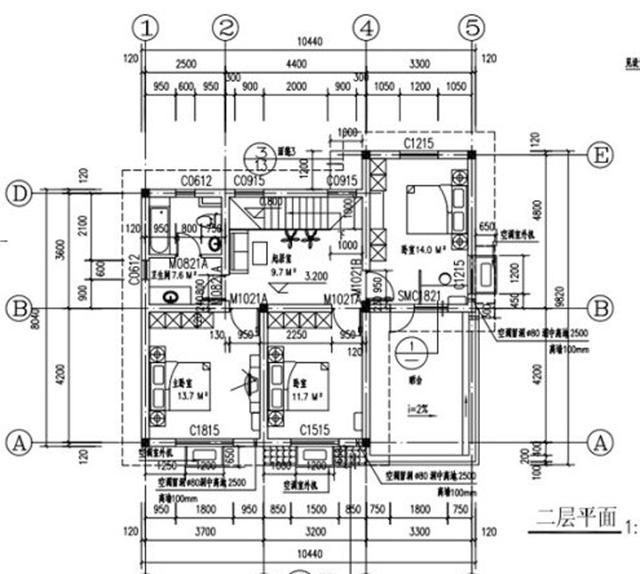
一層: 門廳、客廳、廚房、餐廳、臥室×2、衛生間
二 層: 客廳、陽臺、臥室×4、衛生間
三層: 露臺、臥室×3、衛生間 【戶型3】 圖紙詳情 層數:二層 主體造價:20萬 結構形式:磚混結構 開間:10.8米 進深:帶門柱10米 占地面積:105.88平方米 總建筑面積:201.47平方米
戶型3 室內布局展示
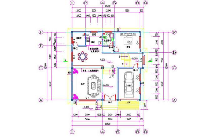
一層平面圖 一層:客廳、餐廳、廚房、臥室、衛生間。
二層平面圖 二層:臥室(帶陽臺)、臥室×2、休息區、書房(帶陽臺)、衛生間。 【戶型4】
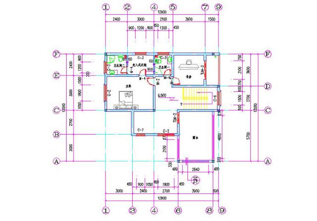
戶型4采用磚混結構,開間10.3米,進深11.5米,總建筑面積235.15平方米,主體造價 20萬元。
平面圖布局展示圖
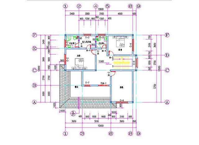
一層平面圖 一層設有走廊、玄關、客廳、2個臥室、餐廳、廚房、衛生間。
二層平面圖
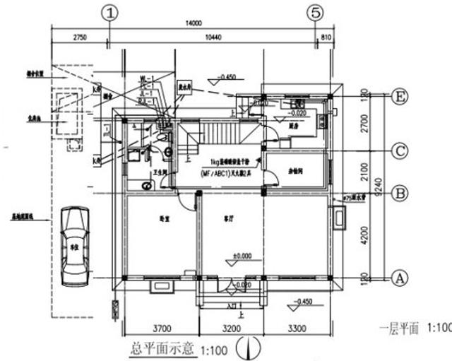
二層主要為休息區,設有一個衛生間、4個臥室(其中一個臥室帶獨立陽臺),還有一個娛樂室。 【戶型5】 圖紙詳情 層數: 二層 結構形式: 磚混結構 主體造價: 20萬 開間: 10.44米 進深: 9.24米 占地面積: 88.2平方米 建筑面積: 162.5平方米
戶型5 設計功能
一層平面圖 一 層: 客廳、臥室、雜物間、廚房、餐廳、衛生間
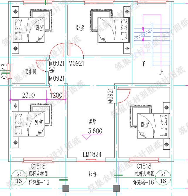
二層平面圖 二 層: 起居室、臥室×3、衛生間、曬臺 【戶型6】 圖紙詳情 層數: 三層 結構形式: 磚混結構 主體造價: 35萬 開間: 9.96米 進深: 12.96米 占地面積: 151.58平方米 建筑面積: 378平方米
戶型6 設計功能
一層平面圖 一 層: 客廳、臥室、廚房、餐廳、儲藏間、衛生間、車庫
二層平面圖 二 層: 主臥(附更衣室,衛生間)、2臥室、衛生間、露臺
三層平面圖 三 層: 主臥(附更衣室,衛生間)、書房(附陽臺)、衛生間、露臺 【戶型7】 圖紙詳情 層數:二層 結構形式:磚混結構 開間:10米 進深:10.5米 占地面積:111平方米 一層建筑面積:106.65平方米 二層建筑面積:88.24平方米 總建筑面積:194.89平方米 主體造價:20萬 【外觀1】
戶型7 【外觀2】
戶型7 設計功能:
一層平面圖 一層:門廳、客廳、餐廳、廚房、臥室×2、公衛
二層平面圖 二層:臥室(帶書房)、臥室×2、書房、露臺、公衛 圖紙之家-專注農村別墅/自建房設計18年,集合國內200余位經驗豐富的設計師,被評為口碑最好的農村建筑設計公司! |

130平米帶小院一層自建房屋設計圖,省錢實用,養老房首選
占地:130平方米左右
三間二層最好看別墅設計圖,簡單實用美到爆炸,農村建房新潮流
占地:121.51平方米
私人二層歐式別墅建筑設計圖(效果圖+全套別墅設計方案)
占地:144平方米
120平方米新農村二層自建房屋設計圖紙大全14x9米
占地:120平方米
豪華三層別墅設計圖紙,全套施工方案帶效果圖
占地:130平方米
簡單質樸三層新農村小別墅設計圖紙,別墅圖片,戶型簡單合理實
占地:120平方米
經典美式二層小別墅設計圖,回鄉建房不可不看的經典之作
占地:109.33平方米
2026最新款50萬左右農村三層別墅設計圖,客廳中空
占地:160平方米
8×12米農村三層別墅自建房設計圖,小開間精選方案
占地:103平方米
經典三層雙拼樓房設計圖,經典外觀,經典戶型
占地:225平方米
農村三層雙拼別墅戶型圖設計圖,整體外觀氣派
占地:220平方米
農村大戶型中式二層四合院別墅設計圖含外觀效果圖,戶型經典、
占地:464平方米
四層別墅豪宅外觀效果圖及全套施工圖,高端歐式風格
占地:176.97平方米
120平方兩層房子設計圖及圖片,外觀大方好看,內部結構合理
占地:120平方米
115平旋轉樓梯三層復式別墅房屋設計圖,含外觀效果圖
占地:115平方米
兩層半樓房設計圖及效果圖,農村二層房屋設計圖推薦
占地:135平方米
帶院子的一層農村別墅設計圖,造價不高,養老房首選!
占地:144.819平方米
260平方米歐式四層別墅設計圖20X18米,造價108萬
占地:260平方米
110平方米新農村三層房屋設計圖紙,含效果圖,帶車庫
占地:113平方米
豪華歐式三層別墅住宅設計圖紙,占地面積150平方米
占地:150平方米
推薦:10套新農村自建房設計圖,2026年最新設計
閱讀次數:4825737次
100套鄉村別墅圖片大全,2026年最新設計
閱讀次數:2492203次
6款農村蓋一層平房的設計圖,10萬元就能建起來
閱讀次數:1852637次
這11個一層農村自建房別墅火爆了朋友圈!我最喜歡戶型十!你呢
閱讀次數:750268次
農村6萬元建一層小別墅圖,你敢相信嗎
閱讀次數:567686次
農村5萬塊就能自建房,6套普通房子設計圖分享,你沒看錯!
閱讀次數:419410次
8套農村漂亮三間平房圖片,非常適合在農村修建!
閱讀次數:411197次
農村自建房化糞池怎么做?附方案及施工過程
閱讀次數:391783次
農村一層三間平房設計圖,告別土氣養老房,讓人忍不住點贊
閱讀次數:350581次
新農村二層樓房圖片造價12萬,挑一套回家建房吧!
閱讀次數:349126次
