
|
帶有落地窗的戶型是現在農村建房中比較流行的一種設計,這種戶型給人最深刻的印象,就是高端大氣,通透采光,越來越受現代年輕人的歡迎。今天小編給大家分享5套預算30萬二三層帶超大落地窗別墅大全,一起來看看。 【戶型1】 圖紙詳情 層數: 二層 結構形式: 框架結構 主體造價:28萬 開間: 14.5米 進深: 10.8米 占地面積: 147.36平方米 建筑面積: 272.49平方米
戶型1 這款別墅外觀時尚美觀,采用純白色及灰色為主調,明暗對比鮮明,突出外立面的立體感和層次感,超大拱形落地窗將戶外景色倒映其中,顯眼大氣,人一種清新明亮的感覺。
戶型1側面效果圖 這是側面效果圖,側面外觀看起來也很漂亮,柱形設計十分獨特,貌似煙囪,頗有田園風格。 設計功能及平面圖展示
一 層: 門廊×2、門廳、復式客廳、廚房、餐廳、臥室(帶衣帽間)、臥室、公衛
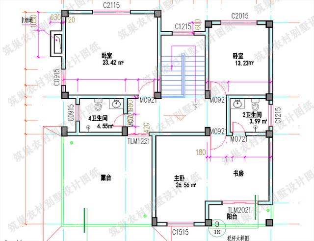
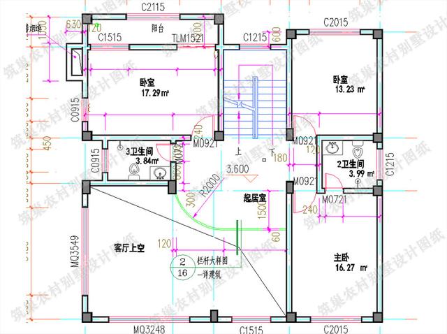
二 層: 主臥(帶陽臺、衛生間)、次臥(帶陽臺)、次臥、公衛 【戶型2】 戶型信息 層數: 三層 結構形式: 磚混結構 主體造價: 35萬 開間: 13.5米 進深: 14.3米 占地面積: 146.43平方米 建筑面積: 398.6平方米
戶型2 戶型2共有三層樓,外觀配色清新自然,有落地窗、大露臺、陽臺,室內功能齊全多樣化,可滿足不同結構的農村家庭住房需求。屋頂的大露臺是賞景的好地方,一樓設有超大落地窗及挑空客廳,時尚大氣。
功能設計 一 層: 門廳、客廳、臥室(附衛生間)、臥室、廚房、雜物間、餐廳、衛生間 二 層: 客廳、臥室(附衣帽間、衛生間、陽臺)、臥室(附衛生間)、臥室(附陽臺)、衛生間、客廳上空 三 層: 主臥室(附衣帽間、衛生間、露臺)、洗衣房、涼亭 部分平面圖展示:
一層平面圖
二層平面圖
【戶型3】 圖紙詳情:面寬11.2米,進深9.6米,一層占地面積117.14㎡,總建筑面積有301.91㎡,主體造價25萬左右。
戶型3 戶型3的多個窗戶采用拱形設計,超大落地窗十分顯眼美觀,給人一種高大上的感覺,車庫提供了愛車的安身之處。外墻配色簡約大氣,清新明亮,給人舒適的視覺體驗。
功能布局及室內布局平面圖展示:
一層平面圖 一層:堂屋、客廳、車庫、衛生間、餐廳、廚房、
二層平面圖 二層:客廳(帶陽臺)、臥室(帶衣帽間、衛生間)、臥室×2、公衛
三層平面圖
三 層:臥室×2、露臺、公衛、活動室 【戶型4】 圖紙介紹 層數: 三層 結構形式: 框架結構 主體造價: 40萬 開間:12米 進深:12米 占地面積: 139.60平方米 建筑面積:388.20平方米
戶型4 戶型4設有2扇拱形超大落地窗,落地窗對應的室內功能區域便是客廳,客廳挑空設計,寬敞明亮。外觀配色采用耐看的淺黃色為主色,搭配紅色坡面屋頂,顏色對比強烈,視覺立體感更強。
背面效果圖 設計功能
一層平面圖 一 層: 客廳、餐廳、廚房、衛生間、臥室、車庫
二層平面圖 二 層: 客廳上空、起居室、衛生間、主臥室(帶衛生間)、次臥室(帶陽臺)、臥室
三 層: 主臥(帶書房、帶衛生間、帶陽臺)、臥室、露臺、衛生間 【戶型5】 圖紙詳情 層數: 三層 結構形式: 框架結構 主體造價: 45萬 開間: 18米 進深: 13米 占地面積: 223平方米 總建筑面積: 427平方米 【方案1】
戶型5 方案1采用白色為主色,搭配寶藍色坡屋頂,小部分使用膚色裝飾,門窗套和欄桿均采用經典的黑色,與白色黑白相配,配色清新自然。 【方案2】
戶型5 方案3采用淡黃色我主色,搭配紅色屋頂,產生的視覺效果與方案1截然不同,1是清新自然的既視感,2則給人一種溫馨感,選用哪一種配色,就看個人喜歡了。 設計功能
一 層: 客廳、餐廳、老人臥室、雜物間、廚房、雙車庫、衛生間
二 層: 客廳上空、大露臺、主臥帶書房及陽臺、2個次臥室、公共衛生間
三 層: 主臥室帶書房、大臥室帶陽臺、衛公共生間、2個次臥 圖紙之家-專注農村別墅/自建房設計18年,集合國內200余位經驗豐富的設計師,被評為口碑最好的農村建筑設計公司! |

帶閣樓兩層半雙拼別墅房屋設計圖,帶外觀效果圖
占地:240平方米
農村小戶型三層復式樓房設計圖,100平左右
占地:100平方米
面寬11米超實用的農村一層別墅設計圖,南北通透造價不高
占地:110.47平方米
農村三層帶電梯小別墅設計施工圖,120平方米左右12.2x10.8米
占地:123平方米
農村兩開間農村別墅設計圖,典雅大氣,完全不輸大戶型
占地:116.26平方米
造型新穎漂亮的農村二層現代風別墅設計圖,老少皆宜的外觀
占地:144.54平方米
農村一層平房別墅設計圖,18米乘9米,實實在在的好戶型
占地:162平方米
140平方米三層豪華新中式別墅設計圖紙帶外觀效果圖
占地:141.35平方米
120平方房子設計圖及外觀圖片,12x10經典設計
占地:120平方米
一層帶地下室雙拼別墅設計圖,理想鄉村生活的標配
占地:416平方米
帶車庫三間復式三層樓房設計圖,外觀精致、大方
占地:150平方米
農村兩層新中式別墅圖紙設計圖,外觀圖片大氣,21萬左右
占地:108平方米
三層帶挑空客廳旋轉樓梯,農村這樣建別墅高檔大氣
占地:130.51平方米
三層兩開間小面寬別墅設計圖紙帶外觀效果圖,95平方米
占地:94.61平方米
人字坡房屋一層別墅設計圖,簡約低調超實用,、
占地:101.17平方米
二層雙拼別墅外觀效果圖及施工圖,帶露臺,14乘12米
占地:168平方米
250平方米農村三層別墅設計圖紙及效果圖大全,18.3x15米
占地:247平方米
120平農村三層自建房屋設計圖,旋轉樓梯復式別墅戶型方案
占地:119.23平方米
四間兩層別墅房屋設計圖,外觀效果圖好看
占地:235平方米
二層帶車庫歐式尊貴別墅圖,客廳中空,美觀,大氣,實用
占地:300平方米
推薦:10套新農村自建房設計圖,2026年最新設計
閱讀次數:4825737次
100套鄉村別墅圖片大全,2026年最新設計
閱讀次數:2492203次
6款農村蓋一層平房的設計圖,10萬元就能建起來
閱讀次數:1852637次
這11個一層農村自建房別墅火爆了朋友圈!我最喜歡戶型十!你呢
閱讀次數:750268次
農村6萬元建一層小別墅圖,你敢相信嗎
閱讀次數:567686次
農村5萬塊就能自建房,6套普通房子設計圖分享,你沒看錯!
閱讀次數:419410次
8套農村漂亮三間平房圖片,非常適合在農村修建!
閱讀次數:411197次
農村自建房化糞池怎么做?附方案及施工過程
閱讀次數:391783次
農村一層三間平房設計圖,告別土氣養老房,讓人忍不住點贊
閱讀次數:350581次
新農村二層樓房圖片造價12萬,挑一套回家建房吧!
閱讀次數:349126次
