
|
很多朋友都是長期在城里工作,只是偶爾回農村里住,這樣建套簡單大方的自建房,更方便實用,不需要花更多的心思來打掃房屋。下面推薦的這套二層輕鋼別墅,戶型方正,12x12米,回村建一棟相當實惠。
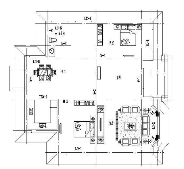
本戶型是二層農村別墅,外觀簡單大氣,外墻和文化石相結合的裝飾,富有現代氣息,戶型合理,采光通風良好,屋頂有個休閑露臺,住起來非常的舒適、實用,而且整套別墅造價比較低,適合普遍農村地區。 開間:12.4米 進深:12.3米 占地面積:136.7平方米 建筑層數:2層 建筑高度:7.9米 屋頂形式:坡屋頂 建筑結構:輕鋼結構
一層有堂屋、客廳、餐廳、廚房、臥室、衛生間。雙客廳的設計,堂屋可以擺放神位,客廳用來招待;餐廳面積大,方便家庭聚餐;有兩間臥室,可以當成老人房和客房使用。
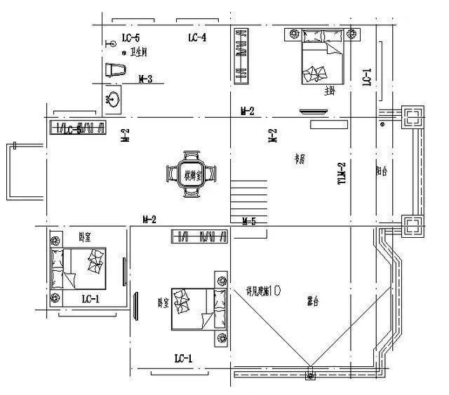
二層有棋牌室、書房、臥室、衛生間、陽臺、露臺。和親朋好友聚會的時候,可以在棋牌室娛樂一下;書房外有個小陽臺,光線充足,適合辦公學習;有3間臥室,在布局上不浪費空間,方便收拾;露臺晾曬衣物或是休閑都是不錯的好去處。
相同戶型:
![]() 圖紙之家-專注農村別墅/自建房設計18年,集合國內200余位經驗豐富的設計師,被評為口碑最好的農村建筑設計公司! |

新農村自建三層樓房設計圖紙,外觀簡單大方
占地:137平方米
帶閣樓的一層半平房設計圖,比樓房還舒適,12米×13米
占地:170.1平方米
農村自建四層百萬豪宅別墅設計圖,客廳中空
占地:170平方米
精致典雅的90平和100平方米二層樓房圖紙,藏不住的經典
占地:多種戶型
二層復式小洋樓設計圖,外觀精致,戶型合理
占地:115平方米
小型農村二層自建樓房設計圖,面寬10米小占地經濟
占地:78.54平方米
自建三層小洋樓設計圖紙,含效果圖,帶車庫
占地:121平方米
豪華農村帶露臺三層樓房別墅設計圖紙,占地200平方米左右
占地:200平方米
現代風格三層別墅設計圖紙和效果圖,農村自建精選
占地:129平方米
150平米二層鄉村小別墅圖,戶型合理,外觀清新淡雅
占地:150平方米
二層新農村自建房設計圖,帶外觀效果圖
占地:140平方米
農村三層四合院別墅設計圖紙,自建房建這棟面子十足
占地:227.49平方米
農村四間二層別墅設計方案圖,外觀精致、時尚
占地:152平方米
農村兄弟雙拼二層四合院別墅設計圖,戶型左右對稱
占地:430平方米
新古典中式風格別墅設計圖,全套施工圖+效果圖
占地:188平方米
外觀高檔大氣的三層別墅房屋設計圖,高端別墅設計展示
占地:147平方米
12x10三層別墅設計圖,農村自建房推薦戶型
占地:120平方米
二層樓房圖片及施工圖紙,占地160平米左右,帶車庫
占地:160平方米
新款240平方米三層雙拼別墅設計圖,歐式兄弟雙拼圖片
占地:240平方米
農村二層樓建房造型圖及全套施工圖紙,占地110平米左右,帶地下
占地:110平方米
推薦:10套新農村自建房設計圖,2026年最新設計
閱讀次數:4825737次
100套鄉村別墅圖片大全,2026年最新設計
閱讀次數:2492203次
6款農村蓋一層平房的設計圖,10萬元就能建起來
閱讀次數:1852637次
這11個一層農村自建房別墅火爆了朋友圈!我最喜歡戶型十!你呢
閱讀次數:750268次
農村6萬元建一層小別墅圖,你敢相信嗎
閱讀次數:567686次
農村5萬塊就能自建房,6套普通房子設計圖分享,你沒看錯!
閱讀次數:419410次
8套農村漂亮三間平房圖片,非常適合在農村修建!
閱讀次數:411197次
農村自建房化糞池怎么做?附方案及施工過程
閱讀次數:391783次
農村一層三間平房設計圖,告別土氣養老房,讓人忍不住點贊
閱讀次數:350581次
新農村二層樓房圖片造價12萬,挑一套回家建房吧!
閱讀次數:349126次
