圖紙介紹:最新款240平方米三層別墅設計圖,歐式雙拼奢華大氣圖片,這款別墅的造型大方又不失華麗,歐式風格的房子在外觀上給人一種大氣宏偉的感覺。外立面采用清新柔美的米白色為主色調,造型簡約,多露臺陽臺設計,裝飾效果非常好,有拱形入戶門廊、落地大窗富有時尚感,布局合理實用,室內采光通透
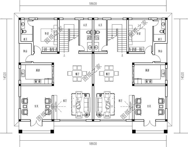
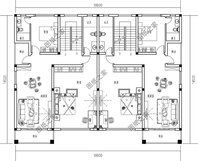
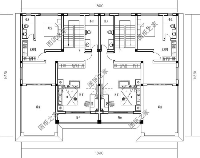
占地面積:18.6m*14.52m,240平方米左右,單戶120平左右;
建筑層高:三層;
建筑高度:12.42米(含屋頂);
設計功能:
一層:玄關、客廳、餐廳、廚房、臥室(帶衛生間)、衛生間、陽臺;
二層:起居室、臥室(帶衛生間)x2、陽臺;
三層:臥室(帶衛生間)、臥室(帶衛生間衣帽間)、露臺;
圖紙目錄:
建 筑 圖:建筑施工說明、建筑構造設計說明、一層平面圖、二層平面圖、三層平面圖、屋頂平面圖、正立面圖、背立面圖、左立面圖、右立面圖、1-1剖面圖、樓梯大樣圖、節點大樣圖、門窗大樣圖、門窗表等;
結 構 圖:結構設計說明、大樣圖、基礎平面布置圖、一層柱配筋圖、二層柱配筋圖、三層柱配筋圖、一層頂梁平法施工圖、二層頂梁平法施工圖、頂層梁平法施工圖、一層頂板結構平面圖、二層頂板結構平面圖、頂層板結構平面圖、樓梯配筋圖等;
給排水圖:給排水設計說明、一層給排水平面圖、二層給排水平面圖、三層給排水平面圖、衛生間大樣圖、給排水系統圖等;
電 氣 圖:電氣設計說明、電氣設備材料表、等電位聯結做法、配電系統圖、弱電系統圖、配電干線系統圖、一層照明平面圖、二層照明平面圖、三層照明平面圖、一層插座平面圖、二層插座平面圖、三層插座平面圖、一層弱電平面圖、二層弱電平面圖、三層弱電平面圖、基礎接地平面圖、屋頂防雷平面圖等
本方案為A3施工圖+彩色效果圖,拿到即可施工。

































































































