
|
一般在農村建房、建別墅選擇的層數至少都是兩層,但其實一層也不錯,今天小編給大家推薦一款精選出來的適合農村自建、父母養老的一層自建房,簡約又實用,關鍵是造價還不高。
門前小橋流水人家,十分具有詩情畫意,這樣自在、愜意的生活,父母肯定喜歡。尤其是外觀造型設計很特別,從墻體到屋頂都是紅色的面飾磚,最底下一層圍裙采用蘑菇石。白色的檐線設計,白色的窗套線,白色的水泥制品欄桿作為裝飾,搭配紅色的主體,非常的大氣漂亮。紅色雙開防盜門非常適合農村用,實用也好看,一點不落俗。
建筑詳情: 占地尺寸:14.0m*10.5m 占地面積:建筑面積145平左右; 建筑層高:一層; 建筑高度:6.50米(含屋頂); 建筑結構:裝配式。
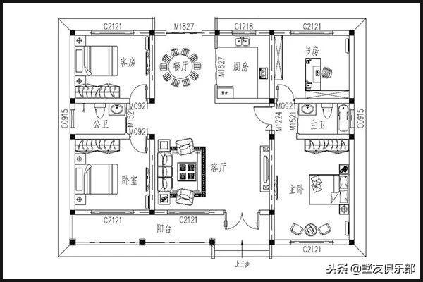
屋內平面設計,進去是客廳,左右各一個臥室,一個主臥一個側臥,主臥帶一個衛生間。側臥和客房中間共用一個衛生間,客房的隔壁是餐廳和廚房,最里面是一個書房。
面積不大,但是空間利用很合理,各個功能區都有,四室兩廳兩衛,給父母養老再適合不過了。尤其是圓形的小飄窗設計,非常的獨特、搶眼。
這款一層的自建房非常的美觀、漂亮,一層平房設計內部布局非常合理,南北通透,開的窗戶比較多,采光優良,通風效果極好。還不趕緊收藏起來給父母準備著嗎? 圖紙之家-專注農村別墅/自建房設計18年,集合國內200余位經驗豐富的設計師,被評為口碑最好的農村建筑設計公司! |

預算10萬左右新農村自建房屋設計圖紙,帶效果圖
占地:82平方米
200平方米農村二層中式四合院設計圖,含外觀圖片
占地:200平方米
新農村三層房屋設計圖紙大全,新農村住宅圖紙
占地:108平方米
15萬左右一層農村自建房設計圖,一家住剛剛好
占地:131.33平方米
陽臺封閉的簡約實用二層別墅設計圖,15x12.8米
占地:165平方米
美爆的三層經典復式別墅設計圖紙及效果圖,建好更漂亮
占地:130平方米左右
農村四間兩層樓房設計圖,外觀時尚,戶型實用
占地:180平方米
現代三層農村民房設計圖及圖片,外觀高端、大氣
占地:196平方米
120平米農村40萬三層別墅自建房款式,簡歐風格
占地:120平方米
四層自建別墅設計圖,有車庫帶露臺,時尚大氣給你一個五星級的
占地:152.51平方米
新農村現代簡約別墅建筑設計圖紙(含外觀效果圖),28萬左右
占地:107平方米
農村160平四間兩層樓房設計圖,全套施工圖+外觀效果圖片
占地:160平方米
200平方米穩重大氣三層雙拼別墅建筑設計圖紙,含效果圖19.04米
占地:200平方米
農村四層樓房設計圖,含外觀圖片,自建四層房屋推薦
占地:140平方米
新農村三層豪華歐式別墅,復式高端自建房設計圖紙及效果圖
占地:多種戶型
150平米簡歐三層農村別墅設計圖,低調又奢華
占地:151.2平方米
現代別墅設計圖紙帶效果圖,85平、100平、145平三個戶型方案
占地:多種戶型
120平方米三層歐式別墅設計圖,進門就是旋轉樓梯
占地:119.76平方米
140平三層別墅房屋設計圖,含外觀圖片,外觀現代時尚
占地:143平方米
鄉村最美四合院設計圖及外觀效果圖片,國人的理想住宅
占地:280.62平方米
推薦:10套新農村自建房設計圖,2026年最新設計
閱讀次數:4825737次
100套鄉村別墅圖片大全,2026年最新設計
閱讀次數:2492203次
6款農村蓋一層平房的設計圖,10萬元就能建起來
閱讀次數:1852637次
這11個一層農村自建房別墅火爆了朋友圈!我最喜歡戶型十!你呢
閱讀次數:750268次
農村6萬元建一層小別墅圖,你敢相信嗎
閱讀次數:567686次
農村5萬塊就能自建房,6套普通房子設計圖分享,你沒看錯!
閱讀次數:419410次
8套農村漂亮三間平房圖片,非常適合在農村修建!
閱讀次數:411197次
農村自建房化糞池怎么做?附方案及施工過程
閱讀次數:391783次
農村一層三間平房設計圖,告別土氣養老房,讓人忍不住點贊
閱讀次數:350581次
新農村二層樓房圖片造價12萬,挑一套回家建房吧!
閱讀次數:349126次
