
|
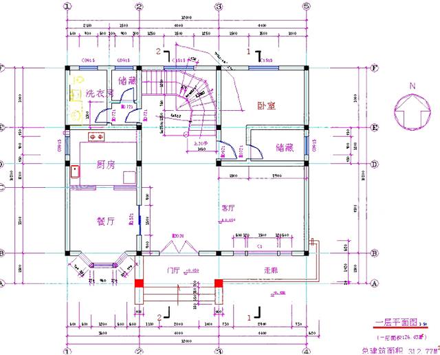
對于建房,我們最期待的環節便是房子的最終建成效果,能夠將原設計圖高度還原的戶型都是最令人贊賞的,今天小編就來給大家分享一則廣西農村三層小洋樓建房過程實拍:27萬130平6臥,一起來欣賞! 圖紙詳情 層數: 二層 結構形式: 磚混結構 主體造價: 27萬 開間: 12米 進深: 10.8米 占地面積: 126.43平方米 建筑面積: 312.77平方米 原設計效果圖
原設計效果圖 這款設計圖在外觀上雖然不是特別豪華,但走的是更貼近農村建房實際的路線,風格簡約大氣,灰白色外墻大方耐看,門廊設計氣勢恢宏,階梯式入戶,有走廊,有陽臺,還有多個臥室套房,功能齊全,居住舒適。 建成效果圖
房屋建成側拍效果圖
房屋建成效果與原設計圖對比 業主采用灰色和藍色搭配,在陰天色彩分明,在蔚藍的天空下整體泛著藍光,十分漂亮。 設計功能
一 層:門廳、走廊、客廳、 臥室(附儲藏室)、洗衣房(附儲藏室)、廚房、餐廳、 二 層: 主臥(附衛生間、書房)、兒童臥室、客房(附陽臺)、衛生間 閣 樓: 2客房、露臺 圖紙之家-專注農村別墅/自建房設計18年,集合國內200余位經驗豐富的設計師,被評為口碑最好的農村建筑設計公司! |

一層半房屋別墅設計圖,帶閣樓圖、帶露臺,外觀新穎時尚
占地:130平方米
簡歐二層別墅設計圖紙含效果圖片,寶家鄉墅經典風格
占地:137.34平方米
共用中堂雙拼兄弟三層別墅設計圖,簡歐式風格
占地:230平方米
仿古中式三合院設計圖紙,帶堂屋,適合農村自建
占地:173平方米
雙拼二層大別墅設計圖,大面寬小進深,讓兄弟永遠不分家
占地:207.15平方米
二層中式四合院別墅設計圖,經典、漂亮(全套施工圖)
占地:350平方米
90平方米小戶型自建三層房屋設計圖紙及外觀效果圖
占地:91平方米左右
新農村私人別墅建筑設計施工圖,全套別墅設計圖紙
占地:多種戶型
造價40萬三層大氣自建房設計圖紙,鄉村別墅建造圖
占地:159.609平方
徽派自建房一層設計圖,七字型設計,獨立餐廚便捷實用
占地:171.65平方米
中式徽派二層農村別墅設計圖,白墻黛瓦馬頭墻,永不過時
占地:171平方米
二層簡歐農房!經濟實惠+大氣耐看,20年后不落后
占地:120平方米
150平方米農村二層磚混結構別墅施工建筑設計圖,平頂設計
占地:150平方米
農村四層樓房設計圖,含外觀圖片,自建四層房屋推薦
占地:140平方米
高端三層帶地下室別墅房屋設計圖方案及效果圖
占地:135平方米
三層新農村別墅設計圖片及全套圖紙,外形對稱,帶露臺,這個戶
占地:160平方米
新農村現代簡約別墅建筑設計圖紙(含外觀效果圖),28萬左右
占地:107平方米
背面不開窗二層別墅設計圖,對稱設計簡單好看,眾多建房者的選
占地:183.79平方米
兄弟三層雙拼房屋設計圖,帶效果圖,戶型好
占地:256平方米
中式復古四層別墅房屋設計圖紙,含外觀效果圖
占地:90平方米
推薦:10套新農村自建房設計圖,2026年最新設計
閱讀次數:4825737次
100套鄉村別墅圖片大全,2026年最新設計
閱讀次數:2492203次
6款農村蓋一層平房的設計圖,10萬元就能建起來
閱讀次數:1852637次
這11個一層農村自建房別墅火爆了朋友圈!我最喜歡戶型十!你呢
閱讀次數:750268次
農村6萬元建一層小別墅圖,你敢相信嗎
閱讀次數:567686次
農村5萬塊就能自建房,6套普通房子設計圖分享,你沒看錯!
閱讀次數:419410次
8套農村漂亮三間平房圖片,非常適合在農村修建!
閱讀次數:411197次
農村自建房化糞池怎么做?附方案及施工過程
閱讀次數:391783次
農村一層三間平房設計圖,告別土氣養老房,讓人忍不住點贊
閱讀次數:350581次
新農村二層樓房圖片造價12萬,挑一套回家建房吧!
閱讀次數:349126次
