
|
農村建房如今打得火熱,家里有點錢的都把老房子拆了重建,蓋起了一棟又一棟精美小洋樓,戶型寬敞大氣,四面采光,讓城里的人羨慕不已。雖然現在農民手里有錢了,但是在建房上還需謹慎,不要一味跟風在,追求外表的奢華繁復,更要追求內在的合理設計。 下面給大家分享一款25萬框架結構農村二層自建房,2廳5臥圍廊+露臺,戶型精致美觀! 圖紙詳情 層數: 二層 結構形式: 框架結構 主體造價: 25萬 開間: 13.1米 進深: 12.8米 占地面積: 167.68平方米 建筑面積: 239平方米
效果圖 橙色和寶藍色搭配,適當加入純凈的白色點罪,配色清新大方,讓整個房子簡單又耐看。二樓的露臺可以作為景觀臺,南北兩面多窗設計無論是采光還是通風,絕對都是數一數二的。 一樓設有圍廊,階梯式入戶設計感十足。房間尺度適合,功能豐富,利用率高。 設計功能
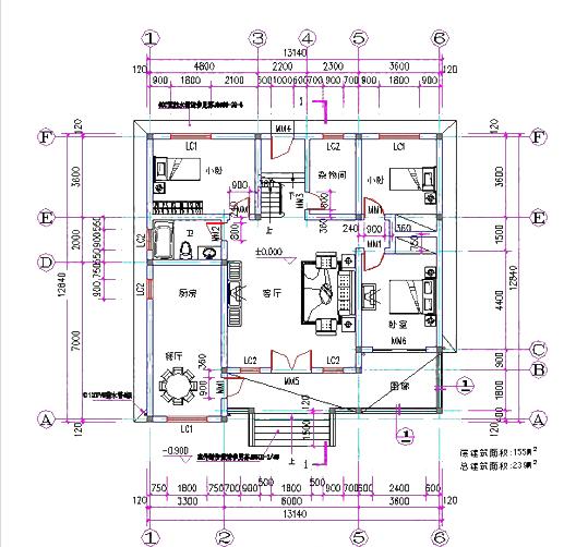
一層平面圖 一 層: 客廳、餐廳、廚房、雜屋間、臥室、2小臥室、公共衛生間、圍廊 二 層: 主臥室帶露臺、次臥室、書房、公共衛生間 更多二層優質圖紙推薦:
1
2
3
4
5
圖紙之家-專注農村別墅/自建房設計18年,集合國內200余位經驗豐富的設計師,被評為口碑最好的農村建筑設計公司! |

小戶型三層現代風別墅設計圖,可別再說農村不適合現代風了
占地:92.34平方米
新農村小戶型4層自建房三層半別墅設計圖,平屋頂設計
占地:95平方米
廚房餐廳在配房的歐式三層農村別墅設計方案,華麗又宜居
占地:177.58平方米
三層半復式別墅設計方案,全套設計圖+效果圖
占地:160平方米
經濟小戶型二層中式四合院(三合院)設計圖紙,帶堂屋和庭院
占地:143.544平方米
新農村私人別墅建筑設計施工圖,全套別墅設計圖紙
占地:多種戶型
面寬10米左右的三層農村別墅設計案例,低調又奢華
占地:120平方米
中式二層三合院設計圖紙含外觀效果圖片,大氣又實用
占地:216.04平方米
120平方米新農村四層房屋設計圖紙和效果圖
占地:120平方米
農村新中式別墅設計圖及效果圖,造價25萬左右
占地:95平方米
小戶型二層四合院別墅設計圖,含外觀效果圖,小宅基地選擇
占地:134平方米
農村20萬元二層小樓圖片及全套圖紙,外型美造價低
占地:多種戶型
農村小別墅一層設計圖紙,全套施工圖兩款戶型可選
占地:多種戶型可選
農村四層樓房外形設計圖,主臥配有陽臺和衣帽間還有衛生間
占地:126平方米
農村15萬元二層小樓圖,經濟實用小別墅設計圖
占地:105平方米
小平米四層自建房屋設計圖紙,戶型簡單實用,占地80平方米
占地:80平方米
12x10三層別墅設計圖,農村自建房推薦戶型
占地:120平方米
高端大氣三層別墅設計圖,建好就是村里最靚的
占地:120平方米
10萬內2層小洋樓設計圖,平屋頂,戶型設計合理
占地:90平方米
大面寬一層別墅設計圖紙,新中式風格兩款戶型
占地:多戶型可選
推薦:10套新農村自建房設計圖,2026年最新設計
閱讀次數:4825737次
100套鄉村別墅圖片大全,2026年最新設計
閱讀次數:2492203次
6款農村蓋一層平房的設計圖,10萬元就能建起來
閱讀次數:1852637次
這11個一層農村自建房別墅火爆了朋友圈!我最喜歡戶型十!你呢
閱讀次數:750268次
農村6萬元建一層小別墅圖,你敢相信嗎
閱讀次數:567686次
農村5萬塊就能自建房,6套普通房子設計圖分享,你沒看錯!
閱讀次數:419410次
8套農村漂亮三間平房圖片,非常適合在農村修建!
閱讀次數:411197次
農村自建房化糞池怎么做?附方案及施工過程
閱讀次數:391783次
農村一層三間平房設計圖,告別土氣養老房,讓人忍不住點贊
閱讀次數:350581次
新農村二層樓房圖片造價12萬,挑一套回家建房吧!
閱讀次數:349126次
