
|
如今農村建房風格越來越多樣化,什么樣的風格和功能都有,隨著我國經濟的快速發展,農村房屋功能設計也是多樣化、現代化、城市化,只有你想不到,沒有你做不到的。今天小編給大家分享3款簡單實用三層農村自建小洋樓別墅全套施工圖 ,這3套圖紙面寬都是11米,外觀造型簡約,造價經濟,施工簡單! 01
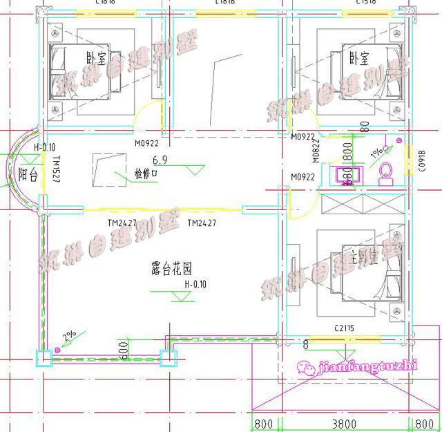
別墅介紹 層數: 三層 結構形式: 磚混結構 主體造價: 26-30萬 開間: 11米 進深:11米(含門柱、半旋轉樓梯 需要的總土地尺寸是12米X12米) 占地面積: 123.93平方米 建筑面積:297.81平方米 功能設計 一 層: 門廳、餐廳、客廳、廚房、臥室、主臥室、衛生間 二 層: 主臥室(陽臺)、2個臥室、衛生間 三 層: 露臺花園、陽臺、主臥室、2個臥室、衛生間 平面圖展示:
一層平面圖
二層平面圖
三層平面圖 02
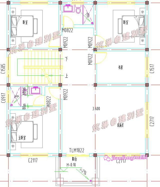
戶型基本信息 層數:三層 結構形式:磚混結構 主體造價:24-28萬 開間:11.2米 進深:13.9米(含門柱進深在內) 占地面積:140.92平方米 建筑面積:372.53平方米 設計功能 一 層:門廳、客廳、餐廳、廚房、臥室、衛生間、車庫 二 層:4間臥室、棋牌室、衛生間、露臺 三 層:2間臥室、活動室、休息區、衛生間、露臺 平面布局圖:
一層平面圖
二層平面圖
三層平面圖 03
房屋簡介 層數: 三層 結構形式: 磚混結構 主體造價: 24-28萬 開間: 10.7米 進深: 11.7米 占地面積: 130平方米 建筑面積: 349平方米 設計功能 一 層: 堂屋、客廳、臥室廚房、餐廳、儲藏室、公共衛生間、樓梯 二 層: 主臥(附衛生間)、2個次臥室、客廳帶陽臺、公共衛生間、書房。 三 層: 主臥(附衛生間)、2次臥室、書房、公共衛生間、露臺。 室內功能布局圖:
一層平面圖
二層平面圖
三層平面圖 圖紙之家-專注農村別墅/自建房設計18年,集合國內200余位經驗豐富的設計師,被評為口碑最好的農村建筑設計公司! |

高端二層新中式四合院別墅設計圖,含全套CAD施工圖
占地:217平方米
歐式三層小洋樓設計圖,外觀氣派,典雅、高貴
占地:145平方米
一層時尚農村自建別墅方案,低至10萬的造價,適合住家養老
占地:131.04平方米
簡單實用的二層雙拼別墅設計圖,總占地150平米左右,雙拼房屋
占地:150平方米MB
一層雙拼別墅獨立入戶+共用墻,兄弟合建,施工隊直呼太省料
占地:269.43平方米
最美農村一層合院設計圖紙,自建一棟火遍十里八鄉
占地:190平方米左右
200平米二層自建房別墅設計圖,外觀漂亮布局實用
占地:207.09平方米
居家養老一層別墅設計圖,面寬20米,農村建一棟不吃虧
占地:259.7平方米
18米乘10米一層農村自建房設計圖,大方耐看符合傳統對稱美
占地:180平方米
現代風格建房圖紙二層別墅設計方案,外觀百看不厭
占地:多戶型可選
14x12.5米二層農村別墅設計圖,布局完美獨立,顏值高又實用
占地:153.95平方米
五開間一層農村平房設計圖,200平米大戶型,五間臥房足夠用了
占地:200.7平方米
帶小院子的鄉村一層別墅設計圖紙,120平方米
占地:多戶型
新中式農村三層樓房設計圖,帶地下室,主體建筑面積110平米
占地:110平方米
農村三間兩層樓房設計圖,帶車庫,戶型簡單實用
占地:140平方米
現代別墅設計圖紙帶效果圖,85平、100平、145平三個戶型方案
占地:多種戶型
帶車庫的新中式風格一層別墅設計圖,鳥語花香回家建房
占地:184平方米
最接農村地氣的二層農村小別墅,造價30萬左右,經濟實用
占地:170平方米
歐式四層(三層半)獨棟別墅設計圖復式,設計豪華時尚
占地:194平方米
雙拼豪華高端三層別墅設計圖,外觀效果圖大氣
占地:300平方米
推薦:10套新農村自建房設計圖,2026年最新設計
閱讀次數:4825737次
100套鄉村別墅圖片大全,2026年最新設計
閱讀次數:2492203次
6款農村蓋一層平房的設計圖,10萬元就能建起來
閱讀次數:1852637次
這11個一層農村自建房別墅火爆了朋友圈!我最喜歡戶型十!你呢
閱讀次數:750268次
農村6萬元建一層小別墅圖,你敢相信嗎
閱讀次數:567686次
農村5萬塊就能自建房,6套普通房子設計圖分享,你沒看錯!
閱讀次數:419410次
8套農村漂亮三間平房圖片,非常適合在農村修建!
閱讀次數:411197次
農村自建房化糞池怎么做?附方案及施工過程
閱讀次數:391783次
農村一層三間平房設計圖,告別土氣養老房,讓人忍不住點贊
閱讀次數:350581次
新農村二層樓房圖片造價12萬,挑一套回家建房吧!
閱讀次數:349126次
