
|
現在在農村建別墅,講究的是,美觀大氣漂亮,最好實用實惠,因為時代在變,經濟發展打,對于房子越來越注重好看舒適,從之前的平房瓦房,變成現在的樓房別墅,這個現象無疑在說明我們現在人民的生活是變得越來越好,所以下面給大家介紹外觀絕對漂亮,造價實惠,布局又實用的3款三層別墅。 款式一
別墅編號:MS1703178新品 占地尺寸:10.9X14.4米 占地面積:150平方米 建筑面積:378.4平方米 結構類型:磚混結構 造價預算:36萬左右
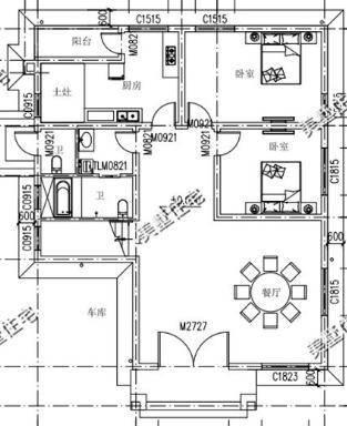
兩個衛生間,一個廚房,一個陽臺和一個土灶,右邊是兩個臥室。
2層一共有三個臥室一個衛生間,一個起居室和一個棋牌室,外加一個陽臺 三層有兩個臥室,一個衛生間,一個露臺和一個陽臺。
款式二
別墅編號:MS1703189 占地尺寸:11.76X10.26米 占地面積:126平方米 建筑面積:322.75平方米 結構類型:磚混結構 造價預算:31萬左右
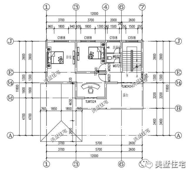
左邊是客廳,右邊是臥室和衛生間,再往前走,是廚房和餐廳,以及一個公共衛生間。
有三個臥室,兩個衛生間,一個客廳和一個陽臺
有一個臥室,一個衛生間,一個娛樂,是一個公共衛生間,一個大的露臺。 款式三
別墅編號:MS1703188 占地尺寸:12X11.8米 占地面積:130平方米 建筑面積:348.59平方米 結構類型:磚混結構 造價預算:26萬左右
一層從客廳開始,往里是餐廳和廚房,左邊有一個臥室,一個衣帽間和一個娛樂室,右邊是有一個衛生間,一個洗手間一個洗澡房,還有一個雜物間。
三個臥室。兩個衛生間,一個洗手間,一個洗澡間,一個起居室,兩個陽臺。
一共有兩個臥室,一個書房,一個衛生間,一個洗澡間,外加一個露臺 圖紙之家-專注農村別墅/自建房設計18年,集合國內200余位經驗豐富的設計師,被評為口碑最好的農村建筑設計公司! |

帶車庫的一層雙拼別墅設計方案,出入方便保安全,大氣優雅還長
占地:179.7平方米
15×10米農村二層四合院自建房戶型圖,小型四合院設計圖
占地:150平方米
豪華歐式三層別墅住宅設計圖紙,占地面積150平方米
占地:150平方米
農村二間二層小別墅設計方案,精而美的經典樣式不容錯過
占地:115.32平方米
農村4間3層樓房設計圖,帶車庫,挑空客廳,坡屋頂設計
占地:160平方米
歐式二層別墅cad施工圖紙,含效果圖,歐式別墅設計圖紙展示
占地:189平方米
150平米簡單大方的三層農村自建房設計圖,坡層頂,色彩鮮明,布
占地:150平方米
農村二層中式戶型設計圖,造型古香古色,建好絕對是地標
占地:245.39平方米
農村帶車庫兩層歐式農村別墅設計圖紙,占地220平方米左右
占地:221平方米
中式復古四層別墅房屋設計圖紙,含外觀效果圖
占地:90平方米
現代風平屋頂一層自建房設計,經濟時尚
占地:147.17平方米
30萬左右的新農村自建三層別墅施工設計圖紙及效果圖
占地:148平方米
平頂新中式三層農村別墅設計圖,最適合鄉村自建占地150平米
占地:150.35平方米
帶電梯的農村歐式雙拼三層豪宅別墅設計圖,樓梯電梯共用
占地:268.448平方米
客廳中空復式二層別墅設計圖,歐式風格外觀
占地:180平方米
農村現代新中式三合院設計圖及效果圖片,外觀好看極了
占地:多戶型可選
自建帶電梯的三層豪華別墅設計圖,建好有面子,面寬16米
占地:194平方米左右
四層(三層半)豪華歐式別墅房屋設計圖,外觀高端、大氣
占地:150平方米
三層歐式自建房別墅設計方案,11x11米洋氣實用,飽受大家好評
占地:127平方米
方正對稱二層農村自建別墅施工圖,經濟實用舒適大氣
占地:129.6平方米
推薦:10套新農村自建房設計圖,2026年最新設計
閱讀次數:4825737次
100套鄉村別墅圖片大全,2026年最新設計
閱讀次數:2492203次
6款農村蓋一層平房的設計圖,10萬元就能建起來
閱讀次數:1852637次
這11個一層農村自建房別墅火爆了朋友圈!我最喜歡戶型十!你呢
閱讀次數:750268次
農村6萬元建一層小別墅圖,你敢相信嗎
閱讀次數:567686次
農村5萬塊就能自建房,6套普通房子設計圖分享,你沒看錯!
閱讀次數:419410次
8套農村漂亮三間平房圖片,非常適合在農村修建!
閱讀次數:411197次
農村自建房化糞池怎么做?附方案及施工過程
閱讀次數:391783次
農村一層三間平房設計圖,告別土氣養老房,讓人忍不住點贊
閱讀次數:350581次
新農村二層樓房圖片造價12萬,挑一套回家建房吧!
閱讀次數:349126次
