
|
現在農村建房就是一場盛大的選美大賽,不僅要求住起來舒服,還要比比誰家建的更漂亮,可是普通老百姓審美有限,到哪里去找那么多顏值高又實用的小別墅呢?不要著急,今天給大家介紹5款在村里最流行的別墅,跟著大伙建一定不會踩雷。 戶型一
房屋基本信息: 開間:12.4米 進深:11.8米 占地面積:141.09平方米 建筑面積:282.19平方米 建筑結構:磚混結構 參考造價:26萬左右
戶型方正大氣,內部空間利用率高,明廚明衛。外墻以淺色瓷磚為主,富有田園氣息,造型不一的窗戶凸顯現代風格。 戶型二
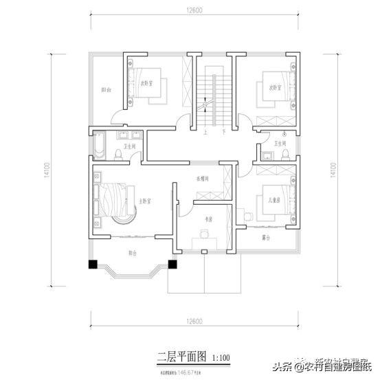
房屋基本信息: 開間:12.6米 進深:12米 占地面積:161.48平方米 建筑面積:322.96平方米 建筑結構:磚混結構 參考造價:30萬左右
外墻以暖色調為主,有著濃濃的居家氣息。凹凸有致的玻璃窗設計,讓房子氣質立現。整體美觀時尚,非常適合農村家庭建造。 戶型三
房屋基本信息: 開間:12.6米 進深:14.1米 占地面積:177.355平方米 建筑面積:314.1平方米 建筑結構:磚混結構 參考造價:28—30萬
淺色瓷磚和深色文化石的外墻不僅充滿質感,而且增加時尚度,在農村這樣的配色也更加耐臟。立面線條豐富,整體造型感強。 戶型四
房屋基本信息: 開間:11.76米 進深:12.46米 占地面積:143.02平方米 建筑面積:369.5平方米 建筑結構:磚混結構 參考造價:28—35萬
外觀清新素雅,建筑線條流暢簡約,建筑元素簡單不會拖泥帶水,這樣的顏值在村里絕對是數一數二。 戶型五
房屋基本信息: 開間:11.8米 進深:14.1米 占地面積:141.59平方米 建筑面積:229.56平方米 建筑結構:磚混結構 參考造價:25—28萬
一看上去就非常舒服,給人眼前一亮的感覺。外形大氣,墻面配色經得起推敲,而且非常耐看。100多平的占地面積卻建出了豪宅的感覺。 圖紙之家-專注農村別墅/自建房設計18年,集合國內200余位經驗豐富的設計師,被評為口碑最好的農村建筑設計公司! |

一層自建別墅設計圖,占地70平不大功能很齊全,非常適合農村養
占地:69.61平方米
一層半小別墅設計圖帶效果圖,農村自建帶閣樓一層半方案
占地:155平方米
農村二層住宅設計圖,大窗戶客廳,一起享受大面積采光的溫暖
占地:220平方米
農村自建房就選它!一層新中式設計,日常居住需求全搞定
占地:128.45平方米
經典三層雙拼房屋設計圖,帶效果圖,戶型好,單戶面積120
占地:240平方米
120平方米新農村全套二層施工設計圖紙大全11X11米
占地:120平方米
超大氣的農村一層雙拼自建別墅設計方案,絕對讓人羨慕的“平房
占地:424平方米
2026最好看的農村三層樓房圖片及施工圖紙,客廳寬敞
占地:120平方米
占地110平米兩層半農村房子設計圖,簡單實用
占地:110.25平方米
農村200平一層別墅房屋設計圖,外觀圖片時尚、漂亮
占地:200平方米
南方新農村三層房屋設計圖大全,預算30萬內
占地:145平方米
面寬不到10米的小戶型自建房戶型圖,全套設計圖紙可施工
占地:123.2平方米左右
造型新穎漂亮的農村二層現代風別墅設計圖,老少皆宜的外觀
占地:144.54平方米
小戶型二層四合院別墅設計圖,含外觀效果圖,小宅基地選擇
占地:134平方米
農村一層平房設計圖及效果圖,一層房屋設計方案推薦
占地:270平方米
大平方大面積別墅設計方案圖,樓中樓客廳中空
占地:247平方米
經典三層別墅設計圖紙(全套施工圖+效果圖),新農村自建推薦
占地:123平方米
預算30萬左右的新農村三層房屋設計圖推薦,含外觀效果圖
占地:117平方米
農村三間兩層樓房設計圖,帶外觀效果圖
占地:140平方米
占地130平方米二層鄉村別墅自建房圖紙設計圖,效果圖好看
占地:131.658平方米
推薦:10套新農村自建房設計圖,2026年最新設計
閱讀次數:4825737次
100套鄉村別墅圖片大全,2026年最新設計
閱讀次數:2492203次
6款農村蓋一層平房的設計圖,10萬元就能建起來
閱讀次數:1852637次
這11個一層農村自建房別墅火爆了朋友圈!我最喜歡戶型十!你呢
閱讀次數:750268次
農村6萬元建一層小別墅圖,你敢相信嗎
閱讀次數:567686次
農村5萬塊就能自建房,6套普通房子設計圖分享,你沒看錯!
閱讀次數:419410次
8套農村漂亮三間平房圖片,非常適合在農村修建!
閱讀次數:411197次
農村自建房化糞池怎么做?附方案及施工過程
閱讀次數:391783次
農村一層三間平房設計圖,告別土氣養老房,讓人忍不住點贊
閱讀次數:350581次
新農村二層樓房圖片造價12萬,挑一套回家建房吧!
閱讀次數:349126次
