
|
中式風格別墅都大同小異,灰白水墨色調,朱門翠竹,是建筑幾千年延續下來的婉約雅致之美,而不拘一格的屋頂設計和露臺設計為中式別墅注入了現代血液。廊檐的轉角,門窗的格調和四面圍墻等細節出設計古樸別致。下面為大家介紹3套帶露臺中式三合院,其中兩套有車庫 第一套
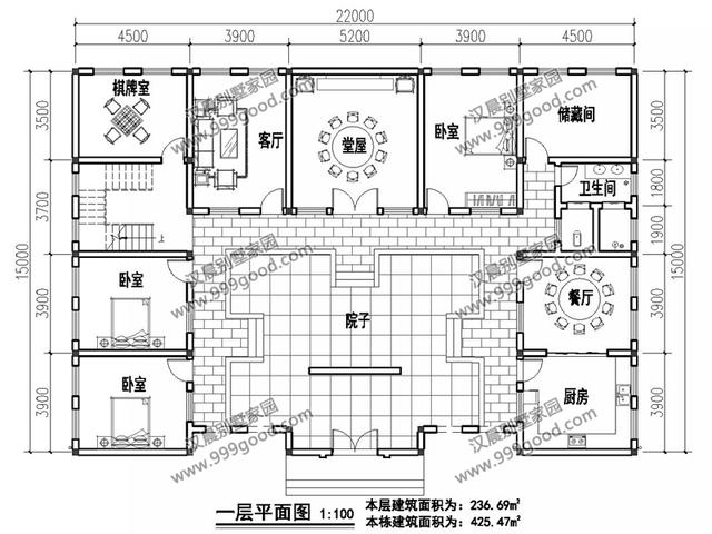
很多人都說中式三合院蓋不起,可這個造價和一棟歐式的三層別墅差不多,關鍵就在宅地的大小了。
朱門、白墻、灰瓦、紅欄經典的中式建筑外觀配色。而這棟上外觀屋頂的瓦用的是湛藍的色調,打造與眾不同。
平面功能:合院一定要有院子,通常有照壁用來提高私密性。廚房餐廳在進門的地方,臥室分布比較均勻,且正中央對著的是堂屋設計,顯得非常有氣勢。
占地170多平米的兩層三合院,造價不到30萬著實令人吃驚。此棟戶型結合了中式、現代和歐式的建筑特點,在屋頂設計,外觀造型上多有創新。
平面功能:車庫放在院子外面,隔離塵土。院子做了下沉式設計,每個空間格局都有臺階上下,提高了主屋的氣勢。
一體化的廚房、餐廳和麻將室設計,利于排煙。兩大露臺滿足基本需求。
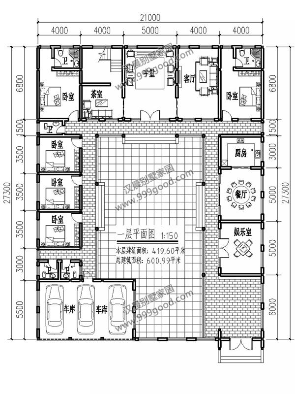
說車庫不夠用的這棟能否滿足你?三大車庫和歇頂式的屋頂設計,造成現代和古典視覺上的沖擊,大門開在側面,也避免了開門見山
平面功能:布局非常緊湊,廚房餐廳一起,眾多臥室都連在一起毗鄰公衛。 比較私密的主要臥室都帶有獨立衛生間,二層為主要的生活區間,有書房方便平時加班。
![]() 圖紙之家-專注農村別墅/自建房設計18年,集合國內200余位經驗豐富的設計師,被評為口碑最好的農村建筑設計公司! |

100平方三層樓房設計圖及圖片,戶型設計簡約時尚
占地:100平方米
農村二層小別墅自建房屋設計圖,客廳中空,占地150平米
占地:150平方米
占地百平農村三層戶型方案,簡約實用,獨具特色,理想新居等你
占地:105.61平方米
二層氣質現代小洋樓設計圖,堪比城市別墅,全村最美沒商量
占地:121.07
新農村二層帶露臺經濟型小別墅設計圖紙,含外觀效果圖
占地:120平方米
農村25萬別墅款式二層自建房設計圖,外觀簡約大氣
占地:多種戶型
三層別墅40萬左右氣派的外觀效果圖,含全套施工設計圖
占地:161.46平方米
三層帶地下室+旋轉樓梯別墅設計圖紙,復式挑空客廳
占地:多種戶型
南方新農村三層樓房設計圖紙,帶房屋效果圖
占地:110平方米
農村自建房鄉村超現代平屋頂二層別墅圖設計方案,造價低,施工
占地:142平方米
占地200平米簡歐三層農村別墅設計圖,既顯華麗又接地氣
占地:209.27平方米
140平方米農村三層復式房屋設計施工圖,開放式廚房
占地:143平方米
三層新中式別墅設計圖,面寬12米經典漂亮
占地:154.93平方米
豪華大氣三層農村房屋設計圖,對稱的主體設計大氣恢宏
占地:240平方米
最新款農村三層自建房戶型設計圖及外觀圖片照片,鄉村蓋房精選
占地:112.56平方米
漂亮的農村三層小樓房設計圖,簡單大氣,帶車庫
占地:150平方米
農村二層小別墅圖片,二層別墅效果圖及設計圖
占地:153平方米
30萬以下的經典二層新農村別墅設計圖紙及效果圖,簡單大氣
占地:170平方米
新中式農村自建二層別墅設計圖,占地160平米左右,客廳中空
占地:160平方米
推薦:10套新農村自建房設計圖,2026年最新設計
閱讀次數:4825737次
100套鄉村別墅圖片大全,2026年最新設計
閱讀次數:2492203次
6款農村蓋一層平房的設計圖,10萬元就能建起來
閱讀次數:1852637次
這11個一層農村自建房別墅火爆了朋友圈!我最喜歡戶型十!你呢
閱讀次數:750268次
農村6萬元建一層小別墅圖,你敢相信嗎
閱讀次數:567686次
農村5萬塊就能自建房,6套普通房子設計圖分享,你沒看錯!
閱讀次數:419410次
8套農村漂亮三間平房圖片,非常適合在農村修建!
閱讀次數:411197次
農村自建房化糞池怎么做?附方案及施工過程
閱讀次數:391783次
農村一層三間平房設計圖,告別土氣養老房,讓人忍不住點贊
閱讀次數:350581次
新農村二層樓房圖片造價12萬,挑一套回家建房吧!
閱讀次數:349126次
