
|
房子是咱們老百姓經常討論的話題,因為居住是人的基本需求,每個人都離不開家,每個家庭都需要一套房子。城里的商品房買不起,不如在農村老家建一棟經濟實惠的小別墅。不需要那么多花俏的裝飾,把別墅修建得大氣實用就夠了。 今天給大家分享6套12X12米的農村三層別墅,經典大氣又實用,這樣的設計你喜歡嗎? 第一套
正面效果圖
背面效果圖
鳥瞰效果圖 占地面積:11.92m*12.70m,148平方米左右; 建筑層高:三層; 建筑高度:12.33米(含屋頂); 設計功能: 一 層:客廳、餐廳、廚房、衛生間、臥室(帶衛生間)、娛樂室 二 層:客廳、休閑區、主臥、臥室x2(可做書房)、衛生間、陽臺 三 層:客廳、主臥、臥室x2(可做書房)、衛生間、露臺
一層平面圖
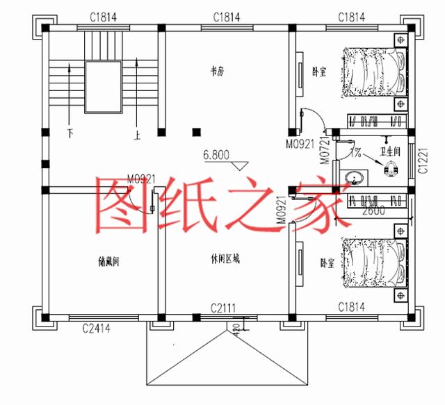
二層平面圖
三層平面圖 第二套
別墅效果圖 占地面積:12.54m*11.44m,占地140平方米左右; 建筑層高:三層; 建筑高度:12.35米(含屋頂); 設計功能: 一 層:客廳、餐廳、廚房、臥室、衛生間、車庫【可做臥室】; 二 層:客廳、臥室x3、書房、棋牌室、衛生間、陽臺x2; 三 層:臥室x3、書房、衛生間、露臺;
一層平面圖
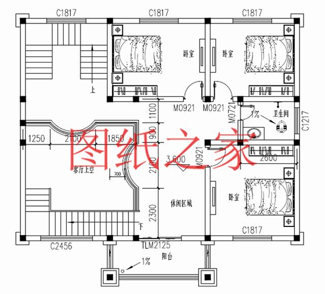
二層平面圖
三層平面圖 第三套
正面效果圖
背面效果圖
鳥瞰效果圖 占地面積:12.6m*11.6m,一層占地146平方米左右(含外門庭); 建筑層高:三層; 建筑高度:13.3米(含屋頂); 設計功能: 一 層:客廳、廚房、餐廳、臥室×2、儲藏室、衛生間; 二 層:客廳、小廳、臥室x3、衛生間、露臺; 三 層:臥室、衛生間、多功能區域、大露臺;
一層平面圖
二層平面圖
三層平面圖 第四套
正面效果圖
背面效果圖
鳥瞰效果圖 占地面積:12.6m*11.8m,一層占地148平方米左右(含外門庭); 建筑層高:三層; 建筑高度:13.08米(含屋頂); 設計功能: 一 層:客廳、廚房、餐廳、臥室×2、衛生間; 二 層:客廳上空、休閑區、臥室x3、衛生間、陽臺; 三 層:臥室x2、衛生間、書房、休閑區、儲藏間;
一層平面圖
二層平面圖
三層平面圖 第五套
正面效果圖
鳥瞰效果圖 占地面積:11.76m*12.5m,147平方米左右; 建筑層高:三層; 建筑高度:12.2米(含屋頂); 設計功能: 一 層:大堂、神位、客廳、廚房、餐廳、衛生間、雜物間、老人房 二 層:主臥(帶衛生間和衣帽間)、起居室、臥室X2、衛生間、臥室(帶雜物間); 三 層:起居室、客房、衛生間、雜物間、書房、娛樂室、大露臺
一層平面圖
二層平面圖
三層平面圖 第六套
別墅效果圖 占地面積:11.5m*12.5m,140平方米左右; 建筑層高:三層; 建筑高度:12.51米(含屋頂); 設計功能: 一 層:客廳、餐廳、廚房、衛生間、臥室、車庫;(車庫可以改成臥室或儲藏間) 二 層:主臥(帶衛生間)、臥室x2、書房、娛樂室、衛生間; 三 層:起居室、主臥、次臥、書房、大露臺;
一層平面圖
二層平面圖
三層平面圖 這幾套別墅的設計圖,你最喜歡哪一套? 圖紙之家-專注農村別墅/自建房設計18年,集合國內200余位經驗豐富的設計師,被評為口碑最好的農村建筑設計公司! |

150平米左右歐式三層鄉村別墅設計圖,客廳中空
占地:150平方米
帶車位的鄉村二層別墅建筑結構設計圖,全套施工圖140平
占地:139.85平方米
造價30萬的三層簡歐新農村別墅設計施工圖紙及效果圖
占地:133平方米
農村三層樓房圖造價26萬,客廳中空,占地90平米
占地:90平方米
簡歐復式四層別墅房屋設計圖,外觀圖高端、大氣
占地:143平方米
普通農村二層房子設計圖 ,復式結構,帶車庫,占地160平米左右
占地:160平方米
造價15萬經濟美觀一層農村別墅設計圖,占地150平米
占地:多戶型可選
18×15米新中式高檔農村三層別墅設計圖,低調奢華又實用
占地:195.91平方米
實用農村10萬一層小別墅戶型圖及圖紙,全套施工圖
占地:多種面積
二層農村小別墅自建房設計圖,布局實用,占地150平
占地:149.05平方米
預算10萬的簡單二層半別墅房屋設計圖,外觀簡單,造價低
占地:90平方米
150平米左右農村二層房屋設計圖,造價25萬左右漂亮實用
占地:150平方米
農村7字形漂亮房子設計圖及外觀效果圖
占地:189.3平方米
農村最好看兩層小樓圖及全套CAD施工圖紙,新中式風格,簡潔大氣
占地:150平方米
15×10米農村二層四合院自建房戶型圖,小型四合院設計圖
占地:150平方米
120平方米新農村四層房屋設計圖紙和效果圖
占地:120平方米
鄉村兄弟二層小戶型雙拼房屋別墅設計圖,造價低,面積小
占地:多種戶型
農村一層四開間自建別墅,美麗住宅如詩如畫里15米乘10米
占地:142平方米
農村自建二層樓房設計圖及效果圖,二層房屋圖推薦
占地:105平方米
120平農村三層房屋設計圖,含外觀圖片
占地:120平方米
推薦:10套新農村自建房設計圖,2026年最新設計
閱讀次數:4825737次
100套鄉村別墅圖片大全,2026年最新設計
閱讀次數:2492203次
6款農村蓋一層平房的設計圖,10萬元就能建起來
閱讀次數:1852637次
這11個一層農村自建房別墅火爆了朋友圈!我最喜歡戶型十!你呢
閱讀次數:750268次
農村6萬元建一層小別墅圖,你敢相信嗎
閱讀次數:567686次
農村5萬塊就能自建房,6套普通房子設計圖分享,你沒看錯!
閱讀次數:419410次
8套農村漂亮三間平房圖片,非常適合在農村修建!
閱讀次數:411197次
農村自建房化糞池怎么做?附方案及施工過程
閱讀次數:391783次
農村一層三間平房設計圖,告別土氣養老房,讓人忍不住點贊
閱讀次數:350581次
新農村二層樓房圖片造價12萬,挑一套回家建房吧!
閱讀次數:349126次
