
|
現在農村都是在弄新農村建設,建設的那叫一個好看,那叫一個美呀!很多村子有這樣的好政策,但是,也就有很多村子沒有這樣的政策了。這樣我們也想建出這樣的像新農村里的房子一樣的,就得看看我推薦的這5套了!看完這5套你也可以建出這么美的別墅! 第一套:三層簡歐風格別墅,帶大露臺,大落地窗,大門頭。氣勢如虹,美觀大氣!
平面圖:一層帶雜物間,臥室,挑空大客廳;二層帶陽臺,3間臥室;三層帶大露臺!
第二套:經典歐式風格別墅,帶大露臺,淡黃色外墻,藍色坡屋頂,大落地窗,羅馬門頭!
背面圖:
正面圖:
平面圖:一層帶2個臥室;二層開放式影院,衣帽間,起居室,陽臺;三層帶露臺,衣帽間。
第三套:二層現代別墅,帶泳池,白色外墻,平屋頂,大玻璃窗。
背面圖:
俯瞰圖:
平面圖:一層帶儲藏間,花壇,茶室,2間臥室;二層帶帶露臺,儲藏間。
第四套:二層城堡歐式小別墅!藍色坡屋頂,羅馬門柱,大門頭!
背面圖:
俯瞰圖:
平面圖:一層帶娛樂室,衣帽間,洗衣房;二層帶陽臺,書房,衣帽間。
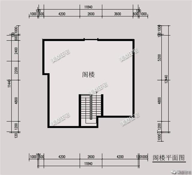
第五套:二層新農村新型別墅。配色高級好看,棕色坡屋頂,淡黃色的真石漆外墻。
俯瞰圖:
背面圖:
平面圖:一層帶車庫,帶一間臥室,儲藏間;二層帶三間臥室,閣樓!
5套都是2018年新農村建房的標準戶型,建的最多,村民們都搶著蓋!你最中意那一款呢? 圖紙之家-專注農村別墅/自建房設計18年,集合國內200余位經驗豐富的設計師,被評為口碑最好的農村建筑設計公司! |

兩層平屋頂帶地下室別墅設計方案(全套自建房施工圖+效果圖)
占地:152.55平方米
110平方米新農村三層房屋設計圖,含外觀效果圖
占地:110平方米
經典農村三層樓房設計圖,10個不同尺寸戶型,各種戶型供您選擇
占地:多種
農村二層四合院設計圖,秒殺各種洋別墅
占地:220平方米
現代三層農村房屋設計圖紙及效果圖,帶全套cad建筑圖
占地:95平方米
新農村三拼別墅三戶連體別墅設計圖,設計新穎美觀
占地:380平方米
新款農村三層雙拼聯體別墅戶型圖,客廳中空,單戶120平米左右
占地:240平方米
三層三間別墅設計圖方案,含外觀圖片,自建推薦
占地:125平方米
旋轉樓梯挑空獨棟二層簡歐小別墅設計圖,大氣時尚
占地:189.26平方米
田園輕奢三層帶露臺的鄉村別墅設計圖紙,11x10米
占地:106.64平方米
農村二層小別墅圖片,二層別墅效果圖及設計圖
占地:153平方米
簡單經濟一層自建養老房,12米乘9.5米,溫暖舒適施工簡單
占地:103.2平方米
一二層都帶廚房餐廳的獨棟二層別墅設計圖,帶雙廚房
占地:143.68平方米
農村兄弟雙拼二層四合院別墅設計圖,戶型左右對稱
占地:430平方米
新古典中式風格別墅設計圖,全套施工圖+效果圖
占地:188平方米
自建一層三合院別墅圖,雅致鄉村居造價經濟,南北通透更宜居!
占地:176.36平方米
中式三層新農村房子別墅設計圖,看了那么久,還是中式最有韻味
占地:97.2平方米
簡單農村二層自建房子設計圖,主體18萬就能建好,太心動了!
占地:124.53
140平三層自建房別墅設計圖,外觀圖大氣、美觀
占地:140平方米
100平方米新農村二層別墅設計圖紙,帶屋頂露臺
占地:100平方米
推薦:10套新農村自建房設計圖,2026年最新設計
閱讀次數:4825737次
100套鄉村別墅圖片大全,2026年最新設計
閱讀次數:2492203次
6款農村蓋一層平房的設計圖,10萬元就能建起來
閱讀次數:1852637次
這11個一層農村自建房別墅火爆了朋友圈!我最喜歡戶型十!你呢
閱讀次數:750268次
農村6萬元建一層小別墅圖,你敢相信嗎
閱讀次數:567686次
農村5萬塊就能自建房,6套普通房子設計圖分享,你沒看錯!
閱讀次數:419410次
8套農村漂亮三間平房圖片,非常適合在農村修建!
閱讀次數:411197次
農村自建房化糞池怎么做?附方案及施工過程
閱讀次數:391783次
農村一層三間平房設計圖,告別土氣養老房,讓人忍不住點贊
閱讀次數:350581次
新農村二層樓房圖片造價12萬,挑一套回家建房吧!
閱讀次數:349126次
