
|
農村與城市相比,最大的優勢就是接地氣,很多人之所以喜歡去農家樂體驗農村生活,就是因為能提要到與自己日常生活不同的輕松感。接地氣的不僅是農村的生活,農村的小別墅也是一樣,與商品房相比,農村自建房無疑是經濟實惠了許多,所以很多越來越多的城里人到農村來修建別墅,逢年過節的可以來度假休閑。 今天給大家介紹2套現代風格三層別墅,布局合理,13X14米、14X13米的戶型非常接地氣! 第一套
正面效果圖
背面效果圖
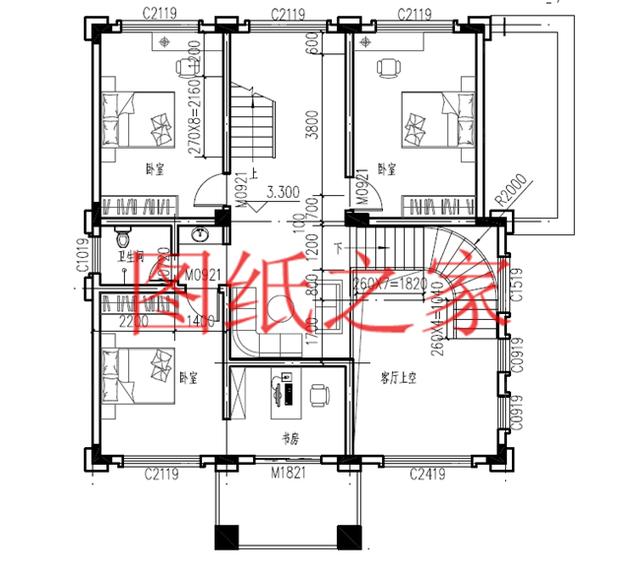
鳥瞰效果圖 占地面積:12.7m*14.1m,一層占地140平方米左右(含外門庭); 建筑層高:三層; 建筑高度:13.08米(含屋頂); 設計功能: 地下室:功能自定義; 一 層:客廳、廚房、餐廳、臥室、書房、衛生間; 二 層:客廳上空、小客廳、臥室(帶書房)、臥室x2、衛生間、陽臺; 三 層:臥室x2、衛生間、大露臺;
地下平面圖
一層平面圖
二層平面圖
三層平面圖 第二套
正面效果圖
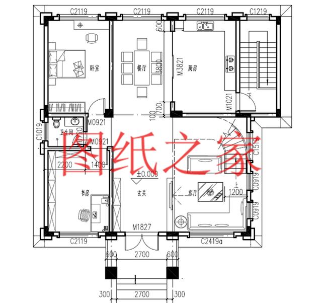
背面效果圖 占地面積:13.74m*12.67m,160平方米左右; 建筑層高:三層; 建筑高度:12.10米(含屋頂); 設計功能: 戶型設計: 一 層:大廳、客廳、餐廳、廚房、臥室x2、衛生間、儲藏間; 二 層:客廳、主臥(帶書房、衛生間、衣帽間)、臥室(帶書房、衣帽間)、臥室、衛生間、陽臺; 三 層:臥室(帶衣帽間)、臥室、娛樂健身房、衛生間、大露臺;
一層平面圖
二層平面圖
三層平面圖 這幾套別墅的設計圖,你最喜歡哪一套? 圖紙之家-專注農村別墅/自建房設計18年,集合國內200余位經驗豐富的設計師,被評為口碑最好的農村建筑設計公司! |

帶閣樓兩層半雙拼別墅房屋設計圖,帶外觀效果圖
占地:240平方米
經濟實用二層復式樓房設計圖 ,占地150平方米,造價25萬左右
占地:150平方米
自建三層小洋樓設計圖紙,含效果圖,帶車庫
占地:121平方米
240平農村二層自建別墅設計圖紙,帶你體驗家的溫馨
占地:240平方米
13×16米農村自建樓房三層別墅戶型設計圖,大氣
占地:168平方米
后面帶小院的農村房屋設計圖,適合鄉村自建
占地:300平方米
二層帶車庫歐式尊貴別墅圖,客廳中空,美觀,大氣,實用
占地:300平方米
鄉村一層平房設計圖,面寬13米平面圖及造型圖
占地:170平方米
110平方米農村三層復式房屋施工圖,通透時尚,低調又奢華
占地:107.98平方米
農村高端中式三層雙拼全套房屋施工設計圖,效果圖很大氣
占地:340平方米
小戶型二層農村別墅設計圖,占地140平經典漂亮
占地:139.54平方米
一層鄉村自建別墅設計方案推薦,含外觀圖片
占地:148平方米
農村平屋頂中式合院設計圖,帶車庫帶庭院
占地:210平方米
150平農村三層歐式別墅設計圖紙,盡顯豪華與精致,讓人羨慕不已
占地:147.62平方米
農村四間兩層樓房設計圖,外觀時尚,戶型實用
占地:180平方米
鄉村典型自建房中式二層四合院別墅設計圖,左右對稱設計
占地:430平方米
四層豪華別墅設計圖及效果圖,高端房屋設計方案
占地:250平方米
歐式豪華三層別墅設計圖,占地面積170平米,高端大氣帶露臺
占地:170平方米
農村帶地下室二層半自建房屋設計圖,樓中樓設計,歐式風格
占地:140平方米
小戶型二層四合院別墅設計圖,含外觀效果圖,小宅基地選擇
占地:134平方米
推薦:10套新農村自建房設計圖,2026年最新設計
閱讀次數:4825737次
100套鄉村別墅圖片大全,2026年最新設計
閱讀次數:2492203次
6款農村蓋一層平房的設計圖,10萬元就能建起來
閱讀次數:1852637次
這11個一層農村自建房別墅火爆了朋友圈!我最喜歡戶型十!你呢
閱讀次數:750268次
農村6萬元建一層小別墅圖,你敢相信嗎
閱讀次數:567686次
農村5萬塊就能自建房,6套普通房子設計圖分享,你沒看錯!
閱讀次數:419410次
8套農村漂亮三間平房圖片,非常適合在農村修建!
閱讀次數:411197次
農村自建房化糞池怎么做?附方案及施工過程
閱讀次數:391783次
農村一層三間平房設計圖,告別土氣養老房,讓人忍不住點贊
閱讀次數:350581次
新農村二層樓房圖片造價12萬,挑一套回家建房吧!
閱讀次數:349126次
