
|
對于農村來說,建房是關系到全家老小的大事,需要建得稱心如意才行。一層的居住面積太小了,不實用;三層和以上對于家里的老人來說,爬樓梯太累太危險,而且用不了的房間就浪費了;所以說二層別墅最受大家的歡迎。 下邊給大家介紹5套農村二層自建房,美觀實用造價低,全家人都喜歡! 第一套
別墅效果圖 占地面積:10.20m*9.90m,100平方米左右; 建筑層高:二層; 建筑高度:9.50米(含屋頂); 設計功能: 一層別墅戶型:客廳、餐廳、廚房、主臥(帶衛生間)、衛生間、儲藏間(樓梯下); 二層別墅戶型:客廳、臥室x3、衛生間、露臺、陽臺;
一層平面圖
二層平面圖 第二套
正面效果圖
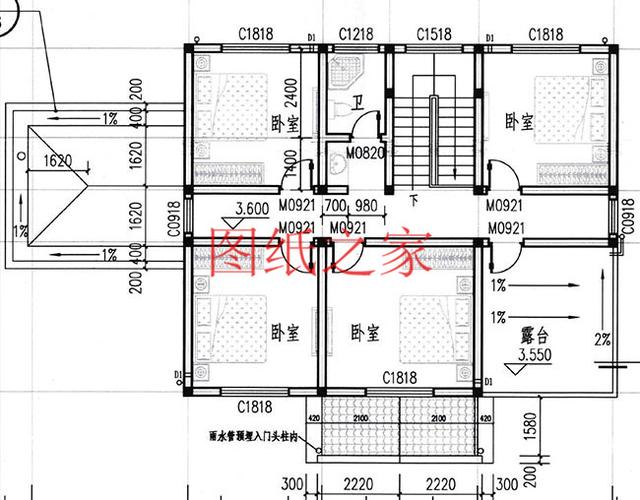
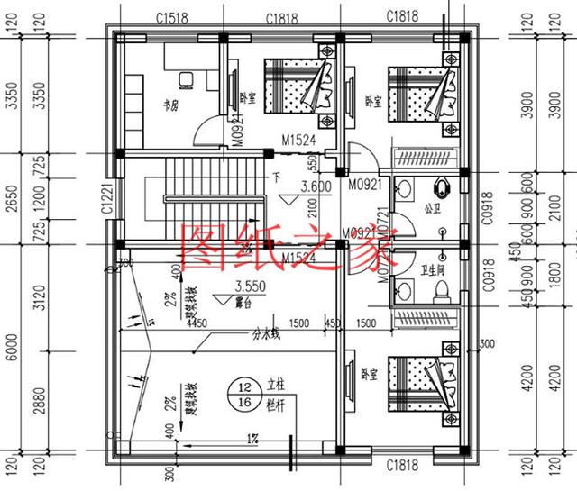
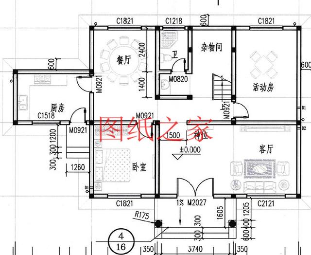
鳥瞰圖 占地面積:15.84m*9.44m,150平方米左右; 建筑層高:二層半(帶閣樓); 建筑高度:8.91米(含屋頂); 設計功能: 一層別墅戶型:神位、客廳、活動房、雜物間、衛生間、餐廳、廚房、臥室; 二層別墅戶型:露臺、臥室X4、衛生間; 閣樓別墅戶型:自定義功能區;
一層平面圖
二層平面圖
閣樓平面圖 第三套
別墅效果圖 占地面積:12.0m*10.0m,120平方米左右; 建筑層高:二層; 建筑高度:9.50米(含屋頂); 結構形式:磚混結構; 設計功能: 一層別墅戶型:堂房、客廳、臥室x2、廚房、餐廳、衛生間 二層別墅戶型:小客廳、臥室x3、儲藏間(更衣室)、衛生間、露臺
一層平面圖
二層平面圖 第四套
正面效果圖
鳥瞰圖 占地面積:12.30m*13.50m,165平方米左右; 建筑層高:二層; 建筑高度:8.47米(含屋頂); 設計功能: 一層別墅戶型:客廳、餐廳、廚房、衛生間、臥室(帶衛生間)、車庫(可以做臥室); 二層別墅戶型:主臥(帶衛生間)、臥室(帶書房、衣帽間、露臺)、臥室、室內露臺;
一層平面圖
二層平面圖 第五套
正面效果圖
背面效果圖 占地面積:16.00m*10.9m,一層建筑面積160平方米左右; 建筑層高:二層; 建筑高度:9.57米(含屋頂); 設計功能: 一層別墅戶型:玄關、客廳、餐廳、廚房、雜物間、臥室x2、衛生間; 二層別墅戶型:起居室、臥室x4、衛生間、露臺;
一層平面圖
二層平面圖
圖紙之家-專注農村別墅/自建房設計18年,集合國內200余位經驗豐富的設計師,被評為口碑最好的農村建筑設計公司! |

農村二層小樓的設計圖紙,整體外觀凹凸有致,紅色的坡面屋頂
占地:180平方米
堂屋共用的三層雙拼別墅設計圖,總占地面積245平米
占地:245平方米
新中式三層雙拼別墅設計圖,外觀圖片美觀、大氣
占地:176平方米
農村三間兩層樓房設計圖,帶車庫,戶型簡單實用
占地:140平方米
三層農村小別墅設計圖,一層帶商鋪,占地110平米,經濟實用
占地:110平方米
帶電梯農村建房三層小洋樓,樓中樓結構,帶露臺
占地:110平方米
南方新農村三層樓房設計圖紙,帶房屋效果圖
占地:110平方米
一層農村三合院平房設計圖,可以倆兄弟或和父母兒女一起住
占地:202.79平方米
140平方米一層歐式新農村平房設計圖,主體造價僅11萬
占地:141.218平方米
豪華二層別墅設計圖紙及效果圖,帶車庫,歐式別墅方案
占地:170平方米
簡單大氣的農村二層樓設計圖,二層歐式農村別墅設計圖
占地:180平方米
復式三層雙拼別墅設計圖,客廳中空,旋轉樓梯
占地:350平方米
高端三層豪宅別墅設計方案圖,帶地下室,過悠然愜意生活
占地:127.06平方米
農村一層7字型平房別墅設計圖,“L”自行戶型,外觀簡約低調
占地:213.39平方米
最新12x9米一層平房別墅設計圖,好看不貴居住舒適!
占地:108平方米
新中式二層別墅設計圖,農村最適合建的兩層小樓,13×12米
占地:143平方米
高端三層帶地下室別墅房屋設計圖方案及效果圖
占地:135平方米
農村別墅220-240平米的雙拼自建房設計圖,屋頂帶老虎窗
占地:220平方米
125平方米新農村二層房屋施工設計CAD圖紙加效果圖
占地:125平方米
美式田園二層別墅設計方案圖,全套設計圖+效果圖
占地:235平方米
推薦:10套新農村自建房設計圖,2026年最新設計
閱讀次數:4825737次
100套鄉村別墅圖片大全,2026年最新設計
閱讀次數:2492203次
6款農村蓋一層平房的設計圖,10萬元就能建起來
閱讀次數:1852637次
這11個一層農村自建房別墅火爆了朋友圈!我最喜歡戶型十!你呢
閱讀次數:750268次
農村6萬元建一層小別墅圖,你敢相信嗎
閱讀次數:567686次
農村5萬塊就能自建房,6套普通房子設計圖分享,你沒看錯!
閱讀次數:419410次
8套農村漂亮三間平房圖片,非常適合在農村修建!
閱讀次數:411197次
農村自建房化糞池怎么做?附方案及施工過程
閱讀次數:391783次
農村一層三間平房設計圖,告別土氣養老房,讓人忍不住點贊
閱讀次數:350581次
新農村二層樓房圖片造價12萬,挑一套回家建房吧!
閱讀次數:349126次
