
|
伴隨著經濟的發展,大家的審美也發生了巨大的變化,如果用現在的眼光來看以前的農村房子,可以用土舊破敗來形容,所以現在新修建的農村小別墅就顯得不僅精致漂亮,還增加了許多咱們生活必須的現代化設施,非常大方便實用。 今天給大家推薦4套15X11米三層農村小別墅,溫馨舒適、簡單實用,一起來看看吧! 第一套
正面效果圖
背面效果圖
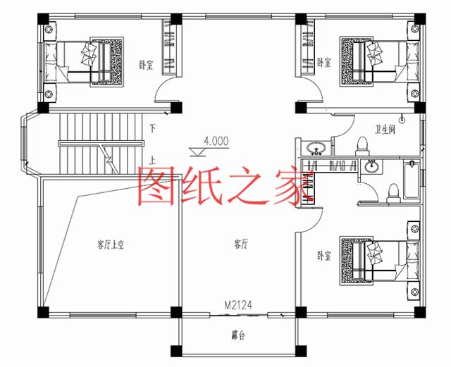
鳥瞰效果圖 占地面積:14.0m*11.0m,一層占地155平方米左右; 建筑層高:三層; 建筑高度:14.79米(含屋頂); 設計功能: 一 層:客廳、廚房、餐廳、臥室(帶衛生間)、娛樂室、衛生間、洗衣間; 二 層:客廳上空、客廳、臥室(帶衣帽間,衛生間)、臥室x2、衛生間、小露臺; 三 層:臥室(帶衣帽間,衛生間)、臥室、K歌室、衛生間、大露臺;
一層平面圖
二層平面圖
三層平面圖 第二套
正面效果圖
背面效果圖
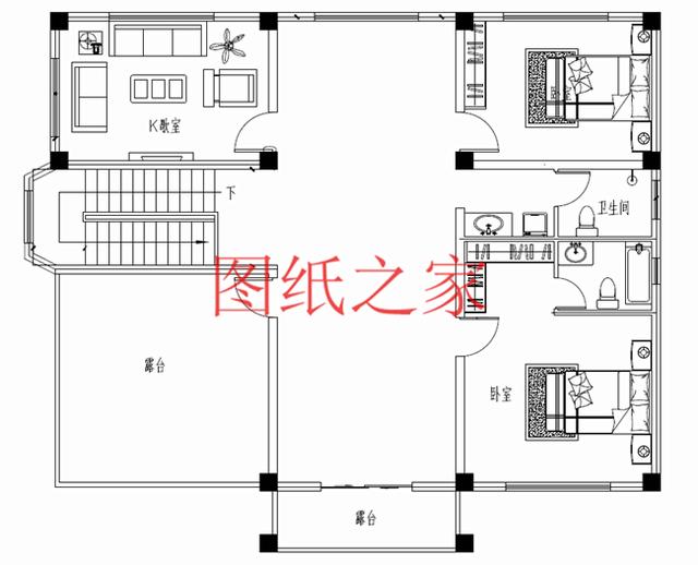
鳥瞰效果圖 占地面積:14.2m*11.2m,一層占地153平方米左右; 建筑層高:三層; 建筑高度:12.5米(含屋頂); 設計功能: 一 層:客廳、廚房、餐廳、老人房(帶衛生間)、臥室、衛生間; 二 層:起居室、臥室(帶衣帽間,衛生間)、臥室(帶衛生間)×2、露臺; 三 層:起居室、臥室(帶衛生間)×2、衛生間、大露臺;
一層平面圖
二層平面圖
三層平面圖 第三套
別墅效果圖 占地面積:15.25m*11.4m,一層建筑150平方米左右; 建筑層高:三層半; 建筑高度:14.88米(含屋頂); 設計功能: 一 層:客廳、餐廳、廚房、主臥(帶衛生間)、大廳(功能自定義)、衛生間、車庫; 二 層:客廳上空、茶吧、主臥(帶衣帽間和衛生間)、臥室(帶衛生間)、臥室、衛生間、走廊、陽臺x2; 三 層:臥室(帶衣帽間和衛生間)、臥室(帶衛生間)、臥室、衛生間、休閑廳、露臺、陽臺; 屋 頂:功能自定義、涼亭、露臺x2;
一層平面圖
二層平面圖
三層平面圖
屋頂平面圖 第四套
別墅效果圖 占地面積:15.24m*11.04m(含右側車庫),占地150平方米左右; 建筑層高:三層; 建筑高度:12.31米(含屋頂); 設計功能: 一 層:門廳、客廳(樓中樓)、老人房(帶衛生間)、廚房、餐廳、衛生間、車庫 二 層:起居室、主臥(帶衛生間)、次臥x2、書房、衛生間、陽臺 三 層:起居室、主臥(帶衛生間)、次臥x3、衛生間、露臺、陽臺
一層平面圖
二層平面圖
三層平面圖 這幾套別墅的設計圖,你最喜歡哪一套? 圖紙之家-專注農村別墅/自建房設計18年,集合國內200余位經驗豐富的設計師,被評為口碑最好的農村建筑設計公司! |

戶型好的三層帶獨立車庫的樓房設計圖,含外觀效果圖
占地:148平方米
四開間一層自建房設計圖,四臥二廳+棋牌室+書房
占地:181.29平方米
農村養老房還是一層好,帶閣樓的一層房子設計圖
占地:135平方米
豪華新中式兩層半農村別墅設計圖,繁華之外,心之所向
占地:290.4平方米
戳中年輕人喜好!時尚三層自建房,簡約時尚設計,住著舒適自然
占地:169.76平方米
鄉村仿古一層別墅圖片及設計圖,經典實用,占地170平
占地:170平方米
最好看大氣的豪華三層樓房設計圖,客廳中空,旋轉樓梯
占地:340平方米
精致小巧新農村二層別墅設計圖紙,占地90平米左右,造價15萬左
占地:90平方米
200平農村二層別墅設計圖,外觀現代簡約
占地:204平方米
農村二層住宅別墅設計圖,貼心實用,12.8米乘14.5米
占地:156.16平方米
農村10萬元一層小別墅設計圖,農村一層自建房屋設計圖
占地:多種戶型
農村超級好看的現代風格兩層小樓圖,清新優雅
占地:多種戶型
開間8米的小戶型二層別墅設計圖,2開間占地不到60平
占地:56平方米左右
20萬農村一層半小洋樓圖,自建別墅設計方案推薦
占地:155平方米
三層蓋房子歐式挑空客廳別墅設計圖,外觀漂亮戶型實用
占地:多種戶型
豪華歐式三層別墅住宅設計圖紙,占地面積150平方米
占地:150平方米
占地130平三層現代別墅設計圖方案,帶電梯和地下室設計
占地:134.75平方米
90平米三層農村房子設計圖,簡單大氣實用
占地:94.28平方米
帶車庫農村二層樓房設計圖,外觀漂亮,精致
占地:154平方米
造型新穎漂亮的農村二層現代風別墅設計圖,老少皆宜的外觀
占地:144.54平方米
推薦:10套新農村自建房設計圖,2026年最新設計
閱讀次數:4825737次
100套鄉村別墅圖片大全,2026年最新設計
閱讀次數:2492203次
6款農村蓋一層平房的設計圖,10萬元就能建起來
閱讀次數:1852637次
這11個一層農村自建房別墅火爆了朋友圈!我最喜歡戶型十!你呢
閱讀次數:750268次
農村6萬元建一層小別墅圖,你敢相信嗎
閱讀次數:567686次
農村5萬塊就能自建房,6套普通房子設計圖分享,你沒看錯!
閱讀次數:419410次
8套農村漂亮三間平房圖片,非常適合在農村修建!
閱讀次數:411197次
農村自建房化糞池怎么做?附方案及施工過程
閱讀次數:391783次
農村一層三間平房設計圖,告別土氣養老房,讓人忍不住點贊
閱讀次數:350581次
新農村二層樓房圖片造價12萬,挑一套回家建房吧!
閱讀次數:349126次
