
|
在城里買房定居是很多打工者的夢想,但是現在的房價這么高,很多人都承擔不起。與之相比,農村的生活水平越來越高,不僅環境越來越好,生活質量也不比城里差,所以不少人都愿意回老家建房生活。 接下來給大家推薦3套10X12米的三層別墅,7個臥室還帶露臺,美觀又實用! 第一套
背面效果圖
背面效果圖
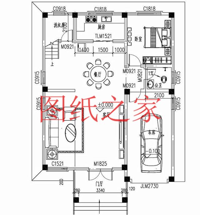
鳥瞰效果圖 占地面積:9.7m*12.6m,一層占地116平方米左右(含外門庭); 建筑層高:三層; 建筑高度:12.5米(含屋頂); 設計功能: 一 層:客廳、玄關、廚房、餐廳、臥室、衛生間、洗衣房; 二 層:臥室(帶衣帽間)、臥室×2、衛生間、洗衣房、露臺; 三 層:臥室x3、衛生間、大露臺;
一層平面圖
二層平面圖
三層平面圖 第二套
正面效果圖
背面效果圖
鳥瞰效果圖 占地面積:10.60m*11.30m,120平方米左右; 建筑層高:三層; 建筑高度:11.53米(含屋頂); 設計功能: 一 層:門廳、客廳、廚房、餐廳、臥室、衛生間、老人房(帶衛生間); 二 層:起居室(會客區)、臥室X2、衛生間、臥室(帶衛生間)、陽臺; 三 層:休閑室、臥室X2、衛生間、露臺;
一層平面圖
二層平面圖
三層平面圖 第三套
別墅效果圖 占地面積:9.9m*11.9m,120平方米左右; 建筑層高:三層; 建筑高度:12.46米(含屋頂); 設計功能: 一 層:客廳、餐廳、廚房、臥室、衛生間、車庫、洗衣房; 二 層:大客廳、主臥(帶衛生間)、臥室x2、衛生間、陽臺、小露臺; 三 層:主臥(帶衛生間和露臺)、臥室x2、書房、衛生間、露臺;
一層平面圖
二層平面圖
三層平面圖 這幾套別墅的設計圖,你最喜歡哪一套? 圖紙之家-專注農村別墅/自建房設計18年,集合國內200余位經驗豐富的設計師,被評為口碑最好的農村建筑設計公司! |

農村三層蓋房設計圖大全,最新的設計,最新的戶型
占地:150平方米
90平米三層農村房子設計圖,簡單大氣實用
占地:94.28平方米
165平方米三層雙拼農村房屋設計圖大全14x12
占地:168平方米
?13.5x9米這尺寸火了!好多人家照著建這款二層別墅,簡單實用
占地:115.11平方米
進深14米的二層小別墅設計圖,農村自建房好方案
占地:144平方米左右
農村自建四層百萬豪宅別墅設計圖,客廳中空
占地:170平方米
農村10萬元一層小別墅設計圖,農村一層自建房屋設計圖
占地:多種戶型
簡歐漂亮農村二層別墅設計方案圖紙,12米乘9米
占地:多戶型可選
農村200平一層別墅房屋設計圖,外觀圖片時尚、漂亮
占地:200平方米
二層門面房自建小樓設計圖紙及效果圖,占地150平
占地:151.83平方米
豪華農村帶露臺三層樓房別墅設計圖紙,占地200平方米左右
占地:200平方米
農村小戶型三層別墅設計圖,平屋頂,造價20萬左右
占地:80平方米
農村三間二層別墅設計圖,外觀簡約左右對稱
占地:170.06平方米
漂亮實用的新農村二層小樓圖,造價20萬左右,超大景觀露臺
占地:130平方米
現代田園風格一層農村別墅設計圖效果圖,帶閣樓設計
占地:220平方米
110平米一層小別墅設計方案,布局四室兩廳一廚兩衛
占地:110.5平方米
新農村兄弟合建三層雙拼房屋設計方案圖,開間18米有全套圖紙
占地:237.21平方米
經典三層別墅設計圖,時尚典雅美觀大氣,新農村自建的理想之選
占地:119.45平方米
120平米農村三層房屋設計圖,客廳中空,戶型合理
占地:120平方米
簡約而不簡單的二層新中式鄉墅設計圖,占地150平左右
占地:150.78平方米
推薦:10套新農村自建房設計圖,2026年最新設計
閱讀次數:4825737次
100套鄉村別墅圖片大全,2026年最新設計
閱讀次數:2492203次
6款農村蓋一層平房的設計圖,10萬元就能建起來
閱讀次數:1852637次
這11個一層農村自建房別墅火爆了朋友圈!我最喜歡戶型十!你呢
閱讀次數:750268次
農村6萬元建一層小別墅圖,你敢相信嗎
閱讀次數:567686次
農村5萬塊就能自建房,6套普通房子設計圖分享,你沒看錯!
閱讀次數:419410次
8套農村漂亮三間平房圖片,非常適合在農村修建!
閱讀次數:411197次
農村自建房化糞池怎么做?附方案及施工過程
閱讀次數:391783次
農村一層三間平房設計圖,告別土氣養老房,讓人忍不住點贊
閱讀次數:350581次
新農村二層樓房圖片造價12萬,挑一套回家建房吧!
閱讀次數:349126次
