
|
不同的人對房子的需求也不相同,有的人對房子的要求只是滿足居住的需要,而有的人更注重房子的品質,不僅要求房子功能齊全、舒適方便,還要寬敞明亮,給人更好的生活體驗。 接下來給大家帶來4套11X12米的三層自建房設計,溫馨宜居、經典大方,你喜歡嗎? 第一套
正面效果圖
背面效果圖
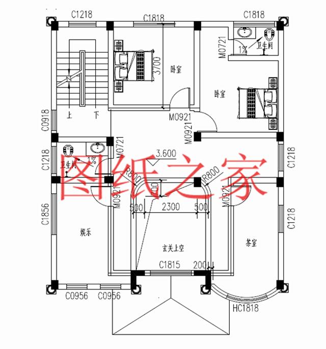
鳥瞰效果圖 占地面積:11.2m*12.8m,一層占地120平方米左右(含外門庭); 建筑層高:三層; 建筑高度:13.4米(含屋頂); 設計功能: 一 層:客廳、廚房、餐廳、臥室×2、衛生間; 二 層:玄關上空、臥室(帶衛生間)、茶室、娛樂室、衛生間; 三 層:臥室(帶衛生間)、臥室×2、神位、衛生間、露臺;
一層平面圖
二層平面圖
三層平面圖 第二套
正面效果圖
背面效果圖
鳥瞰效果圖 占地面積:11.0m*12.0m,一層占地127平方米左右(含外門庭); 建筑層高:三層; 建筑高度:14.1米(含屋頂); 設計功能: 一 層:客廳、廚房、餐廳、茶吧、臥室、衛生間; 二 層:臥室(帶衣帽間)、臥室(帶主衛,書房)、臥室、衛生間; 三 層:女兒房(帶衛生間)、臥室×2、公衛、露臺;
一層平面圖
二層平面圖
三層平面圖 第三套
別墅效果圖 占地面積:11.7m*11.1m,126平方米左右; 建筑層高:三層; 建筑高度:11.41米(含屋頂); 設計功能: 一 層:客廳(中空)、臥室、廚房、餐廳、衛生間、車庫 二 層:小客廳、臥室(附陽臺)、2臥室、衛生間 三 層:小客廳、臥室(附陽臺)、2臥室、衛生間、露臺
一層平面圖
二層平面圖
三層平面圖 第四套
別墅效果圖 占地面積:11.00m*11.60m,128平方米左右; 建筑層高:三層; 建筑高度:11.97米(含屋頂); 設計功能: 一 層:玄關、客廳、廚房、餐廳、臥室、衛生間、車庫(可做臥室); 二 層:娛樂廳(可做小客廳)、客廳(可做大臥室)、臥室x3、書房、衛生間、陽臺; 三 層:娛樂廳、臥室x3、衛生間、大露臺(屋頂花園);
一層平面圖
二層平面圖
三層平面圖 這幾套別墅的設計圖,你最喜歡哪一套? 圖紙之家-專注農村別墅/自建房設計18年,集合國內200余位經驗豐富的設計師,被評為口碑最好的農村建筑設計公司! |

二層自建房屋設計圖,帶小院,帶地下室,外觀現代、時尚,內部
占地:200平米
造型對稱的簡約二層別墅設計圖紙,戶型布局好,13x13米5室2廳
占地:151.94平方米
小戶型三層現代風別墅設計圖,可別再說農村不適合現代風了
占地:92.34平方米
新中式農村三層房屋效果圖及施工圖,140平方米左右
占地:140平方米
帶地下室二層雙拼別墅設計圖,兄弟和睦又省錢,全家人都滿意!
占地:308平方米
二層簡歐農房!經濟實惠+大氣耐看,20年后不落后
占地:120平方米
二層簡歐別墅設計圖挑空客廳+旋轉樓梯,看過的人都說氣派
占地:154.699平方米
新式160平方米農村三層樓房設計圖,客廳中空
占地:160平方米
320平方米高端農村帶車庫四合院別墅設計圖,徽派韻味十足
占地:320.89平方米
120平米農村三層房屋設計圖,客廳中空,戶型合理
占地:120平方米
140平方米歐式三層別墅建筑設計圖紙,復式結構
占地:140平方米
左右對稱的歐式高端三層別墅設計圖,外觀氣派、豪華
占地:200平方米
小型中式一層三合院別墅設計圖,小宅基地照樣建合院
占地:119.73平方米
簡歐式三層半(4層)農村自建房別墅設計圖效果圖,帶車庫戶型
占地:127平方米
新農村歐式時尚二層別墅設計圖紙,120平方米自建房
占地:多種戶型
美式田園二層別墅設計方案圖,全套設計圖+效果圖
占地:235平方米
20萬左右普通農村房子設計圖,二層簡約小別墅
占地:140平方米
中式四合院農村自建房設計圖,白墻黛瓦,四水歸堂
占地:137.72平方米
獨棟三層樓房設計圖紙及效果圖,農村蓋房推薦
占地:125平方米
現代風平屋頂三層半農村小別墅設計圖,面寬僅7米
占地:90平方米
推薦:10套新農村自建房設計圖,2026年最新設計
閱讀次數:4825737次
100套鄉村別墅圖片大全,2026年最新設計
閱讀次數:2492203次
6款農村蓋一層平房的設計圖,10萬元就能建起來
閱讀次數:1852637次
這11個一層農村自建房別墅火爆了朋友圈!我最喜歡戶型十!你呢
閱讀次數:750268次
農村6萬元建一層小別墅圖,你敢相信嗎
閱讀次數:567686次
農村5萬塊就能自建房,6套普通房子設計圖分享,你沒看錯!
閱讀次數:419410次
8套農村漂亮三間平房圖片,非常適合在農村修建!
閱讀次數:411197次
農村自建房化糞池怎么做?附方案及施工過程
閱讀次數:391783次
農村一層三間平房設計圖,告別土氣養老房,讓人忍不住點贊
閱讀次數:350581次
新農村二層樓房圖片造價12萬,挑一套回家建房吧!
閱讀次數:349126次
