
|
不管城里有沒有房,農村有宅地回鄉蓋房已經成為一種趨勢。有人喜歡歐式的浪漫優雅,自然也有人鐘愛中式的內涵和韻味。可很多人擔心小宅地不能蓋大氣的中式別墅,今天湖南的戴先生給我們做了分享,小開間也能蓋出別致的中式別墅。
左右兩邊分別都有鄰居,拆了老房子,澆筑地梁
左右都有鄰居,也不會影響自己蓋房,只不過戶型的選擇上少了很多。
戴先生剛好看中了咱們圖庫里面的一套四層別墅的圖紙,房子的主體已經完成。
經典的馬頭墻設計,白墻黛瓦,屋檐飛揚,每一筆都能體現中式建筑的大氣。
別墅的效果圖
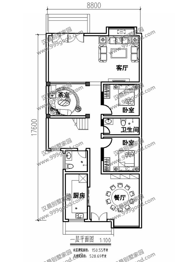
狹長的宅地采光非常困難,所以戶型露臺上面做了天井設計。戶型側面做了點陽臺,能夠優化通風條件。
平面功能:戶型坐南朝北,進門入戶私密性極好,客廳開闊。進而是茶室和臥室,廚房餐廳靠北面,也有小門方便進出。
二三層的布局一樣,臥室帶有書房和小衣帽間,陽臺毗鄰臥室便于光照。
健身房等娛樂室最好是不會影響正常的休息,所以一般放在使用率不高的頂層。 ![]() 圖紙之家-專注農村別墅/自建房設計18年,集合國內200余位經驗豐富的設計師,被評為口碑最好的農村建筑設計公司! |

私人經濟小別墅設計圖,農村自建小洋樓100平左右戶型
占地:104平方米
最新網紅二層別墅,寬敞時尚沉穩大氣,布局實用正好滿足您的需
占地:110平方米
115平漂亮的三層別墅設計方案,外觀圖片大氣、精致
占地:115平方米
大氣自建三層雙拼別墅戶型圖方案,完美的戶型就是它
占地:287平方米
最好看的新款農村三層復式別墅設計圖片及設計圖,外觀高端、大
占地:160平方米
二層美式自建別墅設計圖,全套施工圖+外觀效果圖
占地:145平方米
50萬以內的歐式三層房屋別墅施工設計圖紙及效果圖
占地:169平方米
小占地三層現代時尚風別墅設計圖,平屋頂占地不足100平
占地:98.35平方米
兩層三間農村自建房圖,125平有7間臥室,全家人都能住得下
占地:125.34平方米
13.5米乘11米兩層半別墅設計圖,中式與現代相融合
占地:148.5平方米
10米×13米最好看的農村三層樓房圖,客廳中空
占地:124平方米
一層半帶閣樓別墅設計圖,悠閑舒適,養老度假皆可
占地:161.94平方米
100平左右農村一層平房小洋樓建筑設計圖紙,14米×8米
占地:98平方米
高端大氣三層歐式別墅設計圖,客廳中空,旋轉樓梯
占地:150平方米
100平方米自建三層半別墅設計圖紙,帶地下車庫
占地:100平方米
185平方米二層自建別墅設計施工圖紙及外觀效果圖,15x13米
占地:186平方米
超大氣的農村一層雙拼自建別墅設計方案,絕對讓人羨慕的“平房
占地:424平方米
125平方米新中式農村自建三層別墅建筑設計圖紙及效果圖
占地:124平方米
農村二層別墅設計圖,帶外觀效果圖,兄弟自建推薦
占地:多種戶型
鄉村三層簡單自建房子設計圖,全部建好34萬左右,外觀簡潔
占地:127.912平方米
推薦:10套新農村自建房設計圖,2026年最新設計
閱讀次數:4825737次
100套鄉村別墅圖片大全,2026年最新設計
閱讀次數:2492203次
6款農村蓋一層平房的設計圖,10萬元就能建起來
閱讀次數:1852637次
這11個一層農村自建房別墅火爆了朋友圈!我最喜歡戶型十!你呢
閱讀次數:750268次
農村6萬元建一層小別墅圖,你敢相信嗎
閱讀次數:567686次
農村5萬塊就能自建房,6套普通房子設計圖分享,你沒看錯!
閱讀次數:419410次
8套農村漂亮三間平房圖片,非常適合在農村修建!
閱讀次數:411197次
農村自建房化糞池怎么做?附方案及施工過程
閱讀次數:391783次
農村一層三間平房設計圖,告別土氣養老房,讓人忍不住點贊
閱讀次數:350581次
新農村二層樓房圖片造價12萬,挑一套回家建房吧!
閱讀次數:349126次
