
|
現在農村人的生活越來越好了,很多家庭都修建了漂亮的小別墅。但是農村人的錢都是自己辛勤的勞動換來的,修建小別墅的意義和城里可不一樣。農村人修建別墅主要是為了改善家人的生活和居住環境,實用性是最重要的,不會為了面子而使用豪華的裝飾品。接下來給大家推薦6套農村40萬左右房子圖片及全套設計圖,非常簡單大氣的二層別墅! 第一套:最接農村地氣的二層農村小別墅圖紙介紹:今年最接農村地氣的二層農村小別墅,造價30萬左右,經濟實用,美觀大方。與其在城里買商品房做房奴,不如回到農村建一座符合自己的小別墅。 占地面積:14.9m*13.0m,170平方米左右; 建筑層高:二層; 建筑高度:9.66米(含屋頂); 設計功能: 一層戶型:客廳、餐廳、廚房、衛生間、臥室、棋牌室、車庫、儲藏間; 二層戶型:小客廳、主臥(帶衛生間和陽臺)、臥室x3、衛生間、書房、露臺、陽臺;
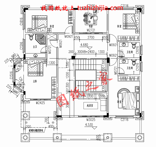
第二套:16×12米二層歐式帶車庫農村小別墅圖紙介紹:16×12米二層歐式帶車庫農村小別墅,既舒適又美觀。養老,環境好,這也是很多選擇回農村建房的人,共同的出發點。 占地面積:16.0m*12.5m,180平方米左右; 建筑層高:二層; 建筑高度:10.8米(含屋頂); 設計功能: 一層戶型:客廳、餐廳、廚房、主臥(帶衛生間)、臥室、衛生間x2、儲藏間、車庫; 二層戶型:客廳、臥室(帶衛生間)x2、臥室x2、衛生間、露臺、陽臺、茶室;
第三套:農村二層小樓的設計圖紙圖紙介紹:農村二層小樓的設計圖紙,整體外觀凹凸有致,紅色的坡面屋頂與暖黃色的墻壁交相呼應,即使經過歲月風雨的侵蝕,也依舊煥然一新 占地面積:15.0m*12.2m,180平方米左右; 建筑層高:二層; 建筑高度:9.3米(含屋頂); 設計功能: 一層戶型:客廳、餐廳、廚房、臥室×2、娛樂室、衛生間、儲藏間; 二層戶型:客廳、臥室×4、陽臺、書房、衛生間、陽臺×2;
第四套:奢華歐式二層樓房設計圖圖紙介紹:奢華歐式二層樓房設計圖,入戶設有玄關,一層大窗設計既時尚又增加了房間的空間,二層設有4室1廳3衛1書房,房間數量較多,其中兩個是帶獨立衛生間的主臥,陽臺的設計既美觀又可以方便晾曬等,小客廳的設計完全符合農村的傳統,一般用來接待親朋好友比較重要的客人,整個布局緊湊又不擁擠,不浪費面積。 占地面積:15.2m*15.6m,190平方米左右; 建筑層高:二層; 建筑高度:10.58米(含屋頂); 設計功能: 地下戶型:車庫、活動室、衛生間; 一層戶型:玄關、客廳、餐廳、廚房、衛生間、主臥(帶衛生間)、臥室; 二層戶型:起居室、主臥(帶衛生間)×2、臥室×2、書房、衛生間、大露臺;
第五套:農村二層住宅設計圖圖紙介紹:鄉下二層樓房設計圖,大窗戶打造的客廳,一起享受大面積采光的溫暖,增加采光,站在窗戶面前可以全景觀看外面的風景。 占地面積:17.0m*13.0m,220平方米左右; 建筑層高:二層; 建筑高度:9.3米(含屋頂); 設計功能: 一層戶型:中廳、客廳、餐廳、廚房、臥室(帶衛生間)、臥室、衛生間; 二層戶型:起居室、臥室(帶衛生間)×2、臥室x2、兒童房×2、衛生間、露臺×2;
第六套:240平農村二層自建別墅設計圖紙圖紙介紹:農村二層自建別墅設計圖紙,帶你體驗家的溫馨。別墅的坡屋頂做了特別造型,更有立體感,精致典雅,集中式的神韻與歐式的華麗外觀于一體。 占地面積:20.5m*14.6m,240平方米左右; 建筑層高:二層; 建筑高度:9.9米(含屋頂); 設計功能: 一層戶型:堂屋、客廳、餐廳、廚房、土灶房、衛生間×2、臥室×2、棋牌室、儲藏間、車庫; 二層戶型:休閑廳、主臥(帶衛生間)×3、臥室x2、衛生間、大露臺;
雖然現在的建材價格和人工費用等建房成本都在增加,但是與在城里買房相比,農村自建房還是非常經濟實惠的,40萬左右就能修建一棟非常漂亮大氣的二層別墅。看著這6套農村40萬左右房子圖片,你心動了嗎? 圖紙之家-專注農村別墅/自建房設計18年,集合國內200余位經驗豐富的設計師,被評為口碑最好的農村建筑設計公司! |

占地180平豪華三層農村別墅自建房設計圖,歐式與現代相融合
占地:183.706平方米
新農村小戶型4層自建房三層半別墅設計圖,平屋頂設計
占地:95平方米
最美中式農村別墅二層三間的房子圖,帶土灶房,娛樂室,大露臺
占地:180平方米
四層簡單新農村房屋設計圖紙,造價低,適合農村自建
占地:多種戶型
帶地下室一層別墅設計方案,功能布局齊全實用
占地:256.5平方米
七字型設計新中式一層別墅設計圖,類合院風格
占地:267.3平方米
帶堂屋新農村三層房屋別墅設計圖紙,帶外觀效果圖
占地:214平方米
11.5米乘 11.5米自建房:兩層設計 + 戶型方正,誰看誰心動
占地:128.77平方米
預算20萬的農村三層房屋設計圖方案,帶外觀效果圖
占地:115平方米
18米寬一層中式小院設計圖,三合院戶型布局寬敞大氣
占地:232.75平方米
鄉村最美四合院設計圖及外觀效果圖片,國人的理想住宅
占地:280.62平方米
二層帶架空層的農村別墅設計圖,功能齊全,超越十里八村
占地:130平方米
帶開放式車庫二層農村自建別墅設計方案,造價僅15萬
占地:89.412平方米
雙拼二層大別墅設計圖,大面寬小進深,讓兄弟永遠不分家
占地:207.15平方米
二層歐式小別墅設計方案,全套建筑設計圖紙+外觀效果圖
占地:146平方米
新中式三層雙拼別墅設計圖及效果圖,中式大氣風格
占地:235.26平方米
三層帶車庫樓中樓建房別墅圖紙,占地130平米左右,戶型室內布局
占地:130平方米
面寬22米的高端三層自建房別墅設計圖,功能齊全
占地:222.47平方米
新中式三層別墅設計圖紙(含效果圖),110平農村自建房施工圖推
占地:110平方米
最耐看的二層別墅設計圖,15米寬12米深,方正大氣經濟美觀!
占地:180平方米
推薦:10套新農村自建房設計圖,2026年最新設計
閱讀次數:4825737次
100套鄉村別墅圖片大全,2026年最新設計
閱讀次數:2492203次
6款農村蓋一層平房的設計圖,10萬元就能建起來
閱讀次數:1852637次
這11個一層農村自建房別墅火爆了朋友圈!我最喜歡戶型十!你呢
閱讀次數:750268次
農村6萬元建一層小別墅圖,你敢相信嗎
閱讀次數:567686次
農村5萬塊就能自建房,6套普通房子設計圖分享,你沒看錯!
閱讀次數:419410次
8套農村漂亮三間平房圖片,非常適合在農村修建!
閱讀次數:411197次
農村自建房化糞池怎么做?附方案及施工過程
閱讀次數:391783次
農村一層三間平房設計圖,告別土氣養老房,讓人忍不住點贊
閱讀次數:350581次
新農村二層樓房圖片造價12萬,挑一套回家建房吧!
閱讀次數:349126次
