
|
大房子有大房子的氣派,小房子有小房子的溫馨,宅基地或大或小,建的房子都關乎一個家的幸福與舒適,都值得我們用心來打造這個家。 下面這款私人訂制的三層歐式別墅,天藍的坡屋頂,暖色的外墻裝飾,和鄉村的藍天白云相映成趣,美極了。
入戶門斗大氣莊重,造型豐富的落地窗、羅馬柱、金色山花、檐角歐式線條等元素,把別墅修飾得氣派十足。
【鏡像圖】 開間13.96米,進深10.96米占地面積:169.82平方米建筑面積:498.68平方米磚混結構,建筑高13.1米主體參考造價:47-52萬
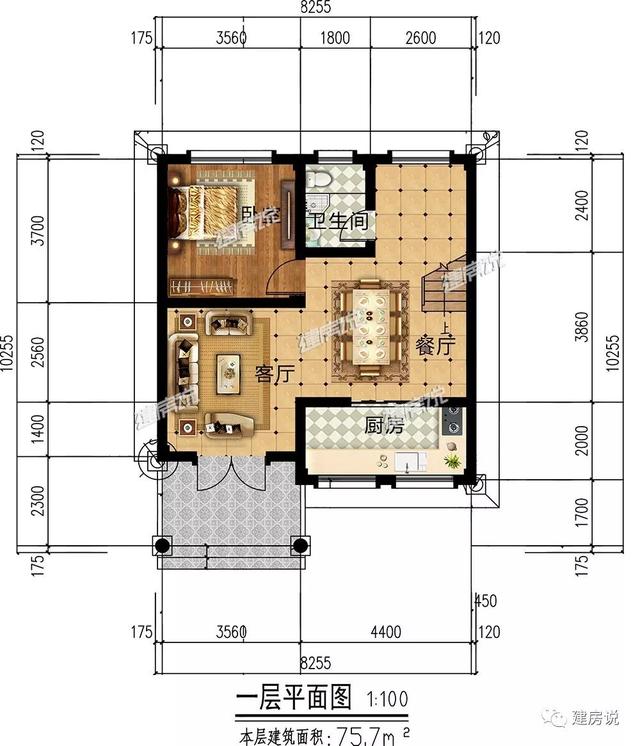
戶型2:
【鏡像圖】 開間8.255米,進深10.255米占地面積:75.7平方米建筑面積:197.22平方米框架結構,建筑高12.1米主體參考造價:23-28萬
戶型3
戶型4
戶型5
戶型6
戶型7
戶型8
戶型9
戶型10
戶型11
戶型12
戶型13
戶型14
戶型15
戶型16
戶型17
戶型18
戶型19
戶型20
戶型21
戶型22
戶型23
戶型24
戶型25
戶型26
戶型27
戶型28
戶型29
戶型30
戶型31
戶型32
戶型33
戶型34
戶型35
戶型36
這36款別墅真心不錯,這么棒的別墅,看了一眼,立馬就迫不及待想回家批地來建了 圖紙之家-專注農村別墅/自建房設計18年,集合國內200余位經驗豐富的設計師,被評為口碑最好的農村建筑設計公司! |

自建一層農村別墅圖,經濟實用新選擇,建房必備參考戶型!
占地:142.88平方米
農村一層獨棟別墅設計圖,帶閣樓,設計感十足
占地:250平方米
帶地下室設計三層自建房別墅設計圖,復式挑空客廳
占地:192平方米
一層半中式合院別墅設計圖,帶配房,有庭有院有品位
占地:135平方米左右
農村自建房鄉村超現代平屋頂二層別墅圖設計方案,造價低,施工
占地:142平方米
90平方米農村二層房屋設計圖紙(施工圖+效果圖)
占地:90平方米
自建一層三合院別墅圖,雅致鄉村居造價經濟,南北通透更宜居!
占地:176.36平方米
極簡大氣二層別墅設計圖,15米面寬,簡約大氣,年輕人的最愛!
占地:150平方米
帶車庫的農村四合院別墅設計圖,富貴人家的象征,日子越過越興
占地:219.24平方米
面寬20米大氣的農村二層別墅設計圖,戶型帶車庫和土灶房設計
占地:250.85平方米
150平米經典二層中式別墅設計圖 ,現代中式相結合
占地:154平方米左右
高端二層新中式四合院別墅設計圖,含全套CAD施工圖
占地:217平方米
豪華農村帶露臺三層樓房別墅設計圖紙,占地200平方米左右
占地:200平方米
100平左右鄉下三層樓房設計圖,戶型方正,小面積宅基地的福音
占地:100平方米
農村二層中式三合院設計圖,這才是國人該建的房子
占地:175.58平方米
95平方米農村四層房屋設計圖,8米X11米 ,預算37萬
占地:95平方米
二層半房子設計圖及效果圖,客廳中空,南北通透
占地:160平方米
農村三間二層別墅設計圖,外觀簡約左右對稱
占地:170.06平方米
時尚大方的農村二層自建房屋設計圖紙,占地120平米左右
占地:120平米
小型農村二層自建樓房設計圖,面寬10米小占地經濟
占地:78.54平方米
推薦:10套新農村自建房設計圖,2026年最新設計
閱讀次數:4825737次
100套鄉村別墅圖片大全,2026年最新設計
閱讀次數:2492203次
6款農村蓋一層平房的設計圖,10萬元就能建起來
閱讀次數:1852637次
這11個一層農村自建房別墅火爆了朋友圈!我最喜歡戶型十!你呢
閱讀次數:750268次
農村6萬元建一層小別墅圖,你敢相信嗎
閱讀次數:567686次
農村5萬塊就能自建房,6套普通房子設計圖分享,你沒看錯!
閱讀次數:419410次
8套農村漂亮三間平房圖片,非常適合在農村修建!
閱讀次數:411197次
農村自建房化糞池怎么做?附方案及施工過程
閱讀次數:391783次
農村一層三間平房設計圖,告別土氣養老房,讓人忍不住點贊
閱讀次數:350581次
新農村二層樓房圖片造價12萬,挑一套回家建房吧!
閱讀次數:349126次
