
|
在農村要建一棟讓人心滿意足的房子可不是一件容易的事情,在城市里買房,只要滿足一兩個必須條件即可,但是在農村自建房必須外觀美觀大氣符合農村人審美,室內布局實用舒適符合農村人日常居住習慣,還要考慮是否易于建造,太復雜的造價高,日后不方便維護。下面這款農村自建房,主體25萬左右,簡單實用,經濟施工容易,需要建房的可以作參考。 房屋基本信息 開間:14.2米 進深:8.4米 占地面積:116.48平方米 建筑面積:308.78平方米 建筑結構:磚混結構 主體造價:24—26萬
斜屋頂錯落有致,不僅美觀大方,而且實用性強。整體配色清新淡雅,墻裙鋪設文化石,耐臟又好看。入戶石柱纖細潔白,端莊優雅。室內布局潔污分區,動靜分離,房間功能安排的比較豐富飽滿,利用率高,空間寬敞。
一層:堂屋、客廳、餐廳、廚房、衛生間、烤火房、老人房、豬舍。進門就是闊綽的堂屋,烤火房方便生活,豬舍可以養殖家禽,符合農村人的日常生活習慣。
二層:客廳、陽臺、主臥(帶書房)、衛生間、2間臥室。二樓的小客廳方便家人平時交流,主臥帶書房,便利生活。
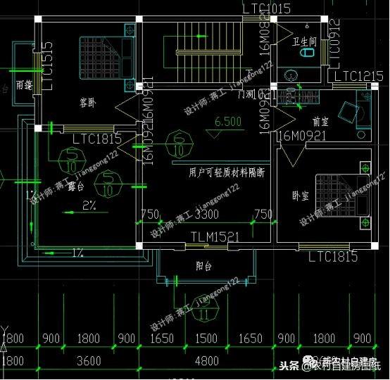
三層:露臺、陽臺、衛生間、2間臥室 圖紙之家-專注農村別墅/自建房設計18年,集合國內200余位經驗豐富的設計師,被評為口碑最好的農村建筑設計公司! |

農村15萬元二層小樓設計圖,造價低,簡潔、好看
占地:90平方米
140平方米歐式三層別墅建筑設計圖紙,復式結構
占地:140平方米
三層小別墅40萬造價,大氣農村三層新中式自建房設計圖紙
占地:171.656平方米
最新款二層鄉下別墅設計圖,新中式風格,24萬建好主體
占地:150.94平方米
二層新中式小別墅設計圖紙,舒適實用,16米乘12米
占地:189.88平方米
鄉村一層帶閣樓歐式小別墅,“L”型七字設計戶型
占地:194.218平方米
私人二層農村小樓設計圖,外觀靚麗,富有現代氣息
占地:160平方米
100平方米自建房二層設計圖紙及效果圖,12x9米
占地:100平方米
農村新款二層中式別墅設計圖效果圖,帶堂屋設計
占地:144平方米
新徽派農村三層小別墅設計圖,白墻黛瓦中式風,12米乘11米
占地:115.46平方米
三層帶車庫農村別墅設計圖紙(含外觀效果圖)
占地:147.7平方米
私家二層農村自建房設計圖及效果圖,造價20萬左右
占地:125平方米
120平方米農村經典二層房屋設計圖紙,造型精致好看
占地:121平方米
面寬12米三層自建房別墅設計圖,廚房在前面,農村施工隊都能建
占地:138.18平方米
時尚典雅歐式三層自建房設計圖,美觀大氣簡單舒適,好看到沒得
占地:153.12平方米
古典韻味的四層房屋設計圖,占地140平米左右,這樣的外觀配上紅
占地:140平方米
新農村自建二層小樓圖,時尚大方,外型精美,室內布局也很贊
占地:137平方米
農村10萬元一層小別墅設計圖,農村一層自建房屋設計圖
占地:多種戶型
農村中式兩層雙拼別墅房屋設計圖,含效果圖片
占地:200平方米
二層復式雙拼別墅設計圖(客廳中空),含外觀效果圖
占地:195平方米
推薦:10套新農村自建房設計圖,2026年最新設計
閱讀次數:4825737次
100套鄉村別墅圖片大全,2026年最新設計
閱讀次數:2492203次
6款農村蓋一層平房的設計圖,10萬元就能建起來
閱讀次數:1852637次
這11個一層農村自建房別墅火爆了朋友圈!我最喜歡戶型十!你呢
閱讀次數:750268次
農村6萬元建一層小別墅圖,你敢相信嗎
閱讀次數:567686次
農村5萬塊就能自建房,6套普通房子設計圖分享,你沒看錯!
閱讀次數:419410次
8套農村漂亮三間平房圖片,非常適合在農村修建!
閱讀次數:411197次
農村自建房化糞池怎么做?附方案及施工過程
閱讀次數:391783次
農村一層三間平房設計圖,告別土氣養老房,讓人忍不住點贊
閱讀次數:350581次
新農村二層樓房圖片造價12萬,挑一套回家建房吧!
閱讀次數:349126次
