
|
你蓋房我出別墅圖紙!農村別墅設計就是要展現未來農村住宅的樣子,雖然很多朋友還是會蓋歐式的,不得不說歐式的比較洋氣時尚,但是容易過時。未來農村的房子肯定偏向中式風格,下面提前展示未來農村中式別墅!先介紹3棟 第一棟
如果宅地大,門前有個院子的話,還可以修一個私家游泳池,夏天住在這里簡直不要太爽
由于家里人多,東西也多,現在臥室都不會設置很大,所以都做成了飄窗的形式,能夠增大空間,不需要的也可以施工的時候改。
屋后小門通向棋牌室,方便鄰居串門。屋頂天窗采光,樓頂也不會太暗。
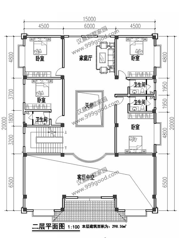
平面圖 由于當地對堂屋比較重視,要求堂屋后面不能有任何的空間設計,所以中間留白用作堂屋,右邊茶室,左邊客廳,所有的窗戶全是飄窗
前半部分全是中空,貫穿了茶室和客廳。四間臥室設置緊湊,具有很好的凝聚力。
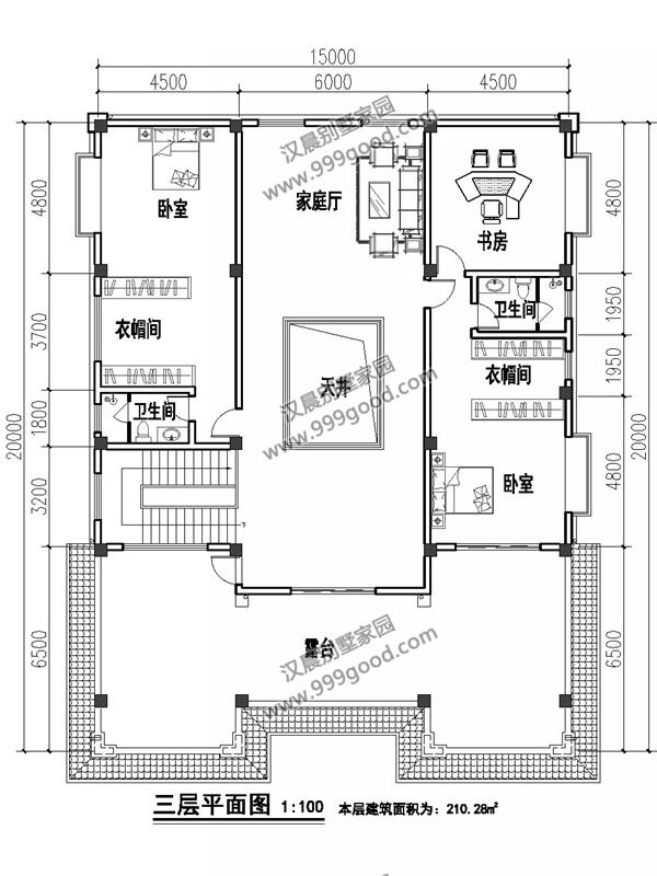
三層兩大套間,臥室、衣帽間、衛生間和書房,中間還有大露臺和天井。
第二棟
開間和進深都比較小,同樣用飄窗來擴展空間,背面窗戶有陽臺,可放盆栽,豐富室內風景
屋頂以經典的人字斜頂,超耐看的青灰色很是上檔次
平面圖 空間合理布置,每一處都能夠充分利用,衛生間每層一個且都是干濕分離。 總共設有 7臥室、2客廳、1餐廳、1廚房、3衛生間、1儲藏間、1露臺,臥室帶有衣帽間
第三棟
這樣的中式農村雙拼別墅誰都想蓋,造價兄弟兩人分攤也不會很貴。
經典紅銅色大門,搭配上喜慶的大紅燈籠,仿佛就是為過年量身定制的別墅
露臺在背面,為了整體的美感也為了滿足日常的晾曬需求。
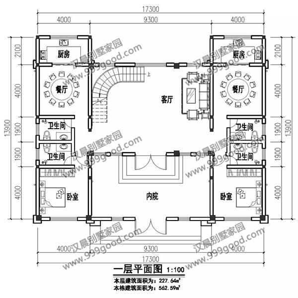
平面圖 中式講究私密性,進門不是客廳而是院子,臺階拾級而上便是大旋轉樓梯映入眼簾。 業主注重兄弟情,兩戶完全連通。中間空白公共,臥室分別設置東西兩面。
![]() 圖紙之家-專注農村別墅/自建房設計18年,集合國內200余位經驗豐富的設計師,被評為口碑最好的農村建筑設計公司! |

2026年經典新中式三層別墅設計圖紙,新款自建房戶型圖
占地:158.19平方米
新式三層別墅設計圖,客廳中空,占地125平米左右
占地:125平米
帶車庫簡約二層小別墅房屋設計圖紙,占地120平米,彎彎的樓梯打
占地:120平方米
最耐看的二層別墅設計圖,15米寬12米深,方正大氣經濟美觀!
占地:180平方米
200平方農村三層別墅房屋設計圖及效果圖,大戶型精選
占地:200平方米
160平方米農村二層別墅設計效果圖帶CAD建筑圖
占地:160平方米
180平方米新農村三層別墅設計圖紙,效果圖+全套cad施工圖
占地:180平方米
預算20萬的農村三層房屋設計圖方案,帶外觀效果圖
占地:115平方米
140平二層帶閣樓別墅設計方案圖,外觀圖片色彩明快
占地:140平方米
3款三層農村自建別墅設計圖,氣派十足,準備建房的快快查看
占地:多戶型可選
闊氣高端的三層別墅設計圖,亮得恰到好處,永遠也住不膩
占地:160平方米
農村4開間二層別墅設計圖,帶堂屋帶露臺,進深9米
占地:126平方米左右
新農村三層房屋設計圖紙(含效果圖),農村小別墅圖紙推薦
占地:116.15平方米
農村4間2層樓房設計圖,帶車庫,外觀時尚,帶屋頂花園
占地:210平方米
現代新中式四層復式別墅房屋設計圖,旋轉樓梯,含效果圖
占地:150平方米
氣派的歐式風格三層房子設計圖紙,外觀圖太漂亮了
占地:132平方米
歐式新農村三層復式樓自建房別墅圖紙,旋轉樓梯設計
占地:128平方米
歐式獨棟二層小別墅設計圖,客廳中空,占地126平米
占地:120平方米
農村自建二層半樓房效果圖,美觀大氣布局合理,很適合農村人自
占地:160.11平方米
2026新農村三層雙拼房屋設計圖紙平面圖與效果圖,帶堂屋
占地:190平方米
推薦:10套新農村自建房設計圖,2026年最新設計
閱讀次數:4825737次
100套鄉村別墅圖片大全,2026年最新設計
閱讀次數:2492203次
6款農村蓋一層平房的設計圖,10萬元就能建起來
閱讀次數:1852637次
這11個一層農村自建房別墅火爆了朋友圈!我最喜歡戶型十!你呢
閱讀次數:750268次
農村6萬元建一層小別墅圖,你敢相信嗎
閱讀次數:567686次
農村5萬塊就能自建房,6套普通房子設計圖分享,你沒看錯!
閱讀次數:419410次
8套農村漂亮三間平房圖片,非常適合在農村修建!
閱讀次數:411197次
農村自建房化糞池怎么做?附方案及施工過程
閱讀次數:391783次
農村一層三間平房設計圖,告別土氣養老房,讓人忍不住點贊
閱讀次數:350581次
新農村二層樓房圖片造價12萬,挑一套回家建房吧!
閱讀次數:349126次
