
|
占地面積100-120左右的房子現在應該是建的最多的,因為你想要建大一點,但是宅基地也不允許,所以這類占地面積算是比較大眾化的了,如果在老家帶頭建了一棟這樣的房子,肯定有很多的親戚朋友也想要仿建了。 建房尺寸為10.7×10米,墻面裝飾比較的簡約,使用同一種淺色調來裝飾,屋面蓋以藍瓦。
平面布局說明:首層配有一室兩廳一廚一衛,入戶的地方和餐廳做了裝修隔開,樓梯內側還有單獨的小儲物間一個,儲物間應該是不管在農村還是城里都很實用的;二層配以兩室一廳兩衛,主臥帶獨衛,室內休閑空間大,室外配以生活陽臺;三層配有兩室一廳兩衛,有開放式的休閑區域,室外配以觀景露臺。
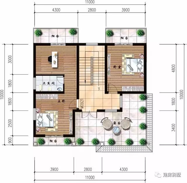
建房尺寸為11×10米,墻面用青色面磚、橙黃色面磚和淡黃色真石漆來裝飾,屋面蓋以紅色琉璃瓦。
平面布局說明:首層配有兩室兩廳一廚兩衛,父母房帶獨衛,戶型很通透;二層配有帶書房和獨衛的豪華主臥室,兩間次臥室,和休閑區域等;三層設有兩間臥室,一間主臥和一個備用的客臥,室外設有觀景露臺。
這兩款戶型的特點比較突出的就是簡單實用,很適合農村來建。 圖紙之家-專注農村別墅/自建房設計18年,集合國內200余位經驗豐富的設計師,被評為口碑最好的農村建筑設計公司! |

農村自建房三間設計圖,花錢少效果好12米乘9米,經濟適用性價比
占地:108.9平方米
一層田園風坡屋頂平房設計圖,造型漂亮時尚
占地:134.9平方米
適合小面寬宅基地的兩開間別墅設計圖,8.5米乘13.5米
占地:107.66平方米
面寬18米二層農村大別墅設計圖,可帶電梯,舒適又實用
占地:138.29平方米
新農村二層客廳挑高樓房設計圖,外觀歐式風格
占地:178平方米
110平左右三間兩層農村別墅房屋設計圖,含外觀效果圖
占地:107平方米
農村自建房10萬以下兩層別墅設計圖含外觀效果圖片
占地:105平方米
農村三室二廳一層小平房設計圖,簡單實用型
占地:113.4平方米
農家中式小院一層三合院自建房,布局寬敞大氣又舒適
占地:186.07平方米
兄弟共建一層雙拼平房設計圖,省錢省心又可相互照應
占地:177.27平方米
帶柴火房農村一層自建房設計圖,戶型布局接地氣
占地:126.29平方米
復式挑空二層別墅設計圖,占地175平米,建好住著很舒適
占地:175.44平方米
農村帶閣樓一層房屋設計施工圖,13X9米
占地:102平方米
180平方米新農村自建二層小別墅設計圖及效果圖,15X13米
占地:183平方米
50萬左右農村豪華二層別墅設計圖 ,大廳中空,外觀精美
占地:210平方米
農村四層雙拼別墅房屋設計圖,造型現代、大氣
占地:220平方米
獨棟二層別墅cad設計圖紙,平屋頂自建別墅方案精選
占地:190平方米
三層復式別墅設計圖紙(含效果圖),復式住宅設計圖精選
占地:147.7平方米
125平兩層別墅房屋設計圖,帶普通和復式兩個戶型
占地:125平方米
農村三層帶電梯小別墅設計施工圖,120平方米左右12.2x10.8米
占地:123平方米
推薦:10套新農村自建房設計圖,2026年最新設計
閱讀次數:4825737次
100套鄉村別墅圖片大全,2026年最新設計
閱讀次數:2492203次
6款農村蓋一層平房的設計圖,10萬元就能建起來
閱讀次數:1852637次
這11個一層農村自建房別墅火爆了朋友圈!我最喜歡戶型十!你呢
閱讀次數:750268次
農村6萬元建一層小別墅圖,你敢相信嗎
閱讀次數:567686次
農村5萬塊就能自建房,6套普通房子設計圖分享,你沒看錯!
閱讀次數:419410次
8套農村漂亮三間平房圖片,非常適合在農村修建!
閱讀次數:411197次
農村自建房化糞池怎么做?附方案及施工過程
閱讀次數:391783次
農村一層三間平房設計圖,告別土氣養老房,讓人忍不住點贊
閱讀次數:350581次
新農村二層樓房圖片造價12萬,挑一套回家建房吧!
閱讀次數:349126次
