
|
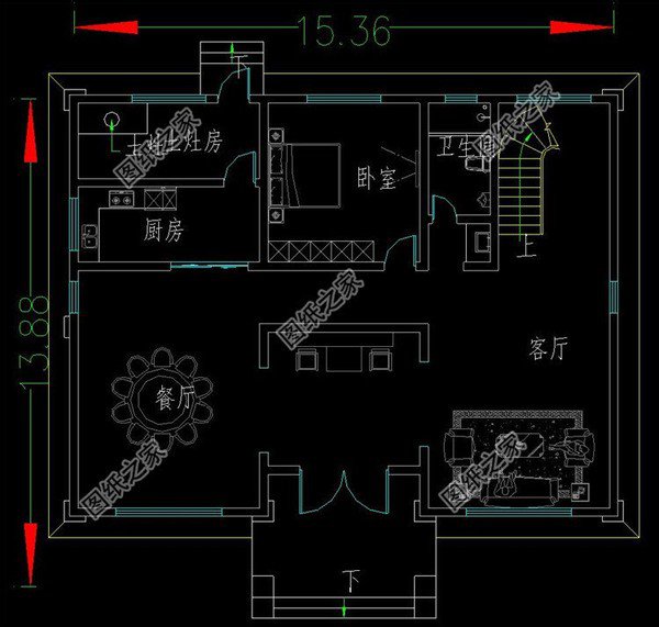
年也過完了,大部分人也在籌劃新的一年建房計劃,農村人建房,過去過于強調實用,卻忽略了建房帶來的美感,導致房型建起來卻不如人意,房子建起來不是單純地為了生活,居住舒適,美觀實用并存才是建房的最佳選擇,單純只講究實用,房型太容易過時并且整體毫無美感且呆板,今日小編帶來了四款2021最新別墅二層半設計圖以及戶型圖,就不妨來康康吧! 第一款:大戶型三層別墅設計圖以及戶型圖,帶露臺大氣![]() ![]() ![]() 這款別墅為典型的歐式風格,采用的是框架結構,外墻用統一的黃色真石漆噴飾,用顏色統一來顯現出別墅的大氣之勢。別墅的造型多有突起和參差不齊的設計,是為了能更好地展現別墅的結構和層次,使別墅看上去凹凸有致,形體有質感。 占地面積:21m*11.7m,227平方米左右; 建筑層高:三層; 建筑高度:13.175米(含屋頂); 設計功能: 一層戶型:客廳、餐廳x2、廚房、娛樂室、臥室(帶衛生間)x2、衛生間; 二層戶型:客廳、臥室x2、臥室(帶衛生間)x2、書房、娛樂室、衛生間、露臺; 三層戶型:客廳、臥室(帶衛生間)x2、書房、陽臺、露臺 ![]() ![]() ![]() 第二款:好看的三層樓別墅設計圖以及平面圖,別墅典型的歐式外觀![]() ![]() ![]() 外立面采用統一色調真石漆裝飾,簡約時尚,室內布局十分齊全,功能設計實用,設有KTV、棋牌室等娛樂設施,豐富日常生活,符合農村建房需求和生活需要。 占地面積:11.72m*11.42m,131平方米左右; 建筑層高:三層; 建筑高度:12.52米(含屋頂); 設計功能: 一層戶型:入戶大廳、客廳、餐廳、廚房、泡澡間、溫泉室、儲藏間、臥室、衛生間; 二層戶型:起居室、臥室(帶衛生間)x2、臥室x2、書房、衛生間、陽臺; 三層戶型:臥室(帶衛生間)、臥室、KTV、棋牌室、衛生間、露臺 ![]() ![]() ![]() 第三款:兩層半別墅設計圖以及戶型圖,自建推薦![]() 對于年輕人來說,現代風格的小別墅越來越受到歡迎,它時尚漂亮,通透明亮,大大的落地窗,視野開闊,能夠完全地看到外面的景色,與大自然融為一體,也具有現代科技感,讓人心胸寬廣,心情愉悅,引人注目。 占地面積:15.5m*12.9m,179平方米左右; 建筑層高:二層; 建筑高度:11.149米(含屋頂); 設計功能: 一層戶型:客廳、書房(可自由安排)、廚房、餐廳、臥室(帶衛生間)、衛生間、儲藏室; 二層戶型:臥室x4(帶衛生間)、陽臺; 閣樓戶型:套間臥室x2、衛生間、衣帽間x2(可自由安排) ![]() ![]() ![]() 第四款:180平高端歐式三層別墅設計圖以及戶型圖,大戶型復式客廳![]() 農村豪宅的頂級配置!簡潔大氣的戶型,采用了大量歐式設計元素,讓外觀顯得非常高雅!藍色斜屋頂,搭配米黃色真石漆以及少許的棕色面磚,色彩搭配合理。大大的落地窗讓整棟建筑更加迷人,入戶門廳采用方柱加雙柱,整個立面氣勢十足。 占地面積:15.36m*13.88m,182.016平方米左右; 建筑層高:三層; 建筑高度:14.208米(含屋頂); 設計功能: 一層戶型:堂屋、客廳、餐廳、廚房、土灶房、臥室、衛生間; 二層戶型:客廳、茶藝區、臥室(帶衛生間)、臥室x2、衛生間、陽臺; 三層戶型:客廳挑空、臥室x2、臥室(帶衛生間)、衛生間、露臺 ![]() ![]() ![]() 以上就是小編推薦的2021年最新二層半別墅設計圖以及戶型圖,你喜歡四款中的哪一個?評論區告訴我。
圖紙之家-專注農村別墅/自建房設計18年,集合國內200余位經驗豐富的設計師,被評為口碑最好的農村建筑設計公司! |

125平方米新中式農村自建三層別墅建筑設計圖紙及效果圖
占地:124平方米
偏中式徽派的二層房屋農村別墅設計圖,馬頭墻小青瓦
占地:123.36平方米
西班牙風格農村二層樓房設計圖及效果圖,實用美觀
占地:170平方米
140平方米新農村復式自建房子,三層別墅建筑圖紙及效果圖
占地:138平方米
二層簡歐農房!經濟實惠+大氣耐看,20年后不落后
占地:120平方米
現代風格三拼別墅設計圖紙,三兄弟回村自建房戶型
占地:324平方米
160平方米農村二層別墅設計效果圖帶CAD建筑圖
占地:160平方米
三層獨棟帶露臺房屋設計圖,含外觀圖片大全
占地:110平方米
2026年經典新中式三層別墅設計圖紙,新款自建房戶型圖
占地:158.19平方米
180平高端歐式三層別墅圖紙設計,大戶型復式客廳
占地:182.016
泰式風格三層小別墅設計圖,帶車庫和大露臺
占地:120平方米
蓋別墅圖紙新農村簡歐二層房屋設計圖,12米×12米左右
占地:128平方米左右
中式四合院農村自建房設計圖,白墻黛瓦,四水歸堂
占地:137.72平方米
帶地下室KTV三層農村自建別墅設計圖,12米乘12.5米
占地:131.7平方米
四層巴洛克別墅設計圖,旋轉樓梯搭配超大挑空客廳,很有氣勢
占地:146平方米
農村二層別墅設計圖,帶外觀效果圖,兄弟自建推薦
占地:多種戶型
農村三層房屋設計圖紙,三層農村住宅設計效果圖,11米*10米
占地:100平方米
帶閣樓的一層半平房設計圖,比樓房還舒適,12米×13米
占地:170.1平方米
160平方米二層平屋頂房屋設計圖紙及效果圖17x11米
占地:164平方米
一層半房屋別墅設計圖,帶閣樓圖、帶露臺,外觀新穎時尚
占地:130平方米
推薦:10套新農村自建房設計圖,2026年最新設計
閱讀次數:4825737次
100套鄉村別墅圖片大全,2026年最新設計
閱讀次數:2492203次
6款農村蓋一層平房的設計圖,10萬元就能建起來
閱讀次數:1852637次
這11個一層農村自建房別墅火爆了朋友圈!我最喜歡戶型十!你呢
閱讀次數:750268次
農村6萬元建一層小別墅圖,你敢相信嗎
閱讀次數:567686次
農村5萬塊就能自建房,6套普通房子設計圖分享,你沒看錯!
閱讀次數:419410次
8套農村漂亮三間平房圖片,非常適合在農村修建!
閱讀次數:411197次
農村自建房化糞池怎么做?附方案及施工過程
閱讀次數:391783次
農村一層三間平房設計圖,告別土氣養老房,讓人忍不住點贊
閱讀次數:350581次
新農村二層樓房圖片造價12萬,挑一套回家建房吧!
閱讀次數:349126次
