
|
堂屋是農村舉辦各種禮儀比如結婚,祭祖,放置祖宗牌位的重要場所,雖然現在很多農村的風俗都漸漸的消失,但是堂屋還是農村別墅設計中不可或缺的重要空間。今天小編給大家推薦5款帶堂屋的農村別墅,二層和三層的都有,適合不同需求的家族建房使用,大家可以參才建房。 戶型一
二層歐式大氣風格的農村別墅,開間13.9米,進深12.1米,占地面積151.09平方米,建筑面積300.11平方米,二層帶堂屋設計。傳統的堂屋一般都是房子的中堂,而這款別墅,經過現代改良把堂屋設在的偏廳,既可以作堂屋,又可以作為入戶門廳,實用方便,空間的利用率更高。
戶型二
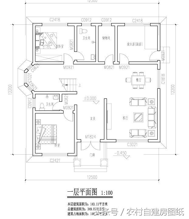
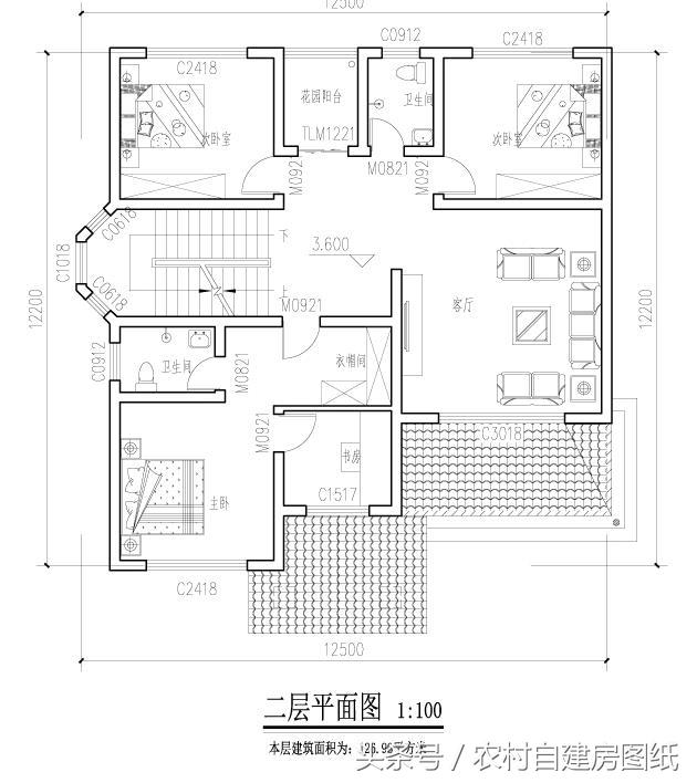
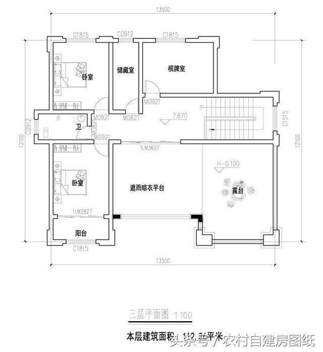
一款時尚的三層農村別墅,文化石與墻漆的拼接,經典大氣。這款戶型開間12.5米,進深12.2米,占地面積146平方米,建筑面積349平方米。一層設計有玄關兼堂屋,客廳、2間臥室,2個衛生間,柴火廚房和儲藏室都有,功能很齊全。
戶型三
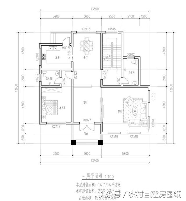
處處透著時尚的二層小別墅,有著異域風情的味道,顏色搭配的很接地氣,也適合農村的審美。戶型開間13.3米,進深13.6米,占地面積155平方米,建筑面積259平方米。一層設計有客廳、玄關兼堂屋、帶衛生間的臥室、廚房、餐廳和公衛;二層設計有套間帶書房衣帽間和衛生間、臥室、客廳、衛生間和露臺。
戶型四
占地面積很大,一看就很豪華的二層歐式農村別墅,占地面積191平方米,建筑面積323平方米,開間17.2,進深13米,獨立的廚房可設柴火灶,堂屋很大,實用性強。一層2臥室、廚房、餐廳、衛生間、棋牌室齊全,二層4室1廳2衛1書房。
戶型五
豪華三層農村別墅,建好入住100萬以上,建在農村絕對是頭一個。戶型開間14.4米,進深12.1米,占地面積185平方米,建筑面積442平方米。堂屋和客廳都很大,復式的中空客廳貴氣十足,一樓兩間臥室足夠使用,廚房和餐廳還帶有儲藏室。
圖紙之家-專注農村別墅/自建房設計18年,集合國內200余位經驗豐富的設計師,被評為口碑最好的農村建筑設計公司! |

2026年簡單實用二層農村別墅,經典大氣真的香
占地:165.98平方米
帶架空層的兩層別墅設計圖,通透又明亮,建在農村絕對有面子
占地:106.79平方米
農村自建超漂亮中式四合院別墅設計圖,22X25米
占地:473平方米
170平方米農村二層小別墅設計圖及效果圖
占地:170平方米
120平米三層小別墅設計方案和效果圖,端莊大氣很經典
占地:120平方米
農村二層中式戶型設計圖,造型古香古色,建好絕對是地標
占地:245.39平方米
帶陽光房的二層簡歐別墅圖紙,戶型經典實用
占地:147.2平方米
二層歐式農村小別墅設計圖,9.5米乘13米,戶型好到鄰居求圖紙
占地:118.32平方米
中式二層對稱別墅設計圖,帶地下室設計,整體造價經濟
占地:171.6平方米
16x14米三層雙拼別墅設計圖,外觀精致大氣內里實用,兄弟建房上
占地:217.28平方米
大氣的三層鄉村別墅設計方案圖,小面積建出豪宅感
占地:104.9平方米
農村兩間三層房屋設計圖,含外觀圖片
占地:120平方米
三層歐式豪華別墅設計方案,全套圖紙+效果圖
占地:168平方米
面寬13米二層鄉村自建別墅戶型圖,帶堂屋和露臺
占地:135.47平方米
開間14米!農村養老一層別墅神戶型,爸媽住得安心,施工隊狂贊太
占地:160.86平方米
10套農村經典二層樓房設計圖紙,多戶型,多尺寸,總有一款適合
占地:多種
適合7字型宅基地蓋的一層別墅,中式風格設計
占地:163平方米
歐式獨棟二層小別墅設計圖,客廳中空,占地126平米
占地:120平方米
2026最新兄弟簡歐雙拼別墅設計圖紙,單戶130平米左右
占地:260平方米
歐式大氣新農村三層別墅豪宅設計圖,外觀高端,對稱設計
占地:225平方米左右
推薦:10套新農村自建房設計圖,2026年最新設計
閱讀次數:4825737次
100套鄉村別墅圖片大全,2026年最新設計
閱讀次數:2492203次
6款農村蓋一層平房的設計圖,10萬元就能建起來
閱讀次數:1852637次
這11個一層農村自建房別墅火爆了朋友圈!我最喜歡戶型十!你呢
閱讀次數:750268次
農村6萬元建一層小別墅圖,你敢相信嗎
閱讀次數:567686次
農村5萬塊就能自建房,6套普通房子設計圖分享,你沒看錯!
閱讀次數:419410次
8套農村漂亮三間平房圖片,非常適合在農村修建!
閱讀次數:411197次
農村自建房化糞池怎么做?附方案及施工過程
閱讀次數:391783次
農村一層三間平房設計圖,告別土氣養老房,讓人忍不住點贊
閱讀次數:350581次
新農村二層樓房圖片造價12萬,挑一套回家建房吧!
閱讀次數:349126次
