
|
對于那種要求造價低,但是房子又耐看大氣的親,小編不得不介紹一下下面這款二層帶地下室小別墅!喜歡可以收藏起來喲~ 戶型介紹: 層數: 二層 結構形式: 磚混結構 主體造價: 18-22萬 開間: 10.2米 進深: 11米 占地面積: 98平方米 建筑面積: 268平方米
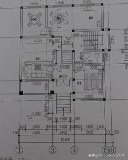
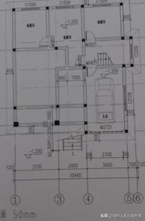
本戶型精致大方,半地下車庫錯層式設計,主臥空間舒適,空間利用率高,溫馨的家居環境 設計功能: 技術層:車庫、3個儲藏間 一 層:客廳、臥室、活動室、廚房、餐廳、衛生間、陽臺 二 層:起居室、主臥(帶走入式衣柜,衛生間,陽臺)、2臥室、書房、衛生間 部分施工截圖:
技術層:車庫、3個儲藏間
一 層:客廳、臥室、活動室、廚房、餐廳、衛生間、陽臺
二 層:起居室、主臥(帶走入式衣柜,衛生間,陽臺)、2臥室、書房、衛生間
圖紙之家-專注農村別墅/自建房設計18年,集合國內200余位經驗豐富的設計師,被評為口碑最好的農村建筑設計公司! |

中式一層仿古自建平房設計圖,灰墻青瓦,外觀古香古色
占地:168.48平方米
新款農村三拼三戶別墅設計圖及效果圖三層戶型,外觀靚麗新穎
占地:360平方米
中國最美建筑四合院設計圖紙及效果圖,顏值爆棚
占地:152平方米左右
農村一層四開間自建別墅,美麗住宅如詩如畫里15米乘10米
占地:142平方米
最新農村20萬元二層半別墅設計圖,占地僅110多平
占地:110平方米
80平方米新農村三層房屋設計圖,新農村住宅圖紙精選
占地:80平方米
一層合院中式小別院設計圖,白墻灰瓦,愜意十足!
占地:219平方米
農家中式小院一層三合院自建房,布局寬敞大氣又舒適
占地:186.07平方米
90平米三層農村房子設計圖,簡單大氣實用
占地:94.28平方米
15×12米一層農村寶藏戶型,適合養老房,看完鄰居直接要圖紙!
占地:180平方米
帶車庫三層自建別墅設計圖紙,客廳中空,外觀洋氣時尚,這款戶
占地:170平方米
面寬14米農村別墅二層別墅戶型設計,經濟實用
占地:107.1平方米
農村最漂亮平頂三層別墅設計圖,10.5乘11.5米
占地:119.35平方米
小青瓦一層中式小院三合院設計施工圖,白墻青瓦古色古香
占地:155.3平方米
農村兩間兩層樓房設計圖,造價15萬左右,獨立的廚房設計,干凈
占地:95平方米
2026年簡單實用二層農村別墅,經典大氣真的香
占地:165.98平方米
新中式農村自建二層別墅設計圖,占地160平米左右,客廳中空
占地:160平方米
進深15米新農村三層房屋設計圖紙,農村住宅設計圖集
占地:128平方米
平屋頂二層自建房帶商鋪別墅設計圖紙及外觀圖
占地:225平方米
現代四合院別墅設計圖紙,二層戶型,外觀時尚漂亮
占地:287.97平方米
推薦:10套新農村自建房設計圖,2026年最新設計
閱讀次數:4825737次
100套鄉村別墅圖片大全,2026年最新設計
閱讀次數:2492203次
6款農村蓋一層平房的設計圖,10萬元就能建起來
閱讀次數:1852637次
這11個一層農村自建房別墅火爆了朋友圈!我最喜歡戶型十!你呢
閱讀次數:750268次
農村6萬元建一層小別墅圖,你敢相信嗎
閱讀次數:567686次
農村5萬塊就能自建房,6套普通房子設計圖分享,你沒看錯!
閱讀次數:419410次
8套農村漂亮三間平房圖片,非常適合在農村修建!
閱讀次數:411197次
農村自建房化糞池怎么做?附方案及施工過程
閱讀次數:391783次
農村一層三間平房設計圖,告別土氣養老房,讓人忍不住點贊
閱讀次數:350581次
新農村二層樓房圖片造價12萬,挑一套回家建房吧!
閱讀次數:349126次
