
|
農村蓋房其實很簡單,一套合格的圖紙,標準的施工水平,就能蓋出一棟漂亮的農村別墅。 今天介紹的這棟別墅,戶主宅地面積很大,想蓋棟氣派的戶型,左右對稱形式。功能不需要很多,空間開闊活動自由不擁擠就好。下面看一下這棟4層別墅:
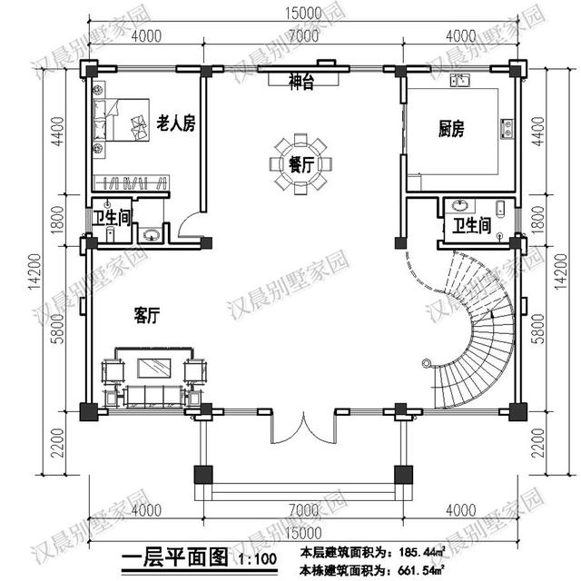
圖紙編號TC449,尺寸15X14.2米,占地面積為 185.44平米,總建筑面積661.54平米,造價預算68萬,框架結構。
農村自建房常用紅色、白色、褐色等筆記常見的經典色,而農村別墅又額外的增加了亮黃和姜黃,增添靈動活潑的氛圍。
頂層前面是露臺,屋檐上大坡頂。下面有立柱。即使是頂層感覺也像是住在一層舒服。
平面圖 進門寬敞大面積的門廳,作為主要的活動區域。按照風水要求,左右分別是客廳和旋轉樓梯。
別墅要求大氣,那么挑空客廳就是一個很好的選擇。二層和三層之間的樓梯在休息廳旁邊換成了直角樓梯。
作為主要生活層,三層設有四間臥室,注重感情溝通交流中間休息廳非常大。
四層兩間臥室兩衛生間,中間一個娛樂室,前面大部分都是露臺。 ![]()
圖紙之家-專注農村別墅/自建房設計18年,集合國內200余位經驗豐富的設計師,被評為口碑最好的農村建筑設計公司! |

16x14米三層雙拼別墅設計圖,外觀精致大氣內里實用,兄弟建房上
占地:217.28平方米
140平方米歐式三層別墅建筑設計圖紙,復式結構
占地:140平方米
最新農村20萬元二層半別墅設計圖,占地僅110多平
占地:110平方米
180平方米漂亮大氣三層雙拼別墅設計圖,自建房圖片
占地:186平方米
120平方米農村經典二層房屋設計圖紙,造型精致好看
占地:121平方米
農村蓋房三層自建別墅設計圖紙,11米乘12米戶型方案
占地:132.55平方米
大氣、簡約三層雙拼別墅設計圖,適合和父母同住,既相互關照又
占地:260平方米
被包工頭夸爆的二層別墅戶型!建好未來幾年必火
占地:189.98平方米
帶電梯高端四層別墅房屋設計圖,外觀圖大氣、上檔次
占地:220平方米
歐式兩層別墅樓房設計圖紙施工方案,高端豪華外觀圖片
占地:138平方米
二層門面房自建小樓設計圖紙及效果圖,占地150平
占地:151.83平方米
現代風格四合院別墅設計圖,回老家建一棟吧
占地:177.89平方米
簡單質樸三層新農村小別墅設計圖紙,別墅圖片,戶型簡單合理實
占地:120平方米
12x9米自建一層小別墅設計圖,占地不大造價低,簡單舒適人人夸
占地:108.36平方米
三層帶地下室+旋轉樓梯別墅設計圖紙,復式挑空客廳
占地:多種戶型
面寬11米超實用的農村一層別墅設計圖,南北通透造價不高
占地:110.47平方米
歐式復式型三層別墅施工設計圖紙及效果圖大全
占地:164平方米
三層新農村小別墅設計圖紙,占地120平米,客廳中空,帶大露臺
占地:120平方米
帶地下室的三層歐式別墅戶型設計圖,帶地下室農村自建房
占地:139.256平方米
100平復式三層別墅房屋設計圖,客廳挑高,采光好,臥室多
占地:100平方米
推薦:10套新農村自建房設計圖,2026年最新設計
閱讀次數:4825737次
100套鄉村別墅圖片大全,2026年最新設計
閱讀次數:2492203次
6款農村蓋一層平房的設計圖,10萬元就能建起來
閱讀次數:1852637次
這11個一層農村自建房別墅火爆了朋友圈!我最喜歡戶型十!你呢
閱讀次數:750268次
農村6萬元建一層小別墅圖,你敢相信嗎
閱讀次數:567686次
農村5萬塊就能自建房,6套普通房子設計圖分享,你沒看錯!
閱讀次數:419410次
8套農村漂亮三間平房圖片,非常適合在農村修建!
閱讀次數:411197次
農村自建房化糞池怎么做?附方案及施工過程
閱讀次數:391783次
農村一層三間平房設計圖,告別土氣養老房,讓人忍不住點贊
閱讀次數:350581次
新農村二層樓房圖片造價12萬,挑一套回家建房吧!
閱讀次數:349126次
