
|
這款二層小別墅是新出爐的戶型,設計手法采用現代人的審美及生活習慣,經濟實用,主體造價20萬左右,二樓帶有臥室套房,符合大眾的需求。 圖紙詳情
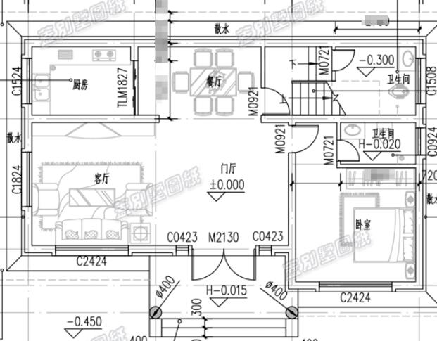
正面效果圖 層數: 二層 結構形式: 框架結構 主體造價: 20萬 開間: 12.9米 進深: 8米 占地面積: 108.13平方米 建筑面積: 195.66平方米 建筑高度:9.6米
該戶型共設有4廳3臥,每間臥室均帶有獨立衛生間,方便私密。方形窗戶和拱形窗搭配協調,配色清新雅致,采用坡屋頂設計,利于排水,外觀上也更精致漂亮,二樓的陽臺設計方便晾曬,整體造型簡潔流暢。
設計功能
一 層: 門廳、客廳、餐廳、廚房、臥室(帶衛生間)、公衛
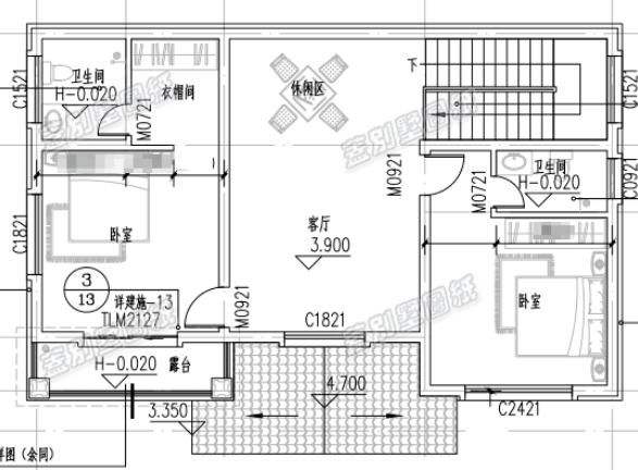
二 層: 客廳、臥室(帶露臺、衣帽間、衛生間)、臥室(帶衛生間) 圖紙之家-專注農村別墅/自建房設計18年,集合國內200余位經驗豐富的設計師,被評為口碑最好的農村建筑設計公司! |

二層兄弟雙拼農村別墅圖新中式,兄弟這樣建房,大氣省錢
占地:143.412平方米
農村三層別墅設計圖紙,造價50萬左右,中式風格,沉穩內斂
占地:160平方米
新農村三層自建房屋設計圖,含外觀圖片
占地:136平方米
時尚的農村二層別墅圖紙設計,現代風格,簡約的外觀
占地:152平方米左右
帶陽光房的二層簡歐別墅圖紙,戶型經典實用
占地:147.2平方米
農村五開間大平層設計圖,主體15萬就能建。
占地:182.43平方米
簡約實用農村自建房戶型圖,美觀經濟又通透,南北通透住得爽!
占地:160.6平方米
農村18萬元二層小樓圖紙,漂亮實用的農村二層樓房設計圖
占地:140平方米
造價33萬左右超漂亮的三層別墅圖紙設計圖,旋轉樓梯戶型設計
占地:121.59平方米
豪華農村帶露臺三層樓房別墅設計圖紙,占地200平方米左右
占地:200平方米
獨立餐廳廚房,平屋頂現代風格三層別墅設計圖
占地:159.02平方米
2026最新兄弟簡歐雙拼別墅設計圖紙,單戶130平米左右
占地:260平方米
農村16萬一層平房小院設計圖,左右對稱布局好,南北方都能建
占地:195.9平方米
100平左右農村一層平房小洋樓建筑設計圖紙,14米×8米
占地:98平方米
農村自建一層房子設計圖,大開間小進深,20米x10米
占地:188平方米
占地130平方米中式二層小樓房設計圖紙,農村自建戶型實用
占地:136.04平方米
180平方米漂亮大氣三層雙拼別墅設計圖,自建房圖片
占地:186平方米
農村自建三層別墅設計圖,開間17米進深13米,外觀對稱設計
占地:187.6平方米
120平方米新農村房屋設計圖紙,新中式效果圖,3層住宅設計方案
占地:120平方米
兄弟三層雙拼房屋設計圖,帶效果圖,戶型好
占地:256平方米
推薦:10套新農村自建房設計圖,2026年最新設計
閱讀次數:4825737次
100套鄉村別墅圖片大全,2026年最新設計
閱讀次數:2492203次
6款農村蓋一層平房的設計圖,10萬元就能建起來
閱讀次數:1852637次
這11個一層農村自建房別墅火爆了朋友圈!我最喜歡戶型十!你呢
閱讀次數:750268次
農村6萬元建一層小別墅圖,你敢相信嗎
閱讀次數:567686次
農村5萬塊就能自建房,6套普通房子設計圖分享,你沒看錯!
閱讀次數:419410次
8套農村漂亮三間平房圖片,非常適合在農村修建!
閱讀次數:411197次
農村自建房化糞池怎么做?附方案及施工過程
閱讀次數:391783次
農村一層三間平房設計圖,告別土氣養老房,讓人忍不住點贊
閱讀次數:350581次
新農村二層樓房圖片造價12萬,挑一套回家建房吧!
閱讀次數:349126次
