圖紙介紹:新款私人定制四層歐式獨棟住宅別墅設計圖紙,含外觀效果圖,這款歐式風格的別墅,給人以雍容高貴之感,從內到外注重品質感的締造,建筑外立面上的拱形落地窗,以及多處陽臺等,不僅使得房屋造型更加豐富,同時也優化了居住感受,是一套適合大家庭居住的高品質別墅。
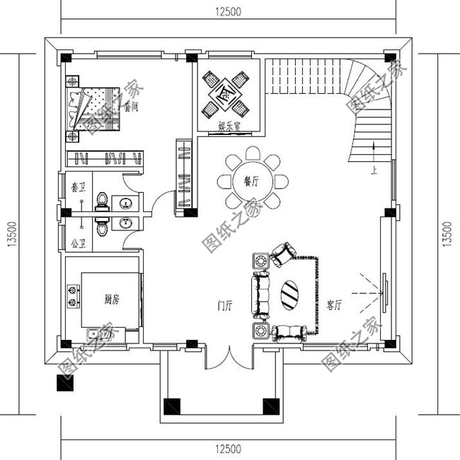
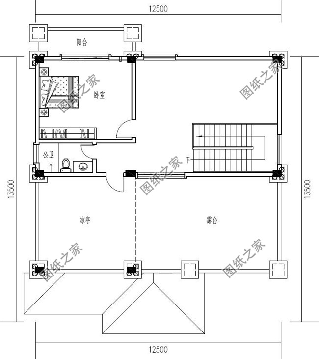
占地面積:12.5m*13.5m,138平方米左右;
建筑層高:四層;
建筑高度:16.43米(含屋頂);
設計功能:
一層戶型:門廳、客廳、廚房、餐廳、娛樂室、臥室(帶衛生間)、衛生間;
二層戶型:客廳、主人房(帶衛生間)、臥室、衛生間、陽臺;
三層戶型:客廳上空、小客廳、臥室(帶衛生間)x2、陽臺;
四層戶型:臥室、衛生間、涼亭、露臺;
圖紙目錄:
建筑圖:建筑設計說明、一層平面圖、二層平面圖、三層平面圖、四層平面圖、屋頂平面圖、正立面圖、背立面圖、左立面圖、右立面圖、1-1剖面圖、樓梯大樣圖、門斗大樣圖、節點大樣圖、門窗表等;
結 構 圖:結構設計說明、基礎平面布置圖、一層頂梁結構平面圖、一層頂板結構平面圖、二層頂梁結構平面圖、二層頂板結構平面圖、三層頂梁結構平面圖、三層頂板結構平面圖、坡屋頂梁結構平面圖、坡屋頂板結構平面圖、樓梯配筋大樣圖、節點大樣圖等;
給排水圖:給排水設計說明、一層給排水平面圖、二層給排水平面圖、三層給排水平面圖、四層給排水平面圖、屋頂給排水平面圖、衛生間大樣圖、給排水系統圖等;
電 氣 圖:電氣設計說明、配電系統圖、弱電系統圖、一層照明平面圖、二層照明平面圖、三層照明平面圖、四層照明平面圖、一層插座平面圖、二層插座平面圖、三層插座平面圖、四層插座平面圖、一層弱電平面圖、二層弱電平面圖、三層弱電平面圖、四層弱電平面圖、基礎接地平面圖、屋頂防雷平面圖等;
本套圖紙含全套A3施工圖+高清效果圖,拿到即可施工!




















































































