
|
今天給大家分享的是一套二層中式別墅 喜歡中式建筑的朋友可以拿去參考參考 “清晏之樂”,是生活意趣,也是人生品味。讀書學法、清談靜坐、音樂書畫、小酌、煎茶、散步、奕棋,于墅居中拾起曾被辜負的閑暇時光。一面山水一面繁華,與自然為伴,在城市隱居。
建筑信息 開間:15米 進深:14.7米 風格:中式 結構:磚混 層數:二層
俯視圖 下面一起來看下建筑四立面效果圖:
正面效果
右立面效果
左立面效果
背面效果 簡約耐看,是中式建筑最大的妙筆! 庭院設計效果一覽:
盆景,花草,山水,應有盡有,打造生機!
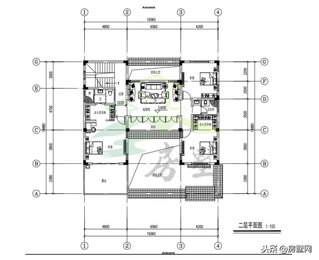
細膩的雕花。 下面一起來看下平面設計效果:
一層平面設計:兩個臥室,一個會客廳,廚房分土灶和電氣灶,大餐桌小餐桌。
二層平面設計:三個臥室,一個客廳。 古韻美,中式二層,帶給你最好的居住體驗! 圖紙之家-專注農村別墅/自建房設計18年,集合國內200余位經驗豐富的設計師,被評為口碑最好的農村建筑設計公司! |

四開間兩層別墅設計圖,農村自建住著舒適的好方案!
占地:187.04平方米
復式樓房二層農村別墅圖,村里建一棟絕對人人都羨慕
占地:130.2平方米
100平方米自建三層半別墅設計圖紙,帶地下車庫
占地:100平方米
一層農村三合院平房設計圖,可以倆兄弟或和父母兒女一起住
占地:202.79平方米
獨棟別墅設計戶型圖帶外觀效果圖,雙向樓梯設計
占地:155平方米
農村4開間二層別墅設計圖,帶堂屋帶露臺,進深9米
占地:126平方米左右
農村三層半別墅設計圖及外觀效果圖,三層半樓房設計方案推薦
占地:100平方米
125平方米三層新農村房屋建筑施工設計圖帶外觀圖
占地:126平方米
二層農村雙拼別墅帶露臺設計圖,20×11.8米,單戶110平米
占地:220平方米
新款農村三層雙拼聯體別墅戶型圖,客廳中空,單戶120平米左右
占地:240平方米
小戶型兄弟雙拼別墅房屋設計圖,帶外觀效果圖
占地:150平方米
100-140平多戶型二層經典新農村小別墅設計建筑圖紙
占地:多種戶型
140平方米現代偏中式實用型三層房屋設計圖紙,新農村建房推薦
占地:142平方米
人氣最旺的二層半別墅設計圖紙,復式挑空二層半自建房
占地:122.679平方米
新中式三層雙拼別墅設計圖,外觀圖片美觀、大氣
占地:176平方米
獨棟兩層歐式別墅設計圖紙(效果圖+建筑施工圖)
占地:125平方米
80平方米農村四層房屋設計圖紙及效果圖
占地:80平方米
中式兄弟雙拼別墅設計圖紙,類似合院造型,美爆了
占地:221.9平方米
兩層平屋頂帶地下室別墅設計方案(全套自建房施工圖+效果圖)
占地:152.55平方米
歐式三層雙拼別墅設計圖,精致大氣布局實用,兄弟建房上上之選
占地:234平方米
推薦:10套新農村自建房設計圖,2026年最新設計
閱讀次數:4825737次
100套鄉村別墅圖片大全,2026年最新設計
閱讀次數:2492203次
6款農村蓋一層平房的設計圖,10萬元就能建起來
閱讀次數:1852637次
這11個一層農村自建房別墅火爆了朋友圈!我最喜歡戶型十!你呢
閱讀次數:750268次
農村6萬元建一層小別墅圖,你敢相信嗎
閱讀次數:567686次
農村5萬塊就能自建房,6套普通房子設計圖分享,你沒看錯!
閱讀次數:419410次
8套農村漂亮三間平房圖片,非常適合在農村修建!
閱讀次數:411197次
農村自建房化糞池怎么做?附方案及施工過程
閱讀次數:391783次
農村一層三間平房設計圖,告別土氣養老房,讓人忍不住點贊
閱讀次數:350581次
新農村二層樓房圖片造價12萬,挑一套回家建房吧!
閱讀次數:349126次
