
|
農村以前的老磚房雖然還能夠遮風擋雨,但是滿足現代的生產生活已經不夠便捷。現在到農村去,經常能看見農民朋友們在自家的宅基地上建造的新別墅。雖然很多農民工作在外,但是年底回家了,都有了新房子,在農村建的自建房住起來比城里商品房要舒服多了。
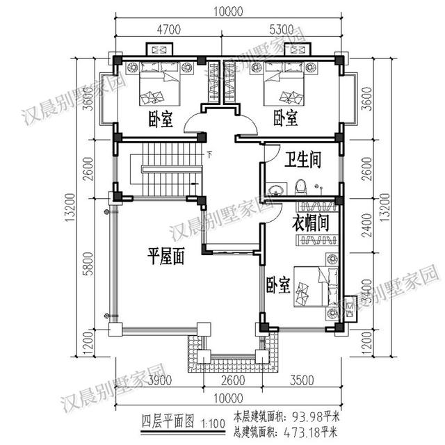
廣東何先生的別墅,家里兩兄弟,由于宅地面寬只有10米,想蓋雙拼不夠,只能蓋四層戶型了,外觀盡量簡單低調,側面兩邊都做了飄窗。
開間10米,進深13.2米,占地面積為126.4平方米,總建筑面積為473.18平方米
平面圖 進門便是堂屋,客廳中間有軟隔。客廳和旋轉樓梯一體化設計。總共設有 6臥室、2廚房、2餐廳、3客廳、4衛生間、2雜物間、2衣帽間、1老人房
二層中間不論是茶室還是家庭廳,都是家中重要的公共區域,注重交流,空間留白。
另類的雙拼別墅戶型,三層有廚房和餐廳,有一間臥室方便休息。
頂層臥室算是比較多的,越高層活動頻率越少,是居住休息的好場所。 ![]() 圖紙之家-專注農村別墅/自建房設計18年,集合國內200余位經驗豐富的設計師,被評為口碑最好的農村建筑設計公司! |

三層帶車庫樓中樓建房別墅圖紙,占地130平米左右,戶型室內布局
占地:130平方米
二層農村房屋設計圖紙,帶效果圖和全套施工方案圖
占地:多種戶型
120平米農村房屋設計圖,造價20萬左右,別墅造型結構精致
占地:120平方米
經濟實用二層復式樓房設計圖 ,占地150平方米,造價25萬左右
占地:150平方米
農村二層半新中式小別墅設計圖(帶閣樓層),二層半自建房戶型
占地:144平方米
面寬20米大氣的農村二層別墅設計圖,戶型帶車庫和土灶房設計
占地:250.85平方米
農村60萬三層別墅新款式設計圖,外觀和實用性并駕齊驅
占地:170平方米
新農村兩層樓房設計圖,占地110平米,戶型簡單實用
占地:110平方米
13×16米農村自建樓房三層別墅戶型設計圖,大氣
占地:168平方米
2026最新款50萬左右農村三層別墅設計圖,客廳中空
占地:160平方米
2026兩層半20多萬農村自建房圖,簡歐風格,美觀大氣
占地:120平方米
農村17萬元一層自建別墅設計圖,外觀簡潔,戶型方正
占地:163平方米
最接農村地氣的二層農村小別墅,造價30萬左右,經濟實用
占地:170平方米
簡單大氣的農村二層樓設計圖,二層歐式農村別墅設計圖
占地:180平方米
新中式二層農村住宅設計圖,戶型方正,主體造價21萬
占地:135.81平方米
一層帶地下室雙拼別墅設計圖,理想鄉村生活的標配
占地:416平方米
經典小戶型雙拼二層新農村房屋住宅設計圖,含效果圖
占地:80平方米
農村120平三層樓房設計圖,造型現代,帶屋頂花園
占地:120平方米
復式挑空二層別墅設計圖,占地175平米,建好住著很舒適
占地:175.44平方米
中式三層新農村房子別墅設計圖,看了那么久,還是中式最有韻味
占地:97.2平方米
推薦:10套新農村自建房設計圖,2026年最新設計
閱讀次數:4825737次
100套鄉村別墅圖片大全,2026年最新設計
閱讀次數:2492203次
6款農村蓋一層平房的設計圖,10萬元就能建起來
閱讀次數:1852637次
這11個一層農村自建房別墅火爆了朋友圈!我最喜歡戶型十!你呢
閱讀次數:750268次
農村6萬元建一層小別墅圖,你敢相信嗎
閱讀次數:567686次
農村5萬塊就能自建房,6套普通房子設計圖分享,你沒看錯!
閱讀次數:419410次
8套農村漂亮三間平房圖片,非常適合在農村修建!
閱讀次數:411197次
農村自建房化糞池怎么做?附方案及施工過程
閱讀次數:391783次
農村一層三間平房設計圖,告別土氣養老房,讓人忍不住點贊
閱讀次數:350581次
新農村二層樓房圖片造價12萬,挑一套回家建房吧!
閱讀次數:349126次
