
|
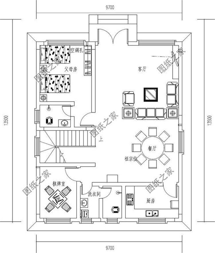
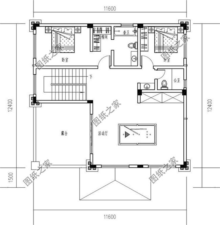
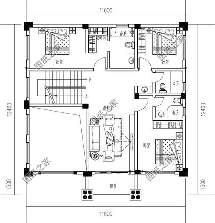
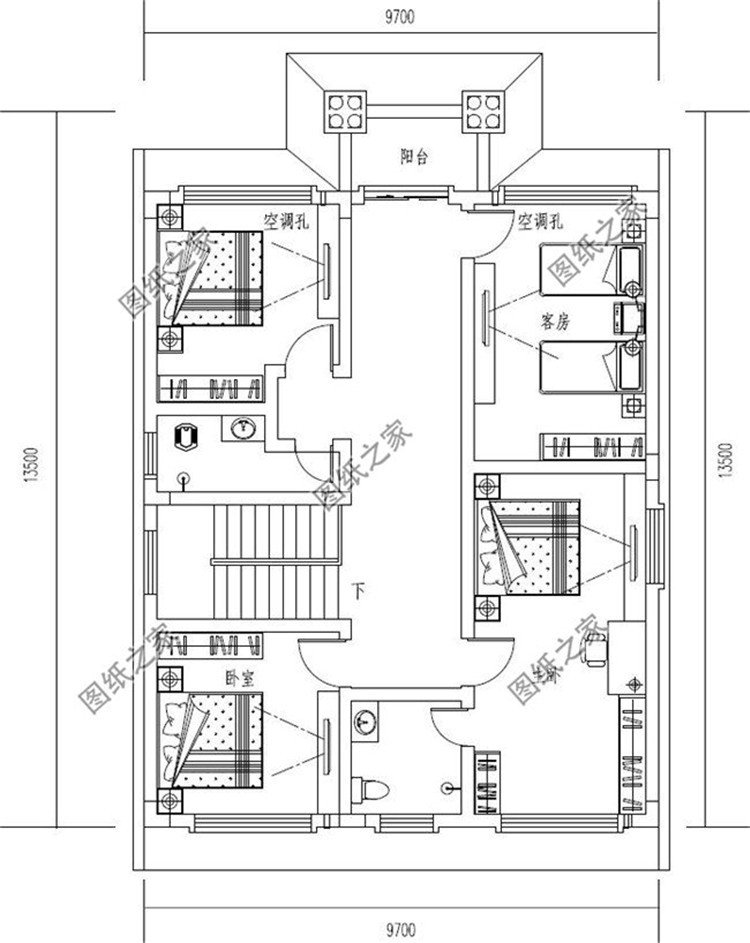
在外辛辛苦苦的工作好多年,為的不就是有一天,能夠榮耀加身,可以回到屬于自己的小鄉村里,修建一棟實打實的好房子,跟自己的妻子兒女一起,過上幸福美滿的生活。今天為大家帶來三套最新農村三層別墅設計圖,外觀大氣美觀,布局合理功能齊全,要建房的朋友趕緊收藏好! 第一款:農村三層別墅設計圖,占地116平米,羅馬柱設計圖紙介紹:這款三層自建小戶型別墅占地116平,復式落地窗,非常有氣勢的羅馬柱,米黃色外墻磚和橙黃色外墻磚裝飾外墻,和橙色坡屋頂相映襯,非常養眼,都把歐式的大氣華貴體現的淋漓盡致。 占地面積:9.7m*12m,116平方米左右; 建筑層高:三層; 建筑高度:12.92米(含屋頂); 設計功能: 一層戶型:客廳、餐廳、廚房、洗衣間、棋牌室、父母房; 二層戶型:小客廳、茶廳、臥室(帶衛生間)、臥室x2、衛生間、陽臺; 三層戶型:臥室(帶衛生間)、臥室x3、衛生間、陽臺; ![]() ![]() ![]() ![]() 第二款:農村三層自建別墅設計圖,占地161平米,外觀氣派十足圖紙介紹:這款三層別墅占地161平米,主體造價40萬左右,外觀十分氣派,大氣美觀適合自建!延續了中國傳統的大屋檐,用了更簡練的線條、宜居的色彩搭配,讓人眼前一亮。客廳空間寬敞,與餐廳之間沒有隔斷自然過渡,上方作挑高設計,橫縱向空間得到延伸,進門就能感覺到書香府邸的氣派體面。二層為主要的居住空間,布置了三間臥室,主臥設置衛生間,保證了居住的私密性和舒適度。三層衣帽間則可以為女主人最愛的衣服和包包提供專屬的小天地。大露臺非常實用,方便家中晾曬。 占地面積:13.56m*12.26m,161.46平方米左右; 建筑層高:三層; 建筑高度:12.815米(含屋頂); 設計功能: 一層戶型:門廳、客廳、廚房、餐廳、儲藏室、臥室(帶衛生間)、臥室、衛生間; 二層戶型:客廳上空、起居室、書房、女兒房(帶衛生間)、臥室(帶衛生間)x2、露臺; 三層戶型:小客廳、娛樂區、臥室(衣帽間)、臥室x2、衛生間、陽臺、露臺; ![]() ![]() ![]() ![]() 第三款:農村三層自建別墅設計圖,簡歐風格,占地126平米左右圖紙介紹:這款三層自建別墅占地126平米,簡歐風格,戶型實用布局超贊的,村里蓋一棟鄉親都羨慕不已!紅色的坡屋頂,錯落有致,大露臺觀景視野極佳,樓上功能空間齊備,戶型方正舒適,外觀簡約耐看,造價實惠,絕對的小宅地蓋房的首選 占地面積:11.6m*12.4m,126平方米左右; 建筑層高:三層; 建筑高度:12.3米(含屋頂); 設計功能: 一層戶型:客廳、餐廳、廚房、臥室(帶衛生間)、棋牌室、衛生間; 二層戶型:客廳上空、起居室、臥室(帶衛生間衣帽間)、臥室套衛、臥室、衛生間、陽臺; 三層戶型:活動廳、臥室(帶衛生間衣帽間)、臥室、衛生間、露臺; ![]() ![]() ![]() ![]() 喜歡三層戶型的朋友記得收藏這三款。
圖紙之家-專注農村別墅/自建房設計18年,集合國內200余位經驗豐富的設計師,被評為口碑最好的農村建筑設計公司! |

面寬12米三層自建房別墅設計圖,廚房在前面,農村施工隊都能建
占地:138.18平方米
三層現代平頂別墅設計圖,簡約時尚百看不厭,外觀令人驚艷!
占地:125.142平方米
農村四間兩層樓房設計圖,帶車庫,時尚經濟,最適合農村施工的
占地:180平方米
簡單大氣的農村二層樓設計圖,二層歐式農村別墅設計圖
占地:180平方米
80平方米三層農村自建民房設計圖,小戶型別墅方案
占地:81平方米
170平方米新農村實用的三層雙拼設計圖紙,帶公用堂屋!
占地:173.62平方米
占地130平方米中式二層小樓房設計圖紙,農村自建戶型實用
占地:136.04平方米
185平方米二層自建別墅設計施工圖紙及外觀效果圖,15x13米
占地:186平方米
建房老師傅力薦!這塊二層簡歐設計圖,花錢少、顏值高,必火
占地:131.65平方米
高端四間五間兩層別墅設計圖紙,開間20米自建房效果圖
占地:265平方米
130平米最新氣派農村四層樓房設計圖,四層樓房圖片
占地:130平方米
帶堂屋設計一層5間平房新農村自建別墅效果圖全套施工圖
占地:198.41平方米
農村自建四層百萬豪宅別墅設計圖,客廳中空
占地:170平方米
新農村二層半房屋設計圖紙及效果圖,別墅設計圖精選
占地:113平方米
250平方米農村三層別墅設計圖紙及效果圖大全,18.3x15米
占地:247平方米
面寬15米的農村三層房屋設計圖,帶別墅效果圖
占地:137平方米左右
一層農村小平房設計圖,功能齊全造價低,兩款戶型可選
占地:多戶型可選
新中式農村三層樓房設計圖,帶地下室,主體建筑面積110平米
占地:110平方米
11X10米三層別墅農村自建房設計圖,復式挑空客廳
占地:119.08平方米
12米乘9米占地百平一層平房戶型設計圖,布局寬敞大氣又舒適
占地:108平方米
推薦:10套新農村自建房設計圖,2026年最新設計
閱讀次數:4825737次
100套鄉村別墅圖片大全,2026年最新設計
閱讀次數:2492203次
6款農村蓋一層平房的設計圖,10萬元就能建起來
閱讀次數:1852637次
這11個一層農村自建房別墅火爆了朋友圈!我最喜歡戶型十!你呢
閱讀次數:750268次
農村6萬元建一層小別墅圖,你敢相信嗎
閱讀次數:567686次
農村5萬塊就能自建房,6套普通房子設計圖分享,你沒看錯!
閱讀次數:419410次
8套農村漂亮三間平房圖片,非常適合在農村修建!
閱讀次數:411197次
農村自建房化糞池怎么做?附方案及施工過程
閱讀次數:391783次
農村一層三間平房設計圖,告別土氣養老房,讓人忍不住點贊
閱讀次數:350581次
新農村二層樓房圖片造價12萬,挑一套回家建房吧!
閱讀次數:349126次
