
|
合院形式的別墅在視覺上形成一個封閉空間,來達到相對獨立不受影響的目的。建筑線條鮮明,凹凸有致,給人更多以沉穩大氣、扎實雄偉的感覺。農村自建房雖然平時居住頻率不高、生活品質的要去可不低。對于一些要求較高的客戶,天晨別墅家園推出這套戶型,不知您還可滿意?
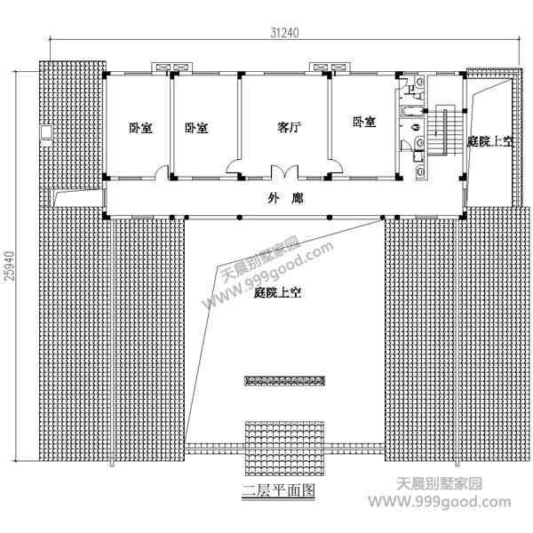
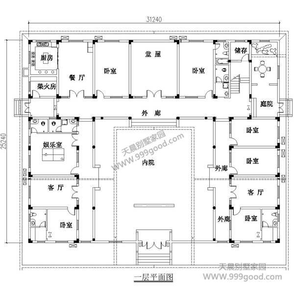
占地尺寸:31.2X25.2米;占地面積:795.3平方米;建筑面積:790.1平方米; 別墅設計說明:本套別墅為四合院別墅設計圖,局部二層,造價約80萬左右,采用框架結構。 首層進入便是內院,各部分的功能以外廊相連接,臥室有6間、2客廳、1娛樂室、廚房和柴火房一應俱全,方便隨時照顧生活中的變化。 別墅設計圖:二層是局部高層設計,臥室眾多可以按照需求裝修的時候 進行修改,以貼近 生活所需。
客廳:
住在這里面,定有“彈琴長嘯”的清幽絕俗的意境。
圖紙之家-專注農村別墅/自建房設計18年,集合國內200余位經驗豐富的設計師,被評為口碑最好的農村建筑設計公司! |

120平方米新農村二層自建房屋設計圖紙大全14x9米
占地:120平方米
一層鄉村別墅設計戶型圖,占地100平左右,外觀很時尚
占地:100平方米左右
超漂亮的二層別墅設計圖,外觀對稱設計,建好很大氣
占地:255平方米
農村五間房子設計圖,大戶型別墅設計圖推薦
占地:240平方米
三層樓房設計圖紙含效果圖,外觀造型高低錯落,別致大方
占地:152.4平方米
2026最新款獨棟中西雙餐廳三層別墅設計圖,精巧實用好看不貴
占地:226.12平方米
新農村三層帶露臺自建房設計施工圖,農村自建別墅推薦
占地:112平方米
造價40萬三層大氣自建房設計圖紙,鄉村別墅建造圖
占地:159.609平方
農村二層小洋樓設計圖,帶外觀效果圖,外觀新穎,漂亮
占地:130平方米
預算30萬左右的新農村三層房屋設計圖推薦,含外觀效果圖
占地:117平方米
35萬內三層自建別墅設計圖,外觀美觀,戶型舒適
占地:135平方米
簡歐式三層小別墅設計圖,帶地下室,客廳中空,占地150平米
占地:150平方米
農村新戶型房子設計圖二層,占地120平米,布局實用
占地:120.29平方米
160平方米農村實用型二層自建小別墅設計施工圖紙15米*10米
占地:160平方米
新農村雙拼別墅全套設計圖方案及效果圖,餐廳廚房獨立設計
占地:338.02平方米
經典二層農村自建房屋別墅設計圖紙,占地110平米左右
占地:110平方米
農村15萬元二層小樓圖,占地100平米左右,簡單實用,戶型合理
占地:100平方米
140平三層復式別墅設計圖及外觀效果圖
占地:140平方米
經典小戶型新農村房屋住宅設計圖,10萬左右
占地:80平方米
110平方米新農村實用現代的二層建筑設計圖紙帶外觀圖11X10米
占地:110平方米
推薦:10套新農村自建房設計圖,2026年最新設計
閱讀次數:4825737次
100套鄉村別墅圖片大全,2026年最新設計
閱讀次數:2492203次
6款農村蓋一層平房的設計圖,10萬元就能建起來
閱讀次數:1852637次
這11個一層農村自建房別墅火爆了朋友圈!我最喜歡戶型十!你呢
閱讀次數:750268次
農村6萬元建一層小別墅圖,你敢相信嗎
閱讀次數:567686次
農村5萬塊就能自建房,6套普通房子設計圖分享,你沒看錯!
閱讀次數:419410次
8套農村漂亮三間平房圖片,非常適合在農村修建!
閱讀次數:411197次
農村自建房化糞池怎么做?附方案及施工過程
閱讀次數:391783次
農村一層三間平房設計圖,告別土氣養老房,讓人忍不住點贊
閱讀次數:350581次
新農村二層樓房圖片造價12萬,挑一套回家建房吧!
閱讀次數:349126次
