
|
雖然有不少的人在農村建中式風格的房子,但是歐式風格才是一直以來的主流傾向,你會發現,一個村里面,除非是統一的規劃,幾乎百分之就是以上的別墅建的都是歐式風格。 歐式別墅一:建房尺寸為12.48×18.82米,框架結構,墻面用真石漆和一些構件來裝飾,屋面開有老虎窗,蓋以一層的琉璃瓦。
平面布局說明:一層設有一室兩廳一廚兩衛,主臥給爸媽住帶獨衛很方便,另有一個休閑娛樂室,戶型是通透的,客廳是挑空的;二層配有兩間臥室,還設有書房和衣帽間,室外是觀景陽臺;三層配有多間臥室和書房,室外設以兩個露臺。
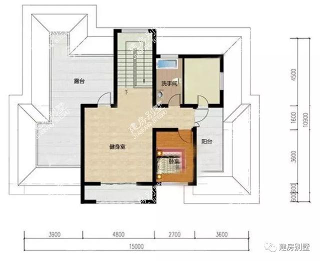
歐式別墅二:建房尺寸為15×11.8米,框架結構,墻面用真石漆裝飾,屋面蓋以藍色的琉璃瓦。
平面布局說明:一層設有兩室兩廳一廚兩衛,臥室之間設一公衛較方便,客廳是挑空的,直角樓梯的設計;二層配有三間臥室一個書房,主臥帶衣帽間、獨衛和陽臺;三層配有一間臥室和健身房,室外設以觀景露臺滿足晾曬需要。
這么氣派的房子要是你家的,是不是很拉分呢? 圖紙之家-專注農村別墅/自建房設計18年,集合國內200余位經驗豐富的設計師,被評為口碑最好的農村建筑設計公司! |

備受好評二層半歐式別墅設計圖,五開間對稱設計,布局合理又實
占地:192.48平方米
160平方農村三層別墅CAD設計圖紙,含外觀圖片效果圖
占地:156平方米
鄉村自建獨棟三層別墅樓房設計圖,預算30萬內
占地:120平方米
氣派的歐式風格三層房子設計圖紙,外觀圖太漂亮了
占地:132平方米
135平復式別墅房屋設計圖,外觀時尚、漂亮
占地:135平方米
面寬13米帶堂屋三層農村別墅圖,新中式大氣風格
占地:151.58平方米
四開間二層別墅設計圖,造型精美經典舒適,火爆全村的戶型
占地:150.882平方米
戶型方正的三層平頂小別墅設計圖,占地面積100平
占地:100.19平方米
爆火農村養老房設計:16 米面寬一層戶型,自住養老全拿捏
占地:169.87平方米
面寬11米現代風二層小別墅,平屋頂設計,緊跟潮流時尚前衛
占地:94.43平方米
新中式農村兄弟合建三層雙拼別墅全套設計圖紙,3款戶型方案
占地:多種戶型
80平方米三層農村自建民房設計圖,小戶型別墅方案
占地:81平方米
三層平頂現代風格,農村自建房設計圖,可帶電梯,百看不厭
占地:259.55平方米
獨棟兩層歐式別墅設計圖紙(效果圖+建筑施工圖)
占地:125平方米
帶車庫二層農村豪華別墅設計圖,主體25萬左右
占地:170平方米左右
120平方三層房子設計圖,漂亮實用農村自建小別墅設計圖
占地:120平方米
中式一層仿古自建平房設計圖,灰墻青瓦,外觀古香古色
占地:168.48平方米
時尚漂亮的二層小洋樓設計圖,設計師建房都選這個方案
占地:149.27平方米
130平米帶小院一層自建房屋設計圖,省錢實用,養老房首選
占地:130平方米左右
二層雙拼別墅外觀效果圖及施工圖,帶露臺,14乘12米
占地:168平方米
推薦:10套新農村自建房設計圖,2026年最新設計
閱讀次數:4825737次
100套鄉村別墅圖片大全,2026年最新設計
閱讀次數:2492203次
6款農村蓋一層平房的設計圖,10萬元就能建起來
閱讀次數:1852637次
這11個一層農村自建房別墅火爆了朋友圈!我最喜歡戶型十!你呢
閱讀次數:750268次
農村6萬元建一層小別墅圖,你敢相信嗎
閱讀次數:567686次
農村5萬塊就能自建房,6套普通房子設計圖分享,你沒看錯!
閱讀次數:419410次
8套農村漂亮三間平房圖片,非常適合在農村修建!
閱讀次數:411197次
農村自建房化糞池怎么做?附方案及施工過程
閱讀次數:391783次
農村一層三間平房設計圖,告別土氣養老房,讓人忍不住點贊
閱讀次數:350581次
新農村二層樓房圖片造價12萬,挑一套回家建房吧!
閱讀次數:349126次
