
|
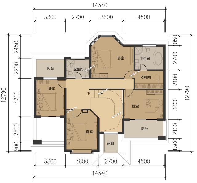
設計說明: 別墅為歐式風格,外觀藍、黃、灰三色相搭,配以門窗及屋檐的白色線條,整體效果較為清新明艷。 案例基本信息 ? 占地尺寸:14.3x12.8米 ? 占地面積:183㎡ ? 建筑面積:262㎡ ? 建筑情況:6室2廳4衛1廚房1活動室 ? 建筑結構:框架結構 ? 造價估算:31萬 平面圖 別墅外觀簡潔,內部結構豐富,一層門廊正對扭彎樓梯,房間圍繞展開,上下出行方便,提升室內美觀性。 臥室及客廳朝陽,采光充足,工人房配獨立衛生間,私密性良好,其位置靠近廚房及洗衣房勞作便捷。
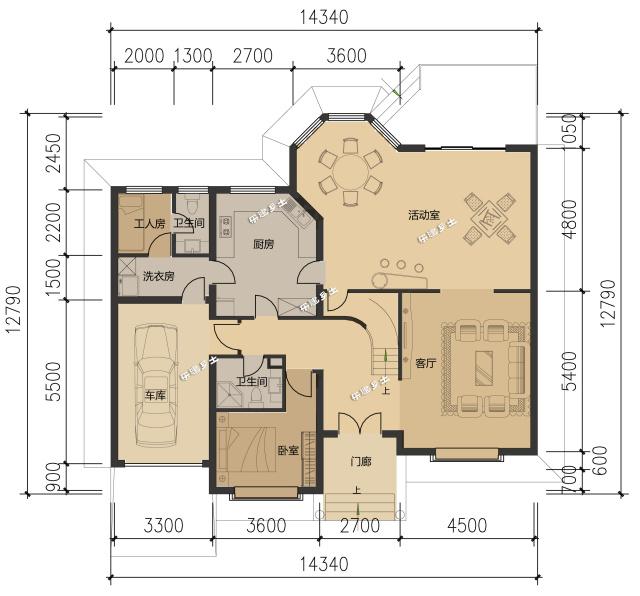
▲ 一層平面圖 二層共設四個臥室,主臥配有獨立衛生間和衣帽間功能齊全,外凸的八角造型氣派舒適。
▲ 二層平面圖
▲ 屋頂平面圖 立面圖
別墅屋頂層次感強,外型美觀,內部布局緊湊,有極強的實用性,三處陽臺的設計促進了室內外良好的互動。 圖紙之家-專注農村別墅/自建房設計18年,集合國內200余位經驗豐富的設計師,被評為口碑最好的農村建筑設計公司! |

闊氣高端的三層別墅設計圖,亮得恰到好處,永遠也住不膩
占地:160平方米
農村三層歐式別墅豪宅戶型圖設計方案,復式中空客廳+旋轉樓梯
占地:134.84平方米
高端大氣四層復式別墅房屋設計圖,含外觀效果圖
占地:270平方米
建一棟就成了村里的門面擔當!三層歐式別墅,左右對稱太氣派
占地:173.67平方米
帶架空層一層農村別墅設計圖,回鄉建房優選,家有豪宅幸福來敲
占地:124.76平方米
兩層半20多萬復式農村自建房設計圖,經典不過時戶型
占地:120平方米
田園兩層半別墅新農村房屋施工設計圖,外觀清新靚麗感情色彩豐
占地:144.12平方米
中式二層三合院設計圖紙含外觀效果圖片,大氣又實用
占地:216.04平方米
120平方米三層歐式別墅設計圖,進門就是旋轉樓梯
占地:119.76平方米
農村建房二樓設計圖,占地百平帶配房設計,顏值高布局好
占地:103.11平方米
農村二層中式小三合院別墅全套設計圖,民族特色風格
占地:122平方米
新農村三層小別墅設計圖紙,占地160平左右,好看不貴
占地:160平方米
適合7字型宅基地蓋的一層別墅,中式風格設計
占地:163平方米
歐式風格三層別墅建筑設計圖,復式樓中樓結構
占地:138平方米
歐式新農村三層復式樓自建房別墅圖紙,旋轉樓梯設計
占地:128平方米
155平方米新三層全套別墅設計資料,15x10米
占地:158平方米
140平方米三層半新農村房屋別墅設計圖,帶車庫
占地:140平方米
一層農村自建房別墅設計方案,左右對稱布局好
占地:154平方米
簡單二層農村別墅設計圖,占地適中,簡約造型,實用又經濟!
占地:128.4平方米
新中式二層別墅設計圖,農村最適合建的兩層小樓,13×12米
占地:143平方米
推薦:10套新農村自建房設計圖,2026年最新設計
閱讀次數:4825737次
100套鄉村別墅圖片大全,2026年最新設計
閱讀次數:2492203次
6款農村蓋一層平房的設計圖,10萬元就能建起來
閱讀次數:1852637次
這11個一層農村自建房別墅火爆了朋友圈!我最喜歡戶型十!你呢
閱讀次數:750268次
農村6萬元建一層小別墅圖,你敢相信嗎
閱讀次數:567686次
農村5萬塊就能自建房,6套普通房子設計圖分享,你沒看錯!
閱讀次數:419410次
8套農村漂亮三間平房圖片,非常適合在農村修建!
閱讀次數:411197次
農村自建房化糞池怎么做?附方案及施工過程
閱讀次數:391783次
農村一層三間平房設計圖,告別土氣養老房,讓人忍不住點贊
閱讀次數:350581次
新農村二層樓房圖片造價12萬,挑一套回家建房吧!
閱讀次數:349126次
