
|
農村蓋房子,車庫怎么能少?自己的愛車可是花了大價錢買來的,總得有個停靠的地方吧。設計新房的時候在首層開一個車庫,方便停靠愛車的同事,再也不用擔心安全問題了。 今天就給各位的建房朋友們挑選了22套帶半開放式車庫的戶型,我們一起來看看! 戶型一:
平面布局圖: 這套戶型的負一層是一個酒窖設計,首層的右側是開放式車庫,進出方便,就算是駕駛新手,也不用擔心會開不進來了。
車庫所在的位置就在右邊。
戶型二:
平面布局圖: 現代戶型也是近幾年的流行款式,筆挺的線條走向令這棟房子看上去愈發出彩。這棟房子設計了3間臥室,足以滿足當代農村家庭的生活需要。
戶型三:
平面布局圖: 這套戶型的車庫位于左側,跟客廳有一墻之隔,避免噪音傳達到室內。二間臥室的設計用作老人房是最好不過了,適合家中老人在這里居住。
戶型四:
平面布局圖: 這套戶型占地14X11米,設有5間臥室,一個廚房,一個餐廳,一個車庫。首層還單獨了一間儲藏室,方便收納雜物。
戶型五:
平面布局圖:
戶型六:
平面布局圖: 這棟房子可以說是設計的很不錯了,雖說面積不大,但是作為養老房設計是最好不過,完全可以蓋一棟出來送給自己的爸媽。
戶型七:
平面布局圖: 對于小戶型的設計,我們的一貫宗旨是去除無用的裝飾,用簡潔的室內布局提供舒適的居住環境。這棟別墅在首層空間上并沒有做太多的隔墻,客餐區域相連接,空間做到最大化。
戶型八:
平面布局圖: 這套戶型單獨設計了一個車庫層使用,現在家里基本上都是兩輛車,所以兩個車位是很有必要的。
戶型九:
平面布局圖:
戶型十:
平面布局圖: 這套戶型布局很是規整大氣,車庫位于右側單獨設計出來,中間最大的區域為客廳跟餐廳的空間,兩側是娛樂活動空間跟老人居住空間。
二層則是房主居住的地方,設有多間臥室跟一個起居室,方便照顧二層的生活。
戶型十一:
平面布局圖: 開放式的車庫的好處就是車輛不管是開入還是開出都會變得更加簡單。并且這里不停放車輛的時候還可以當做戶外休閑平臺、娛樂室,或者戶外餐廳來用,一室多用。
戶型十二:
平面布局圖:
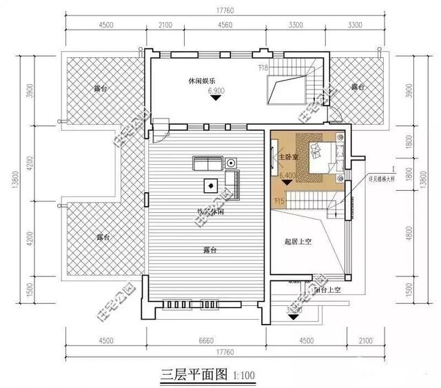
戶型十三:
這棟別墅占地尺寸12X15.7米,占地面積147.7平方米,建筑面積249平方米,總高度9.6米。 建筑情況:共設5室 1廳 4衛 1廚 1玄關 2會客室 1門廳 1露臺 1車庫。 平面布局圖:
戶型十四:
不同外觀色彩:
平面布局圖: 這套戶型可是有兩個不同的外觀展示哦,大家可以按照自己的喜好來選擇。首層有一個主臥室一個次臥室,廚房也是柴火土灶加現代結合的方式,很是不錯。
戶型十五:
平面布局圖: 若是家里人口多,那這套戶型是最好的選擇,6間臥室絕對能滿足大家的日常生活。并且客廳跟餐廳設計在了一起,絕對實用。
戶型十六:
平面布局圖: 雙車庫的設計可以滿足大家庭要求,就算只有一輛愛車,多出來的車位也可以放一些雜物。
戶型十七:
平面布局圖: 別墅為現代風格別墅,幾何形建筑外觀,線條精簡流暢,有獨立的開放式車庫,超大的落地門窗。在室內布局上,注重居住舒適度與空間面積的黃金比例,居住體驗感佳,空間闊度好。
戶型十八:
平面布局圖:
戶型十九:
平面布局圖:
戶型二十:
平面布局圖:
戶型二十一:
不同外觀色彩:
平面布局圖: 這套戶型也是有兩個不同的外觀設計,三層現代風格一定算是農村年輕一代的喜歡,室內布局經典大氣,完全可以作為婚房使用。
戶型二十二:
平面布局圖:
![]()
圖紙之家-專注農村別墅/自建房設計18年,集合國內200余位經驗豐富的設計師,被評為口碑最好的農村建筑設計公司! |

120平米三層別墅房屋設計圖,帶車庫,帶閣樓
占地:120平方米
農村一層帶小院房屋設計圖,帶院子一層自建房別墅戶型圖
占地:161.16平方米
農村二層小洋樓設計圖,帶外觀效果圖,外觀新穎,漂亮
占地:130平方米
三層帶車庫農村別墅設計圖紙(含外觀效果圖)
占地:147.7平方米
簡單實用二層自建房子設計圖,主體造價僅17萬
占地:106.387平方米
帶地下室三層新農村房屋設計圖紙,外觀效果大氣
占地:220平方米
現代一層(帶悶頂)別墅住宅設計圖,外觀現代時尚
占地:160平方米
自建一層三合院別墅圖,雅致鄉村居造價經濟,南北通透更宜居!
占地:176.36平方米
二層精美偏法式風格別墅設計圖,不但顏值高,品質還高
占地:154.17平方米
適合小面寬宅基地的兩開間別墅設計圖,8.5米乘13.5米
占地:107.66平方米
農村七字形獨棟一層別墅設計圖,設計感十足
占地:274.51平方米
一層帶地下室雙拼別墅設計圖,理想鄉村生活的標配
占地:416平方米
12.5乘12米大氣優雅二層自建房設計圖,精美舒適布局實用
占地:149.27平方米
面寬8米多的三層農村別墅設計圖,小開間宅基地推薦
占地:112.82平方米
四開間二層別墅設計圖,造型精美經典舒適,火爆全村的戶型
占地:150.882平方米
經典三層雙拼房屋設計圖,帶效果圖,戶型好,單戶面積120
占地:240平方米
2026最新款50萬左右農村三層別墅設計圖,客廳中空
占地:160平方米
七字形農村自建房二層設計圖,“L”型別墅設計,簡約時尚!
占地:209平米左右
兩層20萬農村自建房設計圖,經典農村建房款式,越看越有韻味
占地:160平方米
帶地下室KTV三層農村自建別墅設計圖,12米乘12.5米
占地:131.7平方米
推薦:10套新農村自建房設計圖,2026年最新設計
閱讀次數:4825737次
100套鄉村別墅圖片大全,2026年最新設計
閱讀次數:2492203次
6款農村蓋一層平房的設計圖,10萬元就能建起來
閱讀次數:1852637次
這11個一層農村自建房別墅火爆了朋友圈!我最喜歡戶型十!你呢
閱讀次數:750268次
農村6萬元建一層小別墅圖,你敢相信嗎
閱讀次數:567686次
農村5萬塊就能自建房,6套普通房子設計圖分享,你沒看錯!
閱讀次數:419410次
8套農村漂亮三間平房圖片,非常適合在農村修建!
閱讀次數:411197次
農村自建房化糞池怎么做?附方案及施工過程
閱讀次數:391783次
農村一層三間平房設計圖,告別土氣養老房,讓人忍不住點贊
閱讀次數:350581次
新農村二層樓房圖片造價12萬,挑一套回家建房吧!
閱讀次數:349126次
