
|
有些地方建房子,是比較喜歡建帶地下室的,尤其是一些限高的區域,原本自己是想要建一棟樓層高一點的房子,但就是因為限高,感覺這個樓層建起來自家不夠用,那么建一個地下室是最常用的方式,也是最好的解決辦法。 戶型一:建房尺寸是10.2×11米,墻面用面磚裝飾,屋面蓋以藍色琉璃瓦。
平面布局說明:地下室做酒窖和車庫使用,其中是一半位于地下,一半裸露在地面上的;二層設計有兩室兩廳一廚一衛,室內用到了小臺階,非常顯檔次;三層設計有一間帶衣帽間和獨衛的主臥室,三間次臥室,室外配有觀景走廊陽臺。
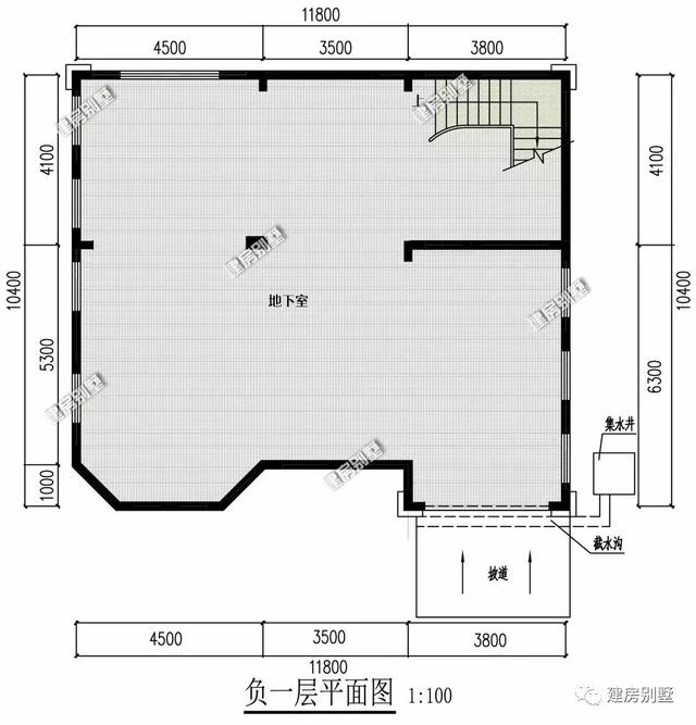
戶型二:建房尺寸為11.8×10.4米,墻面用仿大理石的真石漆涂料或面磚裝飾都可,價格實惠,看起來又很有檔次,屋面蓋以藍瓦,框架結構。
平面布局說明:地下室有車庫的功能,還有其他空間根據需要來支配;一層設計一室兩廳一廚一衛,也用到了兩級的小臺階,戶型還很通透,前后都很方便進出;二層三室一廳兩衛,主臥帶獨衛,還有小型衣帽間一個,室外雙陽臺;三層設計兩室一廳一衛,一間書房設計,室外配有觀景露臺。
這樣的房子,建好了之后,鄰居都是要羨慕的呀! 圖紙之家-專注農村別墅/自建房設計18年,集合國內200余位經驗豐富的設計師,被評為口碑最好的農村建筑設計公司! |

經典三層農村房屋設計圖紙,占地100平米左右,外觀典雅精致,內
占地:100平方米
全套三層農村房屋設計圖紙,客廳中空,大大的窗戶,采光極好,
占地:160平米
三層新農村自建小型別墅設計圖及效果圖,三間三層樓房戶型
占地:114平方米
三層帶露臺21萬別墅設計圖,占地面積100平米左右
占地:106平方米
建完被夸半年!現代風三層農村別墅,顏值抗打還百看不厭
占地:136.01平方米
100平簡單三層房屋設計圖紙,新農村自建推薦圖紙
占地:100平方米
西班牙風格農村二層樓房設計圖及效果圖,實用美觀
占地:170平方米
面寬17米農村實用自建房一層別墅設計圖,簡約大氣經濟時尚
占地:192.94平方米
農村兩間兩層樓房設計圖,造價15萬左右,獨立的廚房設計,干凈
占地:95平方米
兄弟三層雙拼房屋設計圖,帶效果圖,戶型好
占地:256平方米
110平方米新農村實用現代的二層建筑設計圖紙帶外觀圖11X10米
占地:110平方米
帶小院七字形一層自建房戶型設計圖,平屋頂圖紙
占地:201.08平方米
13.5米乘11米兩層半別墅設計圖,中式與現代相融合
占地:148.5平方米
開間12米的三層簡歐別墅設計圖,農村建房布局實用住的舒服
占地:108.15平方米
簡單實用農村自建小樓二層別墅設計圖,戶型造型簡約好看
占地:146平方米
一層農房別墅設計圖紙,140平方米,面寬15米
占地:140平方米
新農村二層住宅設計圖紙,簡單別墅設計圖(含效果圖)
占地:77.6平方米
村里蓋房圖紙大廳挑空的三層別墅設計圖,面寬不到10米
占地:122.4平方米
14x11米一層平房戶型設計圖,帶前后門設計,好看不貴還實用!
占地:143.59平方米
兩層三間農村自建房圖,125平有7間臥室,全家人都能住得下
占地:125.34平方米
推薦:10套新農村自建房設計圖,2026年最新設計
閱讀次數:4825737次
100套鄉村別墅圖片大全,2026年最新設計
閱讀次數:2492203次
6款農村蓋一層平房的設計圖,10萬元就能建起來
閱讀次數:1852637次
這11個一層農村自建房別墅火爆了朋友圈!我最喜歡戶型十!你呢
閱讀次數:750268次
農村6萬元建一層小別墅圖,你敢相信嗎
閱讀次數:567686次
農村5萬塊就能自建房,6套普通房子設計圖分享,你沒看錯!
閱讀次數:419410次
8套農村漂亮三間平房圖片,非常適合在農村修建!
閱讀次數:411197次
農村自建房化糞池怎么做?附方案及施工過程
閱讀次數:391783次
農村一層三間平房設計圖,告別土氣養老房,讓人忍不住點贊
閱讀次數:350581次
新農村二層樓房圖片造價12萬,挑一套回家建房吧!
閱讀次數:349126次
