
|
湖南和江西可以說是鄰居省份了,在其各地農村建房這一塊上,也是有蠻多的相似性,簡單實用是受關注的點,也是現在的一棟農村自建房應該具備的點。 第一棟:建房尺寸為11.4×10米,框架結構,墻面裝飾低調美觀,屋面蓋以紅瓦。
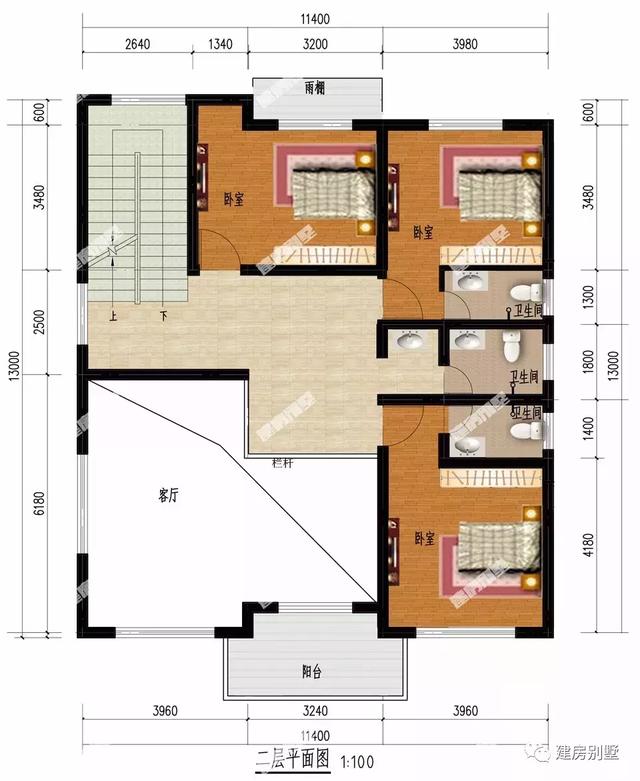
平面布局說明:首層配有一室兩廳一廚兩衛,入戶是堂屋,靠墻可以擺放神位,主臥到獨衛設計;二層配有四室一廳兩衛,主臥帶獨衛,室外配以方便晾曬的陽臺;三層設有三間臥室備用,室外設有觀景露臺一個。
戶型二:建房尺寸為11.4×13米,歐式風格的外觀,自然是很吸引人的,墻面主打白色調,屋面蓋以藍瓦裝飾。
平面布局說明:首層配有一室兩廳一廚兩衛,父母房帶獨衛,戶型南北通透,餐廳和廚房位于同一區域空間內,雙跑的直角樓梯設計;二層配有三間臥室,配有三個衛生間,室內還有休閑活動廳,室外配以生活陽臺;三層室內也配有三間備用的臥室,還有 一個小間房間可以做書房或者休閑茶室、棋牌室之類的,室外配以露臺。
兩棟不同風格的別墅,受歡迎程度是一樣的,第一棟很簡約、布局很贊,第二棟外觀很受人喜歡,布局也是很好。 圖紙之家-專注農村別墅/自建房設計18年,集合國內200余位經驗豐富的設計師,被評為口碑最好的農村建筑設計公司! |

造價便宜的二層雙拼自建房設計方圖案,一塊宅基地建兩戶
占地:224平方米
造價15萬經濟美觀一層農村別墅設計圖,占地150平米
占地:多戶型可選
農村一層房屋設計圖,自建一層房子圖紙推薦
占地:200平方米
120平方房子設計圖,農村120平建房設計圖推薦
占地:122平方米
農村實用三層樓房外觀圖片+全套施工設計圖
占地:106平方米
三十萬農村別墅設計圖帶外觀圖片,30萬造價別墅展示
占地:125平方米
現代四合院別墅設計圖紙,二層戶型,外觀時尚漂亮
占地:287.97平方米
堂屋共用的三層雙拼別墅設計圖,總占地面積245平米
占地:245平方米
新款鄉村二層半別墅設計圖紙帶效果圖,三層別墅外觀圖片大全
占地:108.795平方米
兩層三間農村自建房圖,125平有7間臥室,全家人都能住得下
占地:125.34平方米
三層別墅40萬左右氣派的外觀效果圖,含全套施工設計圖
占地:161.46平方米
帶地下室的一層別墅設計圖,農村自建房比較合適
占地:206平方米
農村4間2層樓房設計圖,帶車庫,外觀時尚,帶屋頂花園
占地:210平方米
旋轉樓梯挑空獨棟二層簡歐小別墅設計圖,大氣時尚
占地:189.26平方米
8萬元二層農村房子圖片及設計圖,簡易二層小樓,占地50平米
占地:50平方米
歐式兩層別墅設計圖及歐式效果圖,造價25萬左右
占地:150平方米
戶型獨特的、二層臥室挑高的別墅房屋設計圖,外觀簡歐風格
占地:250平方米
歐式大氣三層小別墅設計圖紙,外觀、造型大方,色彩明快
占地:140平方米
高端三層豪宅別墅設計方案圖,帶地下室,過悠然愜意生活
占地:127.06平方米
農村三合院設計圖及效果圖,自建三合院圖紙
占地:470平方米
推薦:10套新農村自建房設計圖,2026年最新設計
閱讀次數:4825737次
100套鄉村別墅圖片大全,2026年最新設計
閱讀次數:2492203次
6款農村蓋一層平房的設計圖,10萬元就能建起來
閱讀次數:1852637次
這11個一層農村自建房別墅火爆了朋友圈!我最喜歡戶型十!你呢
閱讀次數:750268次
農村6萬元建一層小別墅圖,你敢相信嗎
閱讀次數:567686次
農村5萬塊就能自建房,6套普通房子設計圖分享,你沒看錯!
閱讀次數:419410次
8套農村漂亮三間平房圖片,非常適合在農村修建!
閱讀次數:411197次
農村自建房化糞池怎么做?附方案及施工過程
閱讀次數:391783次
農村一層三間平房設計圖,告別土氣養老房,讓人忍不住點贊
閱讀次數:350581次
新農村二層樓房圖片造價12萬,挑一套回家建房吧!
閱讀次數:349126次
