
|
眼看著家里的鄰居一個個都蓋了新別墅,自家的房子也因為年久失修,已經到了不得不蓋新房的地步,剛好手里有點積蓄,索性蓋個三層半別墅,樣式普通一點,住在村里還是低調點好。廣西廖女士就蓋了這棟別墅,下面分享圖紙
棱角線條分明的新式別墅,立面分段式裝飾成為點睛之筆,極富質感。東西面呈不對稱設計豐富了造型感。
背面和側面都采用豐富的小拱形窗戶作為點綴,陽臺頗多,視覺感豐富。
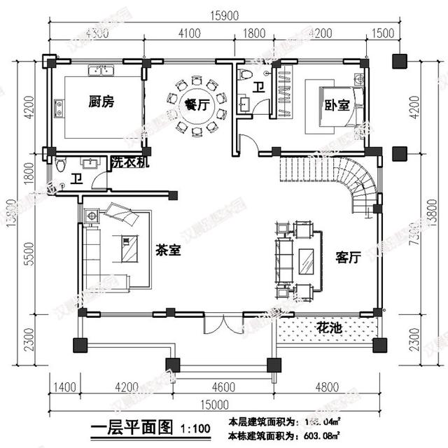
平面圖 開間15米,進深13.8米,占地168.04平米, 總建筑面積603.08平米 左茶室、右客廳,中間餐廳,東北角臥室,西北角廚房,每個功能都分布合理。
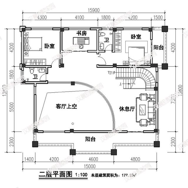
為了凸顯別墅室內的與眾不同,挑空客廳做成弧形。只有兩間臥室,書房也是我們日常所需要的。
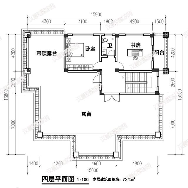
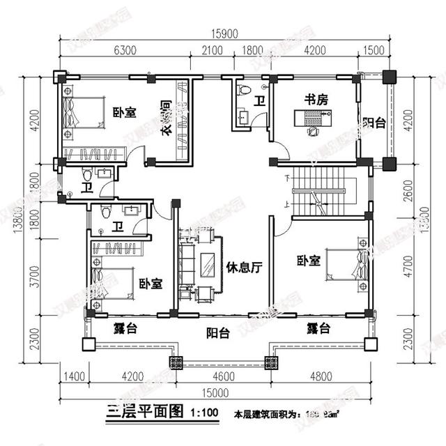
業主想必是一個文化愛好者或者是教師,每層都帶有書房,廖女士是一個注重外觀造型的人,陽臺非常豐富。
上面屋頂一部分有帶頂,做一個屋頂花園也不錯,陶冶陶冶情操。 ![]()
圖紙之家-專注農村別墅/自建房設計18年,集合國內200余位經驗豐富的設計師,被評為口碑最好的農村建筑設計公司! |

經典20萬左右二層別墅設計圖紙,造型頗具設計感的小別墅
占地:多戶型可選
農村四間一層房屋設計圖,160平方米,用來養老正合適!
占地:160平方米
一層農村小平房設計圖,功能齊全造價低,兩款戶型可選
占地:多戶型可選
豪華歐式三層別墅住宅設計圖紙,占地面積150平方米
占地:150平方米
小型中式一層三合院別墅設計圖,小宅基地照樣建合院
占地:119.73平方米
農村二層半雙拼別墅設計圖,客廳中空,帶大露臺
占地:270平方米
架空層設計的農村自建房別墅設計圖,既做車庫又做儲物間,太實
占地:230.62平方米
140平方米清新別致新農村兩層房屋設計圖紙大全12x13米
占地:140平方米
客廳中空三層復式別墅房屋設計圖,帶外觀效果圖
占地:145平方米
鄉下建房一層戶型圖及全套圖紙,養老房,還是一層好
占地:210平方米
實用型二層別墅設計圖,簡單大方最耐看,16.5米乘11米
占地:150.94平方米
二層自建房屋設計圖,帶小院,帶地下室,外觀現代、時尚,內部
占地:200平米
經典農村二層小別墅設計圖紙帶露臺(含外觀效果圖)
占地:110平方米
L字型自建房屋設計圖,一層別墅類型,外觀效果圖漂亮
占地:188.62平方米
兩層15萬農村自建房設計圖,農村蓋房設計大全圖
占地:130平方米
農村四間兩層樓房設計圖,外觀時尚,戶型實用
占地:180平方米
二層平頂別墅設計圖,漂亮經濟實用二層農村小別墅最新房屋設計
占地:多種戶型
歐式獨棟二層小別墅設計圖,客廳中空,占地126平米
占地:120平方米
155平方米自建二層CAD房屋設計圖紙及效果圖,13X12米
占地:156平方米
時尚現代的二層農村別墅設計圖,年輕人建房的不二之選
占地:131.76平方米
推薦:10套新農村自建房設計圖,2026年最新設計
閱讀次數:4825737次
100套鄉村別墅圖片大全,2026年最新設計
閱讀次數:2492203次
6款農村蓋一層平房的設計圖,10萬元就能建起來
閱讀次數:1852637次
這11個一層農村自建房別墅火爆了朋友圈!我最喜歡戶型十!你呢
閱讀次數:750268次
農村6萬元建一層小別墅圖,你敢相信嗎
閱讀次數:567686次
農村5萬塊就能自建房,6套普通房子設計圖分享,你沒看錯!
閱讀次數:419410次
8套農村漂亮三間平房圖片,非常適合在農村修建!
閱讀次數:411197次
農村自建房化糞池怎么做?附方案及施工過程
閱讀次數:391783次
農村一層三間平房設計圖,告別土氣養老房,讓人忍不住點贊
閱讀次數:350581次
新農村二層樓房圖片造價12萬,挑一套回家建房吧!
閱讀次數:349126次
